本案家庭人口三人,常住人口是夫妻两人与一只猫,孩子成年后在国外念大学。这个三层复式结构的房子,是业主的改善型住房。视野开阔,采光通透,功能齐全,精致有品位是业主对这个新家的期许。家中人口不多,空间够大,因此业主对生活的品质要求更高,对自然环境的融入更为渴求。同时,还希望能为家中的小猫咪提供足够的活动场所,让其自由奔跑玩耍。 设计师冉嵩表示:“设计就是源于生活而高于生活的,如何将室外的窗景和自然的光源,引入并融合到室内的空间动线的光源中,成为了我整个设计中最关键的重心。” 整体硬装上采用经典的黑白灰配色,于软装方面选取莫兰迪色点缀,让理性的空间融入了一丝感性情调。同时,还将当下最流行的线性灯与智能家居设计相结合,让每个空间的光源都能各司其职。 空间规划方面,她选择将公共区域打通,让空间随之变大,各个功能区的互动也变得更加亲密自然。并根据业主需求,合理规划私密休憩区与生活休闲区,提升各空间利用率,并于三层区域设置开放式猫舍,让猫咪活动自如。


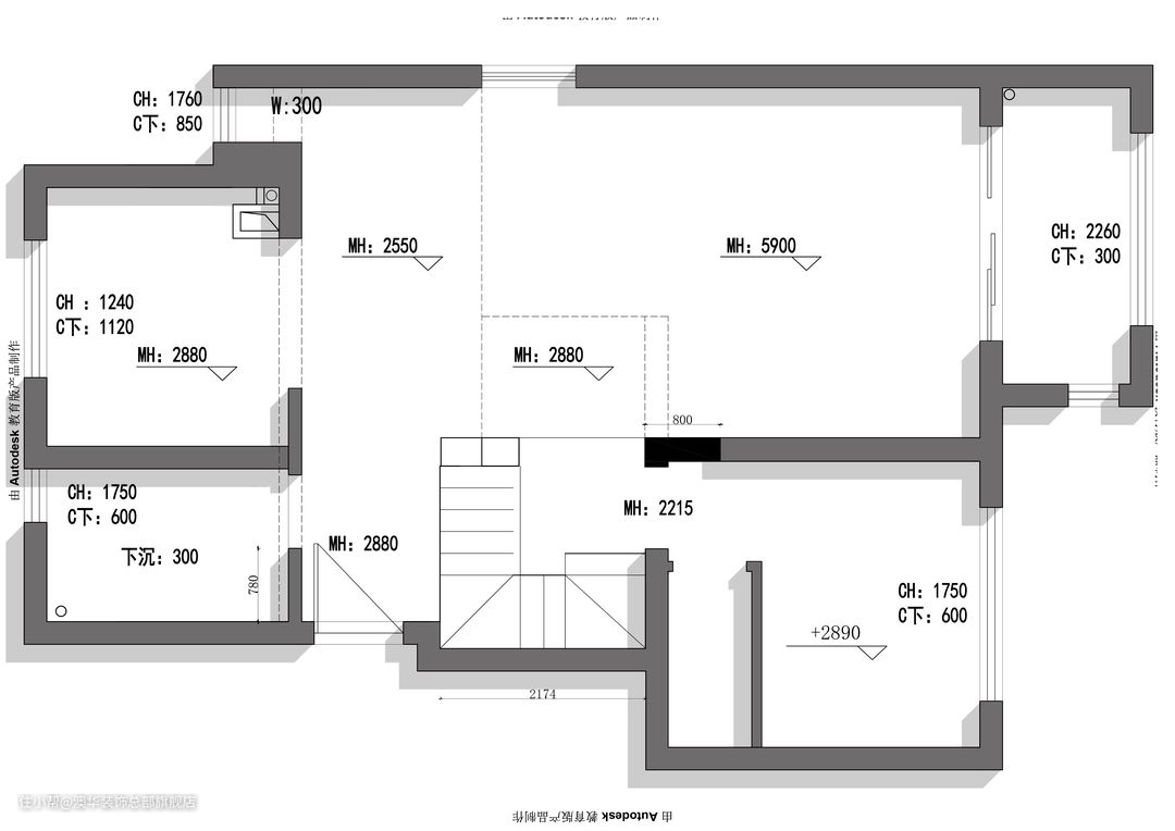
一层原始空间客厅较为开阔,但餐厨空间与卧室旁储藏间较小。对此,设计师选择将整个公共区域打通,餐厅厨房之间以岛台相连,形成客厅、餐厅、厨房一体格局,动线更流畅,光线更通透。至于小储物间则直接纳入卧室,改做多功能房使用。


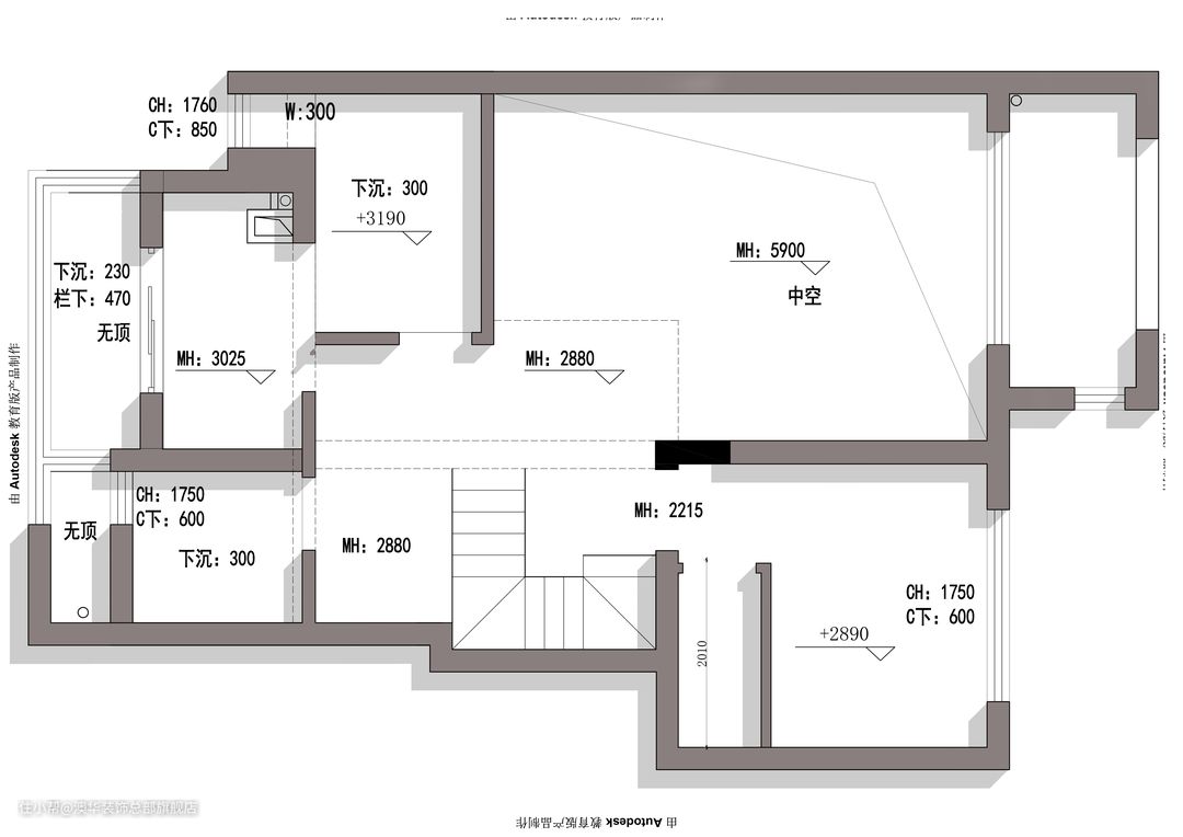
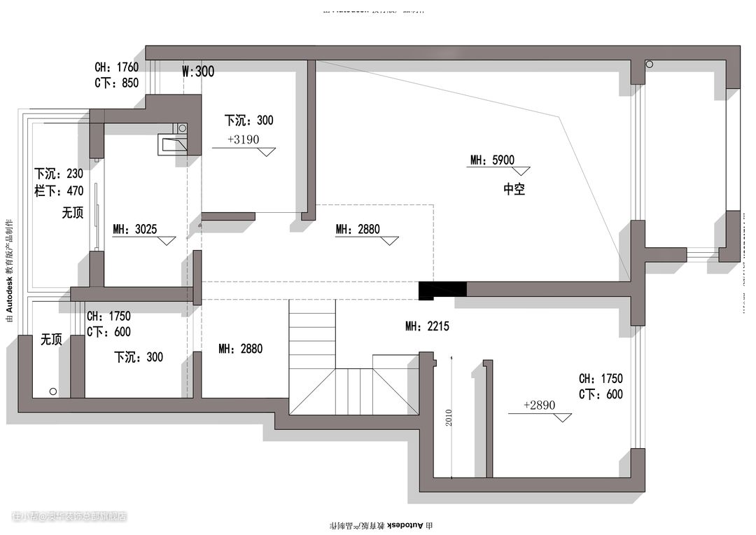
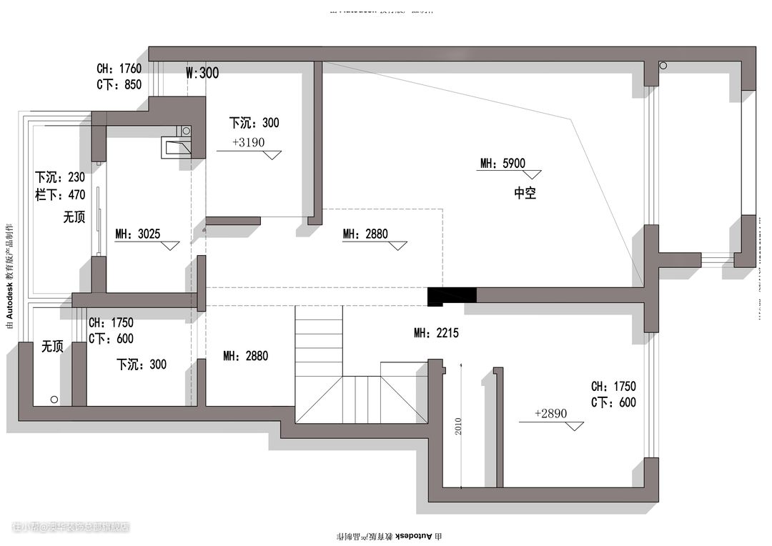
二层原始结构有个中空部分,空间浪费较多。依据业主需求,这里对其进行了搭建改造,将整个二楼改造成两个大套间与一个公共储藏间。每个套卧都有超大的衣帽间以及干湿分离的卫生间,功能齐全,为每位家庭成员打造出高品质的生活。


三层原始空间非常开阔,设计师以储物柜做隔断,保持空间开敞通透的同时,在此设立了观景阳台、洗衣房、猫舍、卡座以及秋千区,集休息、娱乐与家政于一体。

原始户型入户过道较窄,这里将公卫空间适当缩减,腾出部分空间拓展过道。右手边增设通顶玄关柜,整体胡桃木色的配置,让柜体、墙面浑然一体,整洁又美观。其间点缀的格栅元素,视觉上更显层次,时尚又大方。

木格栅拼接智能镜,拉伸了空间,减少了过道狭长局促的感觉。中部的悬空大理石搁板,增加了立体的感觉,也方面随手置物。其上点缀的绿植,引入自然的清新感,使生活更有情调,并提升了入户仪式感。

入户左手边就是一张悬浮换鞋凳,方便业主进出换鞋,也方面清理打扫。木格栅在线性灯光的点缀下,营造出了秩序的美感,更显简约时尚。

客厅是家人交流互动的中心,同时也是亲朋好友社交聚会的重要场所。设计师冉嵩保留了原始户型:客厅-餐厅-厨房一线的布局,去掉了非承重的墙面,让每个功能区之间没有明显的界限,实现了空间的开场通透,更具大气风范。

通铺的石材地砖让公共区域浑然一体,阳台的落地窗将充沛的自然光线引入。没了墙面的阻隔,柔和的光影也能在客厅、餐厅、厨房中自在穿梭。四季交替时,心随晨暮动,一步一景,时刻都会有不同的情怀与感受。

悬浮电视背景墙采用了岩板、胡桃木格栅以及开放式收纳柜等元素,电视柜以石材地台代替。当黑白石材的奢华感遇上胡桃木的成熟稳重,让空间气质也显得更为高雅恬静。

边吊+悬浮吊顶,简洁大气更显轻盈,使空间更加透气、立体。结合磁吸轨道灯和筒灯的无主灯设计,满满的高级感。融入的智能家居设计,让灯光颜色可以根据实际需求变化,从而营造出更温馨惬意的氛围感。


软装搭配上融入了米色与莫兰迪色点缀,让这个黑白灰、充满理性的设计中,处处流露出一种感性的情调。精心布置的鲜花绿植,将大自然的清新引入家居环境中,悠悠岁月的恬静感就此弥漫开来,让居家的感受更显安逸舒适。

客厅与餐厅之间的一面小窗,将室外的窗景与光线引入,与室内的光源糅合在一起,一种淡然明丽的气息在空间中发酵。

岛台拼接餐桌,便捷而又大气。以温润的木质的搭配质感的石材,展现精致时尚感的同时,还不失居家的温馨感,同时还实现了餐桌、岛台、餐边柜、壁龛的完美交融,更显和谐美观。 配备的黑色高脚餐椅,则带来了一丝轻盈感,让就餐的氛围更为放松。岛台设计让这里除了作为操作台使用,也可以变为聚会时的吧台。台面侧方还设有磁吸轨道插座,满足了各种电器的用电需求。

餐边柜以两组矮柜和通顶酒柜构成,满足不同的收纳需求。餐边酒柜以黑色哑光不锈钢边框搭配长虹玻璃柜门,干净又通透,隐隐流露出的奢华质感,使其更显高级,更上档次。 展出的工艺品、装饰的壁画,在灯光的点缀下熠熠生辉,提升了整体的艺术气息,彰显出业主高端的生活品味与精致的生活态度。
厨房空间不大,这里采用开放式格局,使其更显通透明亮。一字平面吊顶搭配无主灯设计,让光源分布更均匀,有效减少照明死角。

整个内部呈U型布局,冰箱、蒸箱、烤箱等直接做内嵌设计,搭配无把手的灰色柜门设计,干净又清爽,简约又高级。

遵循洗、切、炒的动线设计,行动更灵动便捷。超大单水槽自带沥水区,双水龙头满足不同的清洗需求。摒弃传统90°拐角设计,这里改为面积更大的钝角设计,让配菜区的使用更为便捷。

烹饪区上方的吊柜采用错层设计,将空间消耗降到最低,同时可有效避免头部受到磕碰,使用更安全。最顶层的空间可以用来存放不常用的物品,格栅玻璃柜门区域用来存放常用餐具,存取方便,干净又整洁。

楼梯因开发商设计的缺陷,采光稍显不足,又长又窄还压抑。这里选用玻璃围栏,提升了整体的通透明亮度。黑白灰的配色经典大气,中部转角处墙面以胡桃木做硬包,辅以线性灯点缀,在照亮空间的同时,还具有精致的装饰效果,同时减少了楼道狭长感。

台阶下暗藏线条灯,不仅美观,更具有实用价值。在点亮的那一瞬间,更好地呈现出了楼道空间的层次和线性美感。同时点燃了整个空间氛围,攫取人们的视觉焦点,打造出轻盈灵动又不失精致格调的空间语境。

一楼楼梯旁边是一间多功能房,大量采用的原木材质,让整体空间更显温暖舒适。落地窗与梦幻帘的组合,营造出了舒适又柔和的光源,同时有效保障了入住者的隐私。

米白色的双人沙发置于一角,构成家人阅读、休闲放松的场所。开放式的展示柜,可以用来存放书籍和一些收藏品,其间点缀的绿植,于视觉上更显清新自然。同时预留了电器空间,未来可以放置投影仪或者其他设备。

利用长虹玻璃门和定制柜,打造了这个轻盈而通透的超强储物空间。开放式联合封闭式的设计,让业主收纳储物更灵活,使用更便捷。
主卧位于二楼,是业主夫妇使用的,色彩搭配上以素雅稳重为主,选用经典的原木+纯白配色,简约又质朴,给人舒适的氛围。

大面的落地开窗,将充盈的自然光引入室内,温暖原木调在光线的映照下,多了几分自然气息,同时使得整个卧室空间既宽敞明亮又温暖惬意。

床头作为视觉中心,选用木格栅与白色肤感硬包材质,打造出富有层次感的悬浮背景。阳台纳入室内,利用木质板材将垭口完美隐藏,衔接自然,仿若一体。阳台增设储物柜以及展示格,其中点缀的绿植,为卧室空间带来了勃勃生机。

睡眠区与卫生间相连,生活动线更便捷。二者相邻的墙面,增设一面长虹玻璃做隔断,有效保障了两个空间的光源且不影响生活隐私。

美好的生活少不了室内的精心装饰,主卫外墙正对楼道,以壁龛与暖色灯光做装饰,吸引所有人的目光。摆放的绿植是点睛之笔,整体仿若一幅壁画,美不胜收。


内部设计大方简约,三分离的布局将卫生间的功能互相分担,彼此独立互不干扰,使用更便捷。整体选用灰色大块瓷砖通铺,高级耐脏易清洁。 悬浮洗浴柜与上方的吊柜,承载起主卫的收纳功能。水龙头与台下盆分离,更美观,更易清洗,节省打扫时间。智能镜与黄铜吊灯的布置,实用与颜值兼备,高级感轻松get!

淋浴间与马桶间采用极窄边框玻璃进行隔断,黑色的花洒、置物架,与整体的色调统一,美观又和谐。马桶间上方墙面以圆形壁画装饰,填补了墙面的留白,体现了业主高品质的生活。
衣帽间,是一个家庭供存放衣物,和更衣梳妆的专用空间。从这个意义上讲,有无衣帽间,以及你如何来规划和使用它,便是你个人品位的体现。

改变原有房间开门方向,使衣帽间与主卧连通,形成了一个功能齐全的大套间。设计的第一法则就是要有良好的收纳功能,两组衣柜呈L型布局,集收纳、展示、梳妆为一体的多功能空间,将所有物品井然有序,让眼前的衣物一目了然、触手可及。

设计师巧妙运用长虹玻璃、哑光黑钢等材料来拓宽视觉感及表现光影的和谐,创造出直撩心底的优雅魔力,让时尚成为衣帽间的一大亮点。

借用公共墙体做嵌入式梳妆台,让内部空间更方正。格栅拼接镜面,与整体的设计相呼应,简雅不失质感。
女儿房也是一个功能齐全的大套间,包括休憩区、卫生间以及衣帽间,整体风格设计上更显时尚年轻。

悬浮吊顶和弧形门洞,让空间更柔和。床头背景墙用格栅元素和肤感硬包材料结合,拉伸空间,搭配氛围吊灯,让空间更有层次感。

睡眠区的设计偏日式,别具匠心地利用悬浮地台和隐形灯带,制造出私密且温柔的空间氛围。

阴晴雨雪透过明亮的落地窗映进室内,根据日月的轮转循序渐进,伴随着生活的节奏浅吟低唱。


设计师在衣帽间中运用大量的长虹玻璃来增加空间的通透性,同时也呼应了与其它空间的联系。化妆台的设置,也增强了使用体验。

设计师将三楼的露台利用起来,重新规划布局,打造出一个令所有来客都羡慕的空中花园,也为猫咪提供了一个自由玩耍的场所。


复古的红砖,纯粹富有自然情调。藤编的靠椅,随处所见的鲜花绿植,带您走近大自然的怀抱,远离城市的喧嚣,寻得一片清净与安宁。


作为家庭中的一员,小猫咪的待遇当然不可少。独立的猫舍采光通透,活动空间充足。定制的猫爬架、猫窝,让猫咪可以不受拘束地自由奔跑,玩耍。

清风与阳光、鲜花与绿藤、摇摇椅与秋千,创造了更多与自然的联结。一年四季、晨昏朝暮、一步一景,闲时泡一杯茶、看一本书、撸一下猫,在绿意盎然的自然环境中,尽情地放空自己,感受诗意人生。
本案设计师 冉嵩 高级主任设计师 擅长风格:现代简约、新中式、北欧、美式 荣誉奖项: 2011年度 获武汉建筑装饰行业优秀设计师 2012年度 获国际室内设计师ICDA证书 2016年度 获空间环境艺术设计大赛(二等奖) 2018年度 获中国色彩PCD深度课程证书 2019年度 获ICBA香港大易墅设计学院八宅易理证书
