这是一套位于北京海淀的“老破小”,不足28㎡的面积,但却需要满足2个大人以及2个孩子的日常起居、学习、工作的空间需求。 空间小、管道多,卫生间等公用空间,多人使用需求冲突,收纳空间空间不足,成为这个改造案例中,必须解决的难点。


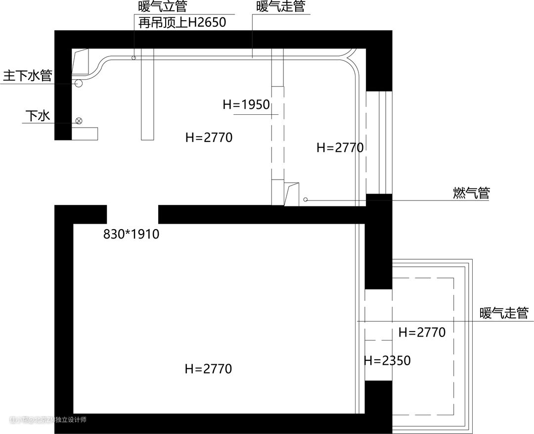
四周是承重墙 加上中间一道也是承重墙,可以拆改的只有卫生间和厨房两侧,房子是80年点初期的,房屋已经大修缮2次,一个是给水管的更换,还有热力管道的增加,可以看到现场照片的管道很暴力的走法,没有考虑住户内部的使用需求,所以要必须准确的把现场管道的三维尺寸要测量的很仔细,在后续的平面方案给弱化和规避它。

改造后平面图

改造后平面分析图

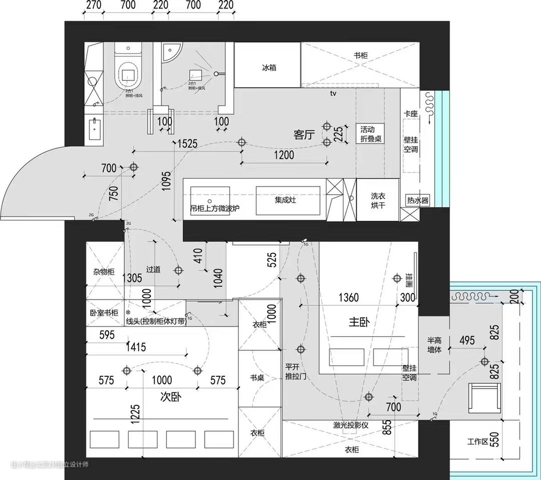
为减少室内空间浪费,将入户门改为外开,一进门左手边,定制极窄玄关柜,上下方可收纳鞋子或其他物品。 底部悬空设计,方便放置日常常穿的鞋子,并预留了地漏,如后续需要,可将玄关柜改造,安装迷你洗手池。

卫生间在玄关旁,与淋浴间分开。 干湿分离不仅干净好打扫,也充分避开4人使用时的冲突。

小方砖加上小花砖,黑白简约的设计中,带有一点跳脱的活跃感。


淋浴间里定制迷你小洗手台,尽量平衡空间的利用和功能需求的关系。


卫生间和淋雨房均安装折叠门,节省空间,使用更方便。


入户门对面是厨房,将原有的封闭式厨房,拆掉改成现在的开放式厨房,打造客餐厅一体空间,空间利用率更高,也会显得空间更加通透。

为了给这个小家的公用空间,营造轻松的氛围,橱柜选用了蓝色,和几何形图案的瓷砖结合,看起来很清爽。 上方双层开放格,下面一层随手放置调料罐等,上面一层开放格,则承担短期收纳,日常使用频率不是很高,但也有一定频率的物品。 最上方则定制柜门,收纳不常用的物品,关上柜门也显得更整齐。

安装集成灶,避免开放式厨房的油烟问题。

厨柜对面,嵌入式双开门冰箱,足够存储一家四口人口的食饮。

厨房紧挨餐厅、客厅区域。 旁边定制书架,收纳家中的图书,靠窗处打造卡座,增加收纳空间,同时也能坐下更多的人。

小小的餐桌,在用餐结束后,会成为男主人偶尔休息办公的区域。

洗衣机、烘干机内嵌入柜体,显得例落干净。




从厨房旁边的走廊,依次通往次卧和主卧。


为了打造更多的收纳空间,次卧门口旁,打造了杂物收纳柜,上方还设计了书架,用来摆放书籍和家人的照片。 书架下方安装线性等待,显得轻盈明亮,实用和装饰作用兼具。


前期四口人在这个空间休息,配置了2.4米乘2.1米的超大床家中的两个小孩子睡这次卧,死角处定做书柜,旁边也定制了几处衣柜,来满足孩子一路成长所需的物品。

家中的两个小孩子睡这次卧,死角处定做书柜,旁边也定制了几处衣柜,来满足孩子一路成长所需的物品。

次卧内打造榻榻米,收纳不常用的被子、衣服和杂物等。

两衣柜间,定制一块横板和一扇平开门,打开时,可做的桌子使用,且直接面向主卧阳台,光线充足。










主卧也打造了榻榻米和一整面墙的衣柜,充分满足夫妻二人的日常收纳。


中部留有开放格,放置投影仪和其他小物件,有时间时,一家人还可以一起享受电影时光。

主卧的地台床第一时间阶段当作客厅,下面的地台床可以分成不同形式的沙发,满足四口在区域内休闲娱乐。












主卧阳台上,打造书桌即吊柜,作为男主人的办公区。






全屋定制不光是柜体还有门墙一体的,全屋定制是我来制作和生产的。
