说在前面 这是一家二手房改造,10年前的老楼盘。3~5人居住,所以保留了三个房间。 屋主对美好生活的精致追求,并自己DIY了部分单品,简直是把效果图搬回家~ 摒弃了传统的电视墙,打破常规客厅布局,让心心念念的壁炉找到了归属。 追求自然轻快的色调,回家时能把所有烦恼抛之脑后~ 常住人口:3~5人; 设计师:卢文凯; 后期摄影:Ray 部分主材:V派橱柜,大自然地板 基本需求: 1.需要一个独立办公区; 2.客厅需要风管机,全屋地暖,客餐厅都用木地板 3.儿童房想要个上下床 4.厨房收纳功能尽可能多 5.不要电视墙,客厅尽量显得通透明亮

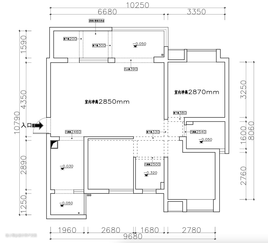
由于是二手房,需要把原来的装修全部拆除变成清水房。这是复尺后的数据

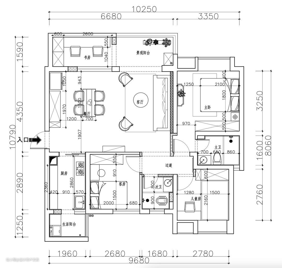
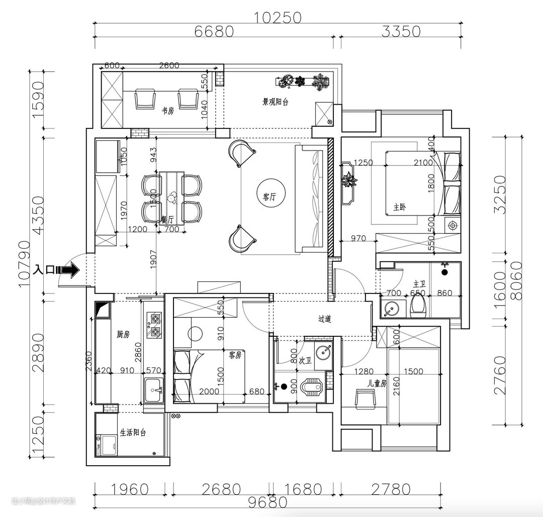
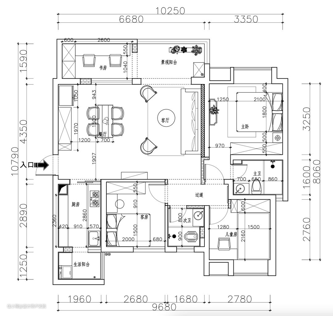
这是重新调整后的布局。 1.原来储物间打掉改成跟阳台连通的书房,更改了动线,让书房和客餐厅的光线更加能交互; 2.次卫生间的布局进行调整,增加了壁龛,改了蹲便。 3.去掉电视墙,把沙发的位置放到原电视墙位置,使整体客餐厅空间使用率更高,更通透。

这是装修前入户位置照片

这是装修后的入户,原本生硬的区域变得活泼起来,入户位置藏进了风管机和投影幕布的设计。

这是原电视背景墙

这是装修后,改成沙发墙,空间明显得到提升,而且运用浅色系,视觉上更明亮。

这是原过道区

这是装修后,调整了次卫门方向,做成半玻璃门,光线相互穿梭。

装修前的储物间及阳台链接处

装修后变成了书房,又保留了原先的收纳功能,既美观又实用。
客厅的整体造型简洁大气,墙面的石膏线条简单点缀。 空间过渡位置门洞采用弧形门洞的做法,节约了门套线,使得过渡自然圆润。 空间色调轻盈,软装搭配上都以鲜明柔和的色彩布置。绿植的错落摆放显得更有生气,郁郁葱葱。

简单的线条,明亮的色调,奶油风的元素在这表现得淋漓尽致~ 可能有人问如果要看电视怎么办呢?请看餐厅区域的吊顶设计~我们偷偷把投影幕布藏进去了

毛毛虫沙发单人椅,最近好火~ 配合大象沙发,都是柔软舒适型的。

花架是屋主自己DIY的,用主卧剩下的乳胶漆涂刷成翠绿色,让整个花架更加生机盎然~

客餐厅全貌~ 在整体中间位置放了个小型假壁炉,作为屋主可自由调整的展示台,配合左右相伴的绿植,神采奕奕。

壁炉是按尺寸定制的,有开关控制的,氛围感拉满~
餐厅的设计极为简洁,白色岩板的桌面搭配亚克力桌腿,有种餐桌漂浮的感觉。餐椅的材质选择更贴近自然。 毕竟餐厅是一进门能够看到的地方,清爽是给归家之人第一印象。

餐厅很简洁,餐桌也是找了很久才找到的悬浮款(桌腿是透明的) 餐边柜上方吊顶藏着风管机及投影电动幕布,平时可以收在吊顶内。

餐边柜中间留空,放置了主人喜欢的各种杯子和冲泡产品,饮水机,一应俱全。 抽屉内放置各种随手使用的小件。

餐桌与厨房仅不到2米的距离,厨房门做成三联动的长虹玻璃门,使得两个空间的光线能够互通,把光引进去,导出来~

餐边柜与鞋柜结合,冰箱选择超薄型对开门,尺寸基本跟柜子贴合。
主卧空间尺寸较小,屋主却打理得井井有条。 床头简单的一抹绿色,与窗帘呼应,像是一不小心甩过去的。 床尾放置了小书桌,也可充当梳妆台使用。

主卧床选择了1.5米无边框软包床,柔软舒适。床头的一抹绿色与窗帘,还有客厅的小花架一样(因为小花架是屋主用剩余的墙面乳胶漆自行涂刷的)

飘窗做了飘窗垫,平时可以窝在那里看看书,晒晒太阳

床头柜的编织元素是后期加上去的


儿童房墙面做了孩子喜欢的蓝天白云,上下铺的设计让这不到9平米的空间拥有了玩乐的天地~ 兼具了收纳+玩耍+休息+读书的功能

采用了上下铺的形式,上铺是休息之所,下铺是玩耍的小天地。
客房很简洁,书桌也算是硬凑出来的,但这样做让床边的过道变得宽敞些许。 1.5米的床靠墙摆放,既增加了过道的宽度,又能拥有一个独立书桌。 衣柜设计的时候故意把最里面那格留出来,让书桌有延伸的空间。

书房是由原来储物间改造而来,既有储物功能,又有两个人同时使用电脑的位置,一举两得。 左侧的玻璃是与餐厅相通,也是能够互相引导光源,又有一定的隐私功能。


梦幻帘在有微风时轻盈摆动,真得不要太好看! 阳台是与客厅和书房相连的中转区,又是面对小区中庭,无论是把窗帘打开或者合上,都是风景。

厨房是传统的一字型,右侧的橱柜只能做400mm深度,但是收纳功能一点没有落下,平时的碗碗罐罐收拾得干干净净。 右图是原来厨房的样子,尺寸有点紧凑,整体颜色压抑。改造后我们改动了厨房到卫生间的门洞,并且换成浅色系的瓷砖,白色橱柜台面和吊柜,整体空间感有所提升~

主卫生间采光较差,所以选择了全白亮面的瓷砖,白色的光源使整体空间更加敞亮。 浴室柜是让橱柜商家进行适当的尺寸定制,自己采购台上盆,跟整体风格色调更搭~ 洁具也精心挑选了全白色系!避免做黑色淋浴和龙头后期因水渍变得难看。

最后合影,笑得有点开心哈哈~想想能住在自己心心念念的房子有多么美妙的成就感~

部分主材及渠道 整体橱柜:v派橱柜(北富森店) 整体定制家居:v派定制(北富森店) 强化地板:大自然地板(北富森店) 风管机:格力 经验问答: 问:装修这套房子最大的难点是什么? 答:原先房屋的尺寸紧凑,所以在设计过程中锱铢必较。初步测量及后期打拆也进行现场蹲守和指导,保证工人施工尺寸分毫不差。 问:最满意的设计亮点是什么? 答:应该是客餐厅的整体思路,因为现在年轻人都不喜欢看电视了,可以不做传统的电视墙,让空间更大,让活动功能不那么局促,让屋主在家能更多时间看书养花,做自己喜欢的事。非常感谢屋主小姐姐全力配合,才能打造出这个梦幻般的房子 问:说说是什么给了你灵感,打造出现在这个作品的? 答:屋主对美好生活的追求和向往,在很多地方搜集灵感融入进去。
本案由设计师卢文凯全程指导,硬装+软装设计
