本项目是一户独栋别墅,位于深圳南山鲸山觐海,总体面积300m²。业主70后,自己是某上市企业老板,对于居住空间,他们希望品质上是高级的,颜值上是浪漫的。 设计师以格局与韵律解锁空间的舒适度,将轻奢元素与现代家具相互揉合,交错产生一种自然违和感与柔和质感的色调,营造高级浪漫的氛围。

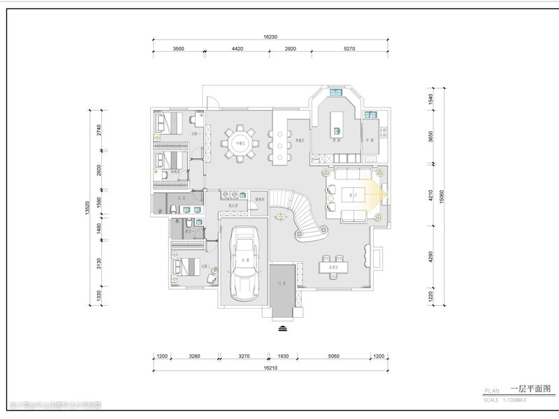
空间优化: 1.楼梯做弧形设计,实用美观; 2.餐厅增设岛台,动线合一; 3.厨房增设岛台+收纳柜,收纳空间更大。

户型说明: 1.满足客户的需求,对欧式风格的“奢华”进行了调整; 2.将欧式奢华的一面提取出来,促使欧式与现代风格融合; 3总体动线构建干净、雅致的空间气氛,石膏线艺术装饰造型优雅而奢华。

客厅挑空设计,让空间视野更加开阔明亮。白色作为空间主色调,石膏雕纹、超大大理石背景墙奠定欧式风格基调。

蓝色系的沙发搭配灰色的纹理地毯,营造出休闲放松的居家氛围。简约和谐的配色,让整个客厅空间安静又不失活泼,蓝白灰三种颜色,相互交织同时又相互联系,一切都恰到好处。

照明突出有设计感的主灯,其他小灯具不经意融入进来。奢而不华,温文尔雅。

在顶部以华丽的水晶灯营造气氛,布艺沙发组合有着白色的墙体,流畅精巧的雕琢的白墙,营造出优美的曲线,精良的雕塑工艺,都是客厅里的主角。

白的质感,蓝的贵气,迸发出强烈的艺术张力。循着自然与光,享受一场奢华质感的人间烟火。

整体设计沿用客厅风格奠定整体基调,以简约和欧式的形式勾勒生活美学。同时在餐厅基础上增设岛台。与厨房之间更加动线合一。简净的浅色调,天然的纹理和材质呈现出高级的质感美,整体空间流泻出温静自然的气息。

圆形的吊顶,不仅与六人圆桌互相衬托,还与客厅的装饰互相对应,六张超有纹理质感的餐椅与大理石地砖的纹理互相散发出了大宅的温馨和惬意,本案将现代与欧式的端庄高贵完美融合,细节处处彰显格调。

休闲时刻,以茶为伴,闲云悠悠,乐在其中。茗茶区以雅为引,欧式壁炉元素营造温暖氛围。透过素雅的装饰,与整个空间实现光与色的相融相通。呈现出纯粹与安逸。

进入茶区,莫名的禅意扑面而来,本案空间师茶室将东方的禅意和欧式的优雅巧妙结合起来,在这里不止是一种朴素的生活方式得到诠释,更推崇人与环境和谐共生的婉约。

第一眼就被餐厅处的吧台设计所影响,通体奶油白的岛台和橱柜,银白色的座椅来点缀,腔调十足,质感满分。

整个餐厨和吧台采用的是开放式设计,以岛台为中心打造动线,橱柜也随着使用场景增高或者是降低,层次感十足。

在吧台的细节处,设计师也多加考量了,收纳与美观度的融合,既要凸显出业主一家端庄的性格特点,还要保留欧式低调奢华,给家里的人一个温馨、浪漫与舒适的空间。

极简布局,享受烹饪。具有欧洲宫廷风格的厨房,采用独立中央岛台设计,奶白橱柜结合大理石镶嵌,质感满满,简单线条勾勒,让空间动线分明。

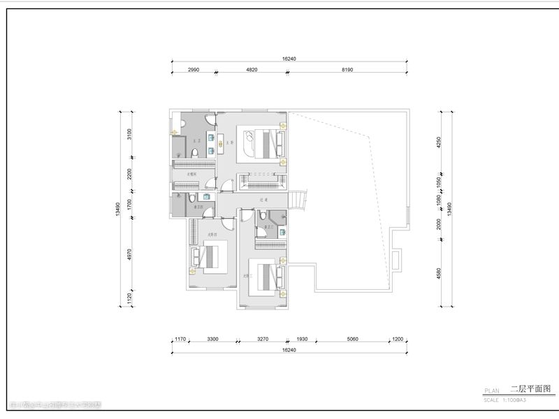
卧室以浅灰白色系为主,营造出更加放松而舒适的休息环境。加上时尚金与木质花纹地板,形成色彩的对比和冲突,一明一暗,一深一浅,鲜明的差异化表达让视觉层次更加丰富。

在灯具的选择上也十分讲究,床头的壁灯、台灯,每一个的搭配透露出精巧的美感,为卧室空间增添了几分灵动。

这样的卧室设计感觉好让人向往呀......卧室的设计没有采用整体纯白色系设计,而是采用复古的欧式设计。

本案亮点之一是浴室。以高级的石材元素和灰色金属点缀,妥妥的高级感铺面而来,在家也能随时开启度假模式,高温煅烧而成的岩板台面设计,耐磨不留痕,污渍不渗透,清洁更加省心。
