方案解析
Apartment | 三室两厅两卫 Address | 东方美地 Area | 106㎡ Style | 现代简约 Design | 李锐设计


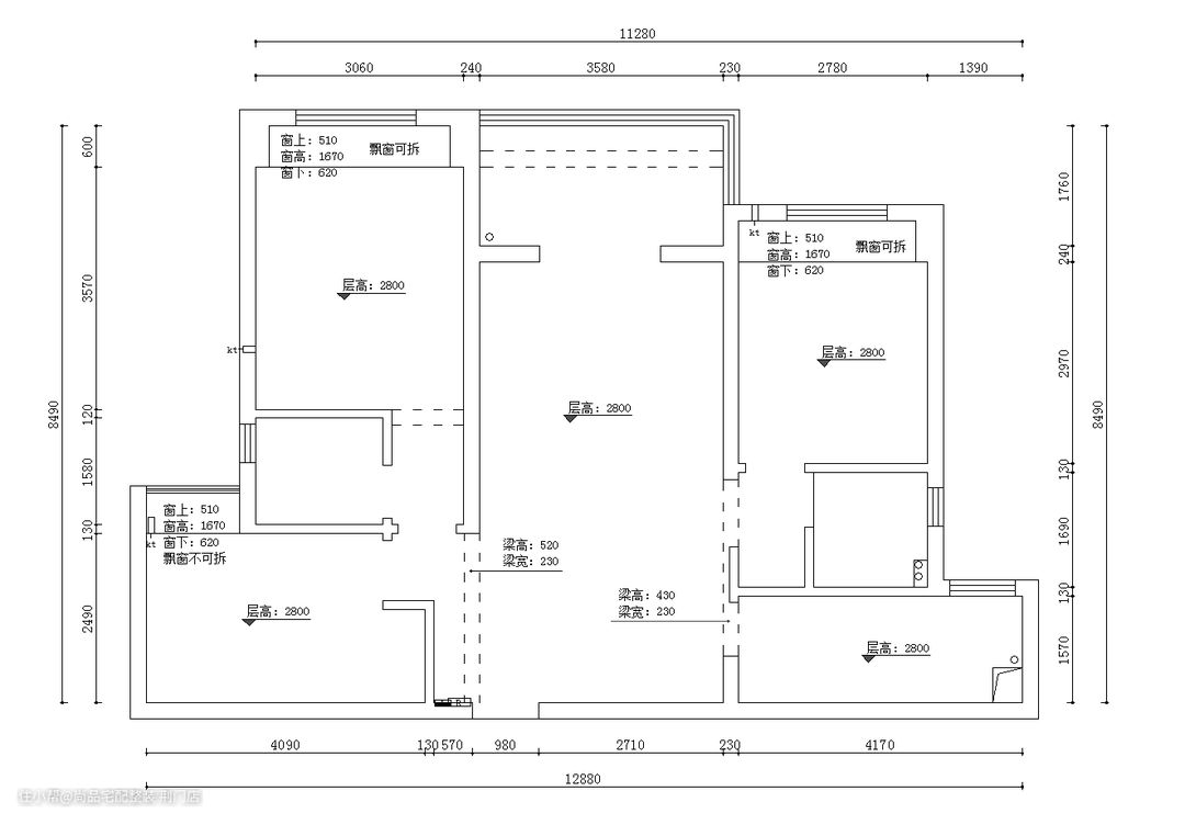
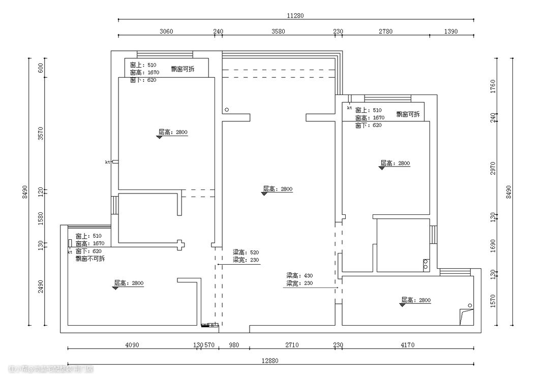
1.在原有格局基础上进行优化重组,借用墙体空间增加收纳,提高空间实用率。 2.将原厨房空间打开,将厨房内置,打造宽敞明亮的L型厨房。同时,以玻璃门作为隔断,另一侧便是宽敞通透的餐厅空间。餐厅靠墙两侧均定制了到顶收纳柜,鞋柜、餐边柜通通安排上! 3.公卫前拓,将原过道位置纳入了其中,重新划分干湿分离,增加过道收纳空间。
客厅
摈弃繁杂的装饰,流露出简约大气的空间气质。黑色岩板圆边矮几、浅色直排沙发,不同材质碰撞出独特的魅力,既有童趣感又高级。


餐厅
原厨房与餐厅合二为一,这里刚好又是入户区域,进门的视野非常开阔。餐厅的两端都做了整面到顶柜子,鞋柜、餐边柜、杂物收纳柜统统都有,日常囤货、收藏、展示需求都得到了满足。


主卧
床头一侧的吊灯与太空人的挂画亮眼又吸睛,缓解深色系空间的沉闷之感,又和墙面自然材质有所呼应,使空间更加丰富。

次卧
与其他房间的风格相比,次卧以一种简约而不简单的布局设计出现在了这里。靠窗的位置连接着书桌,拓宽了使用面积。连桌子上方的展示架都做好了放书的准备。

