屋主是一名律师,需要一个比较安静舒适的家居环境。喜欢简单的形态,将空间变的生动。设计师以都市精英追求物质生活的丰富多彩,又对自然艺术品位有极高的要求为出发点,将现代简约的设计与时尚格调相融合,作为家庭日常生活主要活动的共有空间,以寓教于乐为设计理念的贯穿与整个空间。

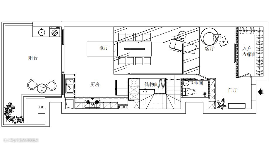
房屋信息: 项目地址 / Address:丽晶国际 设计施工 / Co :铭品装饰 风格| Style:现代简约 项目面积 | Area:80㎡ 设计亮点: ① 整个氛围干净简洁,沉稳大气。色彩与装饰上,无需过多的点缀着重强调黑与白的相互依存关系。 ② 一层暗门的设计让空间更加具有整体性和隐私性。 ③ 楼梯镶嵌的灯带提供了照明同时也增加了美感。 ④ 二楼的弧形吊顶和玻璃栈道使空间更加通透,中间镂空的水晶吊灯彰显屋主的品味,提升空间格调,是营造氛围的最佳选择。 ⑤ 卫生间做三分离的设计,提高每一个功能区的使用频率。

玄关以黑白色调为主,形成对比,内嵌式的顶灯设计,通过灯光创造了一种深度的印象。玄关墙放置了黑色鞋柜,给鞋子提供储存空间,台面上是光泽感十足的房屋建造模型,视觉上产生温暖的空间效果。

乳白色的皮质沙发作为换鞋凳,鞋架摆在一侧,让进出换鞋更加方便。红色的装饰挂画可以减轻黑色空间带来的沉闷感。 【装饰画TB店铺:油情画意旗舰店 60¥】 【瓷砖品牌:马可波罗瓷砖】

公共空间是走廊式的格局,两端的尽头分别是客厅与餐厅区域。整个空间干净简洁,沉稳大气,色彩与装饰上,没有过多的点缀,着重强调黑与白的相互依存关系。 【豆腐块单人沙发椅TB店铺:芝华士头等舱实体店联盟 1500¥】

装修时对房子最大的改动就是用了大面积的玻璃地板代替二楼的地板及挑空,这样可以增大使用面积,节省层高,视野也更开阔,搭配上独特的灯光效果,整个天花/地面显得非常治愈和炫酷。 【水晶吊灯TB店铺:萤火之光】

餐厅是餐桌+岛台一体的设计,岛台比餐桌高出15公分,较高的岛台可以提升用餐的情趣感,也可以充当餐桌辅助。

白色岩板台面+黑色铁艺桌脚,将黑白色系贯穿到底。餐椅选用灰色皮革椅,高回弹靠背带来舒适的坐感体验。

靠墙处做了一排饮水机,在这里可以泡一些茶或咖啡,方便用餐时饮用。



厨房做了开放式U型的布局,色系以灰加白做搭配,将静谧沉稳的气息,蔓延至厨房的每一个角落。柜门无把手反弹器的设计,更能凸显出橱柜的流畅线条,柜门材质选择的是哑光质感,非常大气。

卧室没有按传统方式摆放电视机,而是定制了电视支架,支架可360°自由转动,还能随意调节电视高度,无论是摆放在客厅、卧室,或是坐在地上、躺在沙发或床上,都能轻松看电视,玩游戏,超方便!

背景大面积的留白艺术更能彰显空间通透感,再搭配天花的线条灯带照明,大气又美观。

主卧前是卫生间区域,根据不同的功能区划分为了三个隔间,分别以移门作为隔断。

床头架上的汽车模型搭配壁灯折射出的光线,非常炫酷。

次卧进门做两层台阶,下面做整个房间的地台,提高床体高度,可以有效解决返潮问题。地台阶梯部分高度15CM,同时也是隐藏式的抽屉,可以做更多收纳。

书架和书桌连通床体,做了一体式的设计,将次卧转变为办公+休息+收纳于一体的空间,非常实用。

手办盲盒装饰黑色书架,减少纯色背景的单调感。

卫生间将马桶区、台盆区、淋浴区分别置于独立的空间,为了不影响通风和光线,隔板选的都是带有透明度和工业风拉丝材质的。

浴室柜选择了台下盆,充足的台面可以收纳一些瓶瓶罐罐,化妆镜是可智能调光的,再搭配一圈灯带设计,更有时尚氛围感。

淋浴区是浴霸+浴缸结合的洗浴形式。


阳台没有做封窗设计,半高的玻璃栏杆将一切外景尽收眼底。

楼梯镶嵌的灯带提供了照明同时也增加了美感。

二楼的弧形吊顶和玻璃栈道使空间更加通透,恐高者慎入的设计!


中间镂空的水晶吊灯彰显屋主的品味,是提升空间格调,营造氛围的最佳选择。

