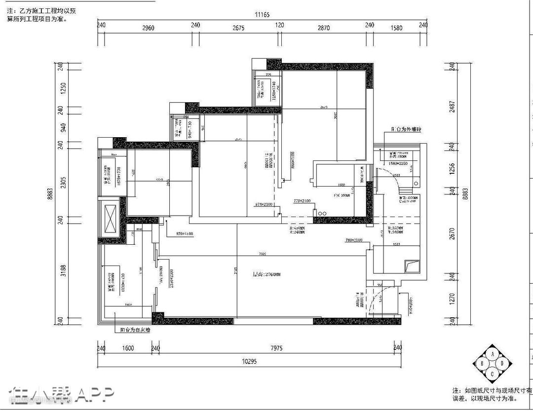
原始户型: 1. 厨房空间对业主来说太小了,需要扩大; 2. 餐厅的过道有一些拥挤,来往不舒适; 3. 卫生间也有些小了,业主要做干湿分离。

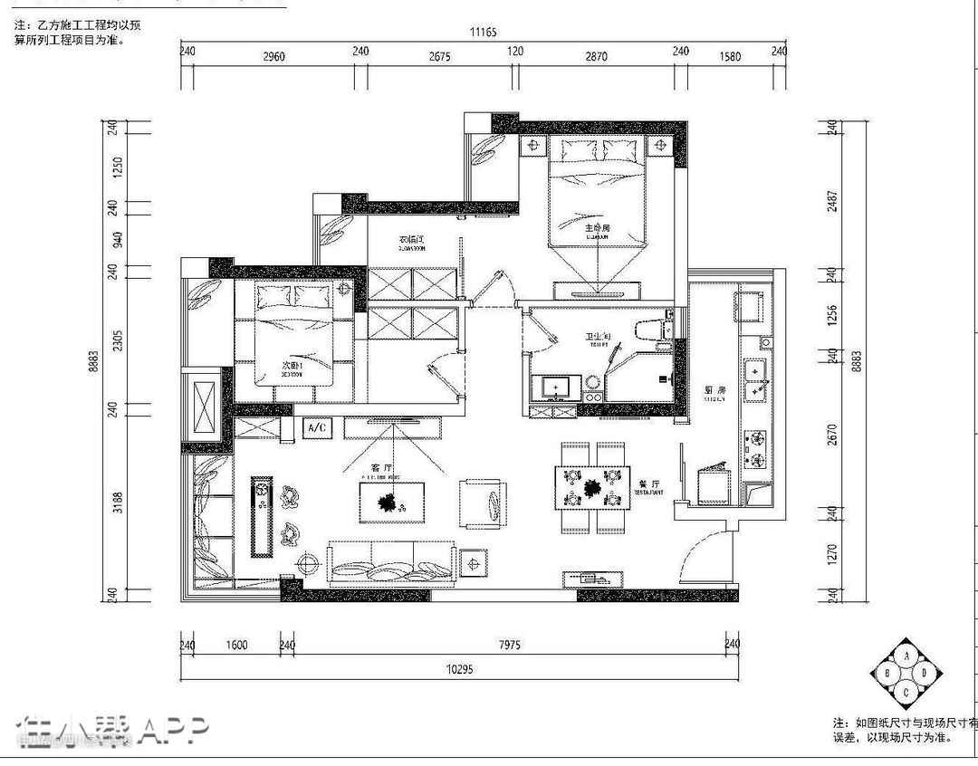
改造后户型: 将三房改成了两房,扩大了卫生间面积和两旁卧室的面积,会使整个家居住起来更加舒适。

屋主诉求: 1. 这套房是一家三口的幸福小屋,平时没什么客人来,所以业主说为了保证自己家人居住的舒适度,可以适当的牺牲一个房间; 2. 要求装修风格要时尚洋气还得耐看,不要过于华丽,同时因为家里有小朋友,希望安全性高一些。 设计理念: 设计师以体现时尚个性现代都市生活气息为主,运用了经典耐看的黑白灰为主色,再加以金属质感很强的黑钛不锈钢条来划分空间,让整个空间变得更有层次感线条感,外加主题的背景墙运用到仿水泥砖的不规则地砖,让整个空间又多了一分质感。 很注重硬装和软装的搭配,因为设计师认为若是硬装和软装不能相互融合,这个家就是没有灵魂的,同时在了解到业主需求后,在设计新家时注入了许多灵魂,最终打造出了这套令业主满意的新家。

无主灯设计+回字形吊灯,让客厅富有层次感的同时不会压层高,小面积也不显压抑。采用了筒灯和灯带作为主要照明工具,光线柔舒适不刺眼,且投射的更加均匀,不会出现一个地方过亮一个地方过暗的情况。 从这个角度可以看到在阳台上打造了小书桌,相当于做了个开放式书房,且因为只用了门垛隔断和没安装过门石的关系,通透感强烈,在视感上起到了增加客厅面积的作用。 没有安装最近较为流行的落地窗,虽然落地窗视野更好且能增加采光,但隔音还是不如普通墙面,且保暖性不高不便于清洁。 沙发为简约大气的一字型,下面为米白色,上面是蓝色软垫,两种颜色搭配到一起之后清爽干净。且蓝色也较为耐脏。靠近阳台的位置是一张棕色的皮质单人沙发,较高的座椅不会让人感到腿脚无处安放,舒适感又惬意。

整屋地面都采用原木地板通铺,淡淡的原木色自带小清新氛围感,且没有瓷砖容易滑到、冬暖夏凉,脚感舒适,很适合有小朋友的家庭。 茶几与电视柜都则了乳白色,纯净自然。茶几的饰面还带有一定反光性,在某种程度上可以起到增加室内光线的作用。随意在茶几上摆放一束鲜花,就能展现出屋主对生活的热爱了。 现在再和大家介绍一下背景墙吧! 沙发墙为白底,采用金属质感强烈的黑钛不锈钢条来装点,线条干净利落,给人一种简约又不失硬朗的时尚感,也和吊顶上的黑色灯具起到了相互呼应的作用。 电视前做了瓷砖上墙,瓷砖上带有凹凸不平的纹理,富有立体性与时尚感,且这种瓷砖不带反光效果,像是略微粗糙的石头表面,不仅是看上去更加沉稳大气,还避免了看电视时反光刺眼的情况出现。

过道分隔开了客厅与餐厅,令两个空间各自独立。因为没有再做墙面或柜子等来隔断了,所以在餐厅做了不同的吊顶,安装了一个吊灯,再次彰显出两个空间独特性。 因为餐厅面积不大,所以选择了更加节约空间的放心餐桌,但挤一挤也可以同时容纳六人就餐。餐桌也为带有反光作用的光滑饰面,除了能增加室内光线,还很方便打扫呢,若是有油污滴上去直接用湿抹布擦拭干净即可。

玄关和餐厅离得很近很近,几乎在同一空间中,但是为了避免压抑局促,没有另外再做隔断了。玄关区域放置不下鞋柜,在餐桌侧面墙边摆放了一个白色半高玄关柜,上面用盆小花装饰,再搭配上吊灯的小筒灯,有了优雅浪漫的氛围感。 厨房也在餐厅旁边,为了增加厨房和餐厅的采光,采用了门框较少的玻璃推拉门,通透又明亮。在摆放玄关柜的这面墙上,用了许多和客厅风格一致的黑色金属线条点缀,既不会让墙面显得太过复杂华丽,又具有纹理美与时尚感。

最后就要给大家介绍一下餐厅背景墙啦,背景墙分为了两部分,外侧为餐边柜,内侧是较为简约的墙面。 外侧的餐边柜被直接嵌入到墙体中,柜体为乳白色,下面的柜门上带有干净的框线与小巧的把手,整体来说清爽纯净,而且还能节约空间。柜子上部分都做成了开放式,还有安装光线温和的LED灯,展示效果很强,适合用来放置红酒等物品。底部就是常见的平开门了,一些外观不好看的杂物就可以放到这里面咯。 内侧墙面也用了黑色金属线条来修饰,但直接将线条做成了长方形,搭配了一盏小筒灯,简洁气质十足,还展现出了框线独有的大气美。

因为厨房内部空间偏向狭长,所以做了占地面积最小的一字型设计,为了提高空间利用率,在上方安装了吊柜。哪怕厨房不算大,但是冰箱也要足够大才行,所以在侧面摆放了一台多门冰箱,一家三口日常使用完全足够了。 墙面用灰色哑光瓷砖通铺,缝隙做的很细,方便清洁打扫。吊柜为白色,橱柜为咖色,整体呈现出上浅下深的配色效果,在保证通透感的同时还沉稳大气。

橱柜从左到右是洗菜池、切菜区,灶台,这样的分布,拿出食材后直接洗切炒跟着走就好了,动线流畅,避免了在厨房中跑来跑去的尴尬。另外橱柜饰面是带有自然清晰纹路的木材,质朴感强烈。台面则选用了性价比更高的花岗岩,方便清洁打扫还不容易被磕碰出小坑。

主卧以蓝色为主题,像大海一样深邃。 床头背景墙全都被渲染成了蓝色,其他墙面依然是白色,搭配到一起之后不会给人突兀的感觉,相反能更好的突出蓝色。当床头一左一右的两盏白色小吊灯的光线投射到墙面上之后,让这两个区域都亮了起来。床上用品也为浅蓝色,柔软舒适。 因为飘窗无法打掉,所以就按照最简单的做法来装啦,在上面铺设一张软垫,就是个休闲惬意的舒适区咯。

床头一左一右都有安装插座,方便晚上给手机充电,一般来说这几个插座足够使用了。床屏是米色软包,像白云一样柔软舒适,且软包还可以增加隔音呢!近看床头背景墙,上面带了细细浅浅的纹路,精致细腻有层次感。

主卧有个单独的衣帽间,是许多女孩子梦寐以求的吧?为了节约空间,衣柜做了推拉门,上面还打造了一排小柜子,专门用来放置过季衣物或不用的被褥等等,提高空间利用率。衣帽间也有个小小的飘窗,将上面打造成了抽屉,可以用来放置屋主的小物品,在外面摆个凳子还能充当梳妆台使用。这个小窗户对衣帽间来说很重要,适度的通风能够防止衣物受潮发霉。

最后就要给大家介绍一下卫生间了,这个卫生间原本是没有这么大的,纳入了一部分卧室空间增加了面积。墙面上面为浅卡其色,下面为灰色,仿佛将空间分成了两部分,更具有层次感了。 在卫生间转角做了钻石型淋浴区,干湿分离更加品质。正对淋浴区左侧安装马桶,右侧则是浴柜,通过合理的布局将空间利用率提到最大。 还做了不少实用的小设计,在如厕区与淋浴区夹角上方安装了置物架,可以用来放置洗涤用品,既不占用室内空间还增加了收纳。然后淋浴区到卫生间门口铺了一张防滑毯,虽然室内地砖都选用了防滑效果最好的款式,但家里的小朋友也会容易摔倒,用了防滑毯之后更有安全感。
设计师:冉莉 擅长风格:现代简约风、现代轻奢风、现代前卫风、简约美式风、原木极简风、北欧原木风
