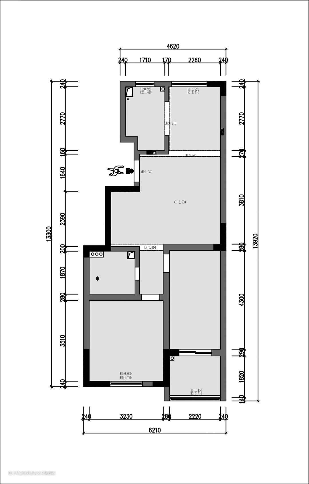
本案原户型最初的感受是空间比例非常奇怪,存在门对门、客厅采光很差且空间利用率低等问题。 因为面积仅75㎡,各空间实用面积很有限,房子作为业主家的刚需房在设计上会更偏向于实用性。除了增加空间的利用率,再者就是调整空间比例,使之更为宜居、舒适。


设计解析: ★改变厨房进门,并向书房微移,优化空间比例及生活动线; ★新增书房,作为客餐厅的延伸部分还能解决客人留宿问题; ★设计隐藏式储物间,增加收纳; ★主卧门洞位置调整,为儿童房改造留出空间; ★儿童房整体向阳台移位,扩大客厅的同时缓解卫生间门正对的尴尬。
本案进门即客餐厅,纵向的视野非常不错。


改造前: 厨房、次卧墙面封锁空间,局促感较强;奇葩“手枪”型空间,利用率、舒适感都较低。 改造后: 对空间做了彻底的改造,不仅面积更大,整个沙发背景墙做了柜体设计,提高了空间利用率。

入户进门正对的是餐厅区域,因为整个空间做了拓宽,整体的空间感尚可。选择一张木制方桌,靠餐边柜放置,保留充分的通道空间。


一方餐桌搭配长凳+2把藤编椅,休闲的同时也更能享受团圆的氛围。相比传统的对称布置,这种形式能在一定程度上节省空间,也能增加落座的人员。

餐桌的颜色非常暖,木纹清晰细腻,结构稳定,占据承重优势。餐边柜做了置物台的设计,用石材包边方便家电及其他物品的放置。 木制天生自带的暖调,对于氛围的渲染很有一手;选择暖光餐厅灯,用餐区呈现的是一个非常温馨的格调。客餐厅以整面式的柜体做了空间的延续。

选择白色的柜门,对于没有采光的客餐厅来说,其颜色本身有不错的反光效果,能让空间显得更为清爽、明朗。同时足够的储物柜,杂物也有了好的去处,空间干净又整洁。 客厅的采光问题,是以筒灯作为主照明,配合灯光带布置,提升了整体的光感。

双人位布艺沙发,灰色调是简单的休闲意味。靠背、坐垫饱满,扶手加高,以及贴心的腰靠,这些细节的设计让朴实的沙发造型,变得更加实用、舒适。


靠墙[LAZBOY乐至宝]沙发单椅,正坐、斜靠两种形式可按需选择。挑选的是[春晓]的款式,与空间整个的色调非常协调。柔和的灯光带,让这一隅更为惬意。

改造前: 客厅正对的小空间面积不大,采光较差,存在空间浪费。 改造后: 设计隔墙作为电视机背景墙,做隐形门暗藏储物间。

从进门开始以木饰面进行铺贴,浅色调更能契合极简的风格主题。中部壁挂电视机嵌入。单侧做通往储物间的隐形门,完美接缝黑色装饰线。

厨房改从餐厅进入,不仅能保证书房的完整,还能优化生活动线。

改造前: L型台面设计,无吊柜,空间利用一般,老旧的颜色搭配,出租房既视感。 改造后: 改变门洞位置,墙面向书房移动,增加厨房面积;上下柜布置将收纳最大化,U字型台面增加操作区域,厨房整体的利用率提高。此外门洞位置的变化增加了客厅的进光面。

黑白灰色调的厨房,非常简洁大气。洗碗机嵌入柜体内,可保留充分的台面供操作。除了柜体的布局,墙面挂钩充分利用留空的区域。
书房位于厨房旁边,腰窗提供充足的采光。

改造前: 杂物堆放,空间功能未作过多开发。 改造后: 为屋主的办公区域,客人来时也能留宿作为临时客房之用。

书房布局较简单,成品办公桌+办公椅+电脑,更凸显了本案实用的主题。 玻璃门作为书房的隔断,在空间上会更有一种延伸感,起到似隔非隔的效果。

主卧门洞作了小改动,为儿童房的改造留出空间。优势在于窗户提供了不错的采光,虽面积仅11㎡,但整体的空间感非常不错。 改造前: 可能因为空间不大,选择了较小的床铺,更显得局促,空间完全没有美感。 改造后: 床铺尺寸翻倍,更为大气,硬装虽简单但是空间重心立显。


留白的墙面单侧壁灯,照明更兼装饰效果。虽卧室布局简单,但在去掉繁琐之后更有一种天然的美。 粉灰的颜色搭配非常高级,软装布置提供居家的安适与恬意。


可移动的亚克力置物几替代床头柜,灵活性更强。平移柜门,开合不占用空间,对小空间非常友好。

儿童房整体向阳台做了移位,保证了休息区面积,又能避免与卫生间对门。 改造前: 是一个卧室+杂物堆放室,完全没有收纳空间,可变动性很小。 改造后: 门洞改变,多了可设计柜体的区域。床+收纳柜满足基本需求,靠阳台位置布置了休闲区,后期也可以添置家具家电,可塑性很强。

儿童房约长4m,宽2.2m,是一个偏狭长的空间。床+柜体并排放置即占满整个面,柜体部分镂空,可替代床头柜用于置物,下作抽屉实现多样化收纳。

女儿还小,所以床尾暂时是布置为休闲区域,放置一个衣架,可做衣物的简单收纳,后期可按需求再行布置。

暗卫的设计向来不简单。 改造前: 密集的小砖有很强的局促感,虽然多为白色,但原本的灯光很不给力,加上暗卫,整体很昏沉阴抑。 改造后: 白+灰的配合视觉轻盈,改用常规尺寸的墙/地砖铺设,打开了视线。

一体式的格局,镜柜、淋浴区、如厕区都有好的位置,让卫生间更为规整有序。马桶自带喷枪,方便表面污渍的清洗,是非常人性化的小设计~
