小区:恒都广场 地址:上海市松江区中山街道茸梅路恒都广场 面积:36㎡ 风格:现代简约 设计师:黄家俊 装修类型:旧房改造 装修方式:半包

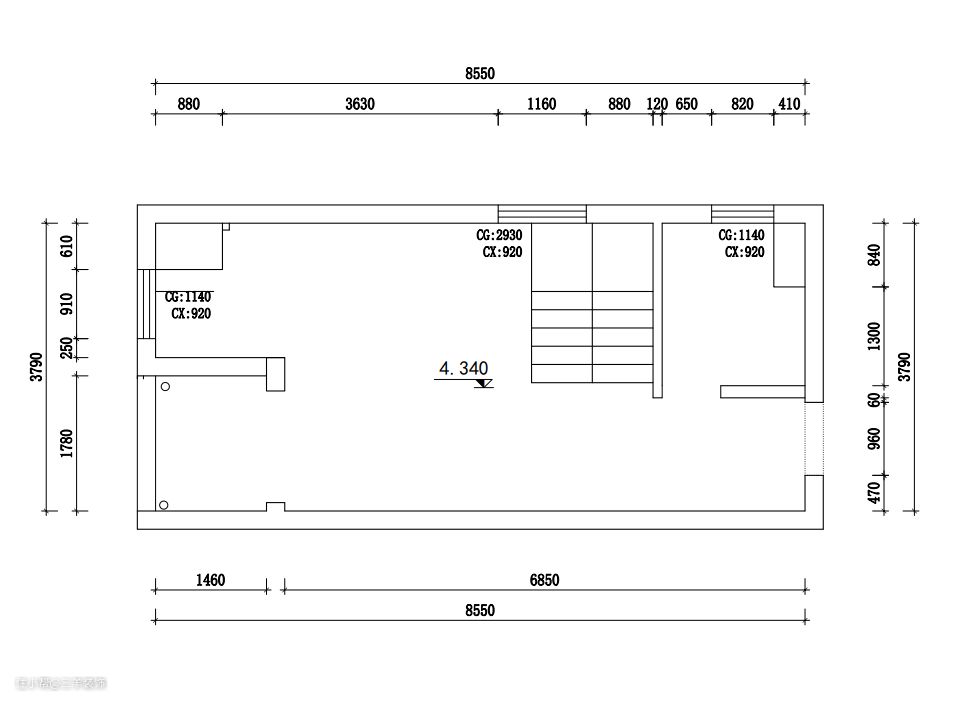
这套公寓原本楼梯口位置在客厅和厨房位置,经过设计师处理之后,将楼梯口的位置移到了入门口的位置。

这样二楼位置,有了更多可能性。原本二楼没有卫生间,洗漱还得下楼,改造后,将次卧位置缩小。卫生间空间变大,使用更加便利。而对于一楼,去除掉了原来的楼梯后,一楼空间视觉上看起来更大。


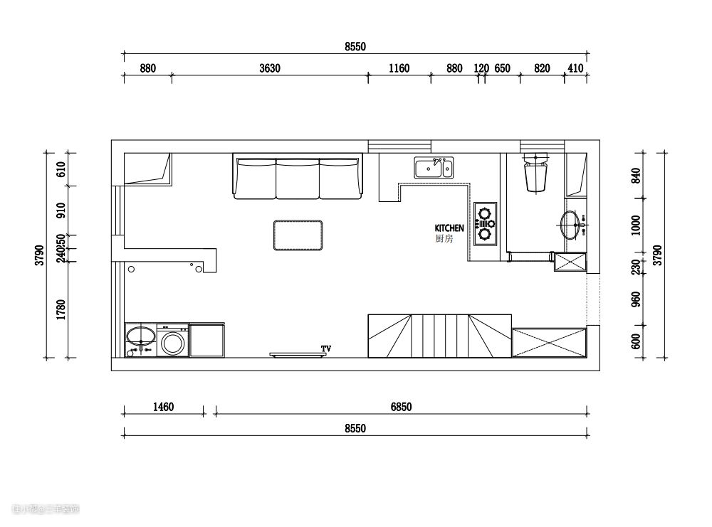
玄关右边是一个中部镂空的玄关柜,下班回家之后就可以直接放置钥匙或者小物件。鞋柜下面留空,会让使用变得更加方便。




柜体一直延伸到二楼楼梯口。实现储物空间最大化。

一进门可以看到,大门左边是一个大柜子,外面是一大面穿衣镜,方便出门时整理着装。
然后玄关进来就是一个开放式的大空间,包括了客厅、餐厅、厨房~而且整个空间的配色也都是以简约、清新的格调进行装饰的,白墙和灰白色的地面连成一体,在视觉上起到放大作用,这样的设计很常见于小户型。

餐桌放在楼梯下面,大冰箱放在电视右边,空间利用得刚刚好。

地面选择灰白色地砖密缝铺贴,从玄关到客厅一路铺贴,视觉上更加连贯大气。



厨房运用大面积白色削弱了二层儿童房带来的层高的视觉压迫感。

L型厨房布局,洗涤区、操作区和烹饪区相连,更符合日常烹饪习惯。

开放式社交厨房设计,女主人可以在吧台切菜备料,小朋友在客厅看电视,男主人在旁帮忙或者和孩子一起玩乐,将烹饪变为增进感情的催化剂。


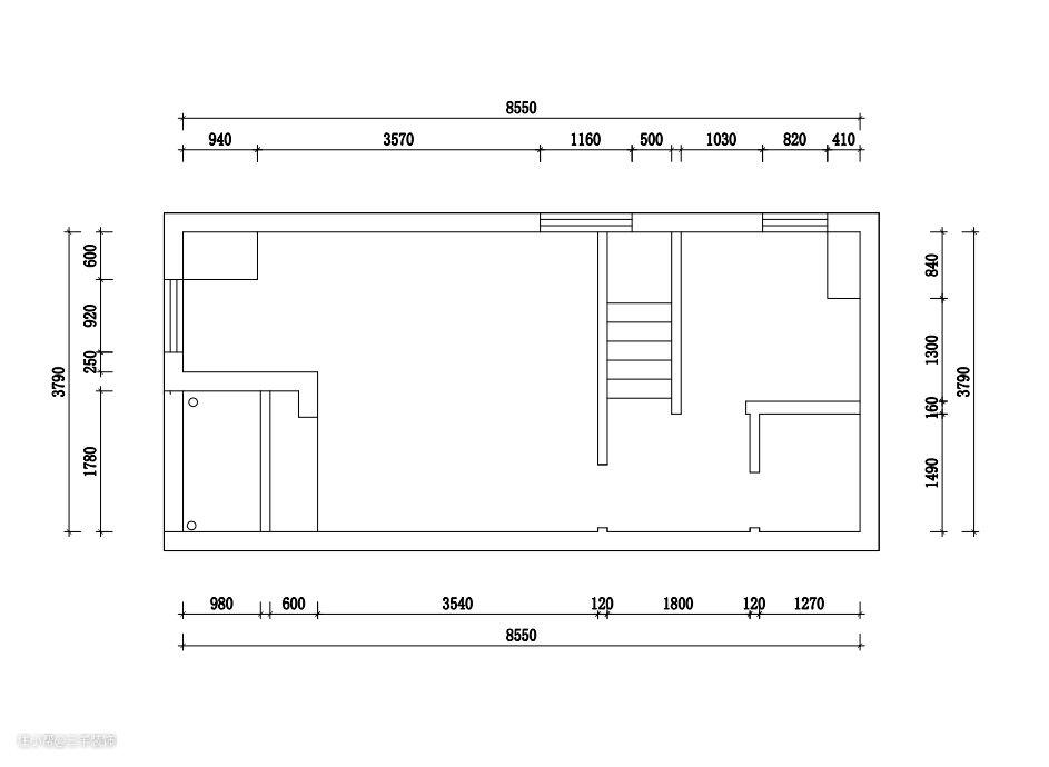
主卧放在了二楼,从进门直接做了一个L型的转角衣柜,卧室作为休息的空间,应当多采用饱和度不那么高的色彩去装饰,以保证睡眠的质量,所以卧室采用了大面积莫兰迪色系,低饱和度的色系,使空间更有质感,更高级,给人安静舒适的感觉。

床采用的是皮质材质,床的两侧放有床头柜来丰富视觉的层次感。另外,无论是床、床头柜以及装饰品,还是卧室的踢脚线,都使用了统一的色调,使房间整体在视觉上呈现出一致。


主卧过来便是次卧,卧室作为休息的地方,墙面刷的是低饱和度的婴儿蓝乳胶漆,窗户旁边放置了一个衣柜,放置日常的衣物。空间小却很温馨。

一楼玄关往里走便是一楼卫生间。


二楼楼梯上来便能看见二楼的卫生间,干区挪到外面。


内部卫生间整体灰色抛光的墙、地面基础,提供了干净清爽的空间环境。





本案设计师:黄家俊 职 位:总监设计师 擅长风格:现代-轻奢-日式-欧式-美式

施工团队:三羊装饰施工队
