这个住宅的主人是一位95后IT男,每天除了沉浸在电脑世界里无法自拔,除了工作,最大的兴趣爱好就是收藏手办。这个住宅是他一个人独有的私人领地。这么酷的男生,特立独行,随性自由,所住的家居当然也要如同网络世界一样,各种链路四通八达,低调里蕴含着张扬的个性才对啊!设计师跟主人沟通之后,以工业风来定义这个家居,黑白灰与间或彩色的装点,融汇出平平无奇中的隐隐光芒,钢架与原木两种不同材质的对撞,上演百炼钢成绕指柔的百转千回。这是一个让人看一眼就不能忘记的住宅,更重要的是主人在这里挥洒内心的本真性情,与住宅完美的融为一体。

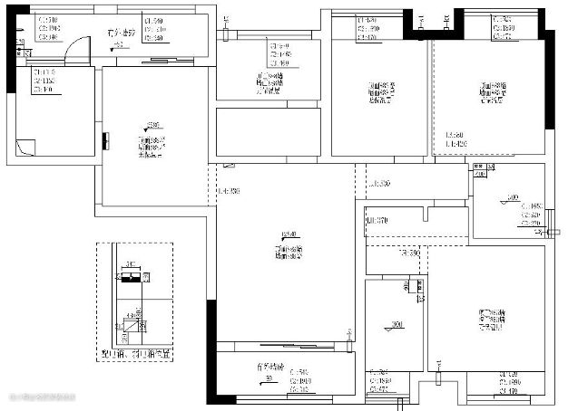
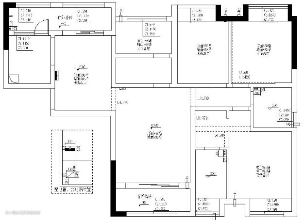
户型缺陷 1、原住宅空间较为零碎,与客厅相连的空间由隔墙分开成两个面积较小的空间,急需优化。 2、主卧所在的空间位置与客卫由同一张门进出,急需优化。 3、厨房开门进入生活阳台,造成两个空间都不方便使用,急需优化。

解决方案: 1.与客厅相连的房间设计成书房,敲掉隔墙,将两个小空间合并成一个较为宽敞的书房。 2、将客卫的门朝通道开,封掉与主卧的隔墙,并设计成干湿分离的客卫生间。主卧室则敲掉原来的储物间隔墙,将原空间设计成一个单独的衣帽间,增加实用性。 3、封掉厨房的门,保持厨柜设计的整体性,生活阳台由餐厅进入,增加生活的便利性。
住宅的客厅设计充满浓郁的工业风气息,顶面的各种管道从建材市场购回,涂刷黑色和灰色漆后由专业的工人进行安装。以此构建好工业风的基础。

客厅部分以灰色的布艺沙发配衬铁艺架构搭木板的茶几,墙面也以浅灰色涂刷,以装饰挂网搭配各种各样的生活小照,形成一处非常别致的小景。

TV背景 电视机嵌在一个由铁架和原木组合成的镂空柜中间,与上方的射灯相融,形成一副特别的画面。镂空柜可置物,也可放置各种绿植,既符合工业风的特色,又具有实用的价值。

餐厅部分以铁艺镂空架作为一个小小隔断,餐厅与厨房以一道淡蓝色的吊轨门相隔,门的设计颇有电游中闯关门的模样,非常具有奇幻感。在此用餐,无论是主人还是朋友,都会觉得十分特别。

主卧室顶面仍以管道铺陈,再次强调工业感,淡淡的灰色与淡淡的蓝色形成墙面的拼接,床品用样以同色系铺就,使睡眠空间中充满着宁静柔和的氛围。

卧室局部 不得不提的是卧室当中靠墙的吊柜,以黑色铁艺三角支撑,面板刷宝蓝色,极富高级感,与淡雅的雾霾蓝空间交相辉映,既美观又实用。

书房的设计同样用到两种材质,铁艺和原木。两种材质的交融,是硬汉与柔情的交织,爱收藏手办的主人,把此处作为自己的私人领地,简洁的办公桌也符合工业风的气质。墙面灰色与黄色的拼接,窗帘以白色和黄色搭配,营造出一个极具个性的书房空间。

次卧室 墙面的一抹新绿柔和了整个卧室空间,一盏暖黄的工业风款式聚光灯让灯下的这丛绿植更凸显出盎然生机。

住宅的卫浴间有一种极致的,不动声色的美。浅咖色墙面与地面同色,空间足够宽阔,可以放置私享的白色浴缸,累了的时候在此泡澡,足以放松身心。黑色淋浴花洒和黑色百叶帘,又不自主地把酷炫的工业风带入到这个极简的卫浴空间。

