这是20年设计的一套房子,屋主是位程序员,刚拿房不久,买的是精装房,但其装修布局实在不适合自己想要的样子,想改善现有的布局空间。原有布局(厨房L型布局,放完一个单开门冰箱就基本上没有操作台面了,空间又小需要的电器也没地方放。小三房)但这个房子目前就以他自己为主,偶尔父母会过来居住。三个房间相对较局促,有个房间是带有阳台的,空间零散琐碎。其实改善现状最重要的一步就是空间的布局改造,一直和接触的屋主强调布局改造的重要性,空间住的舒不舒服,实不实用,好不好用,空间布局很重要!

原有结构还是有很多改造的可能性的 散落的空间之间又该怎么处理衔接关系呢?

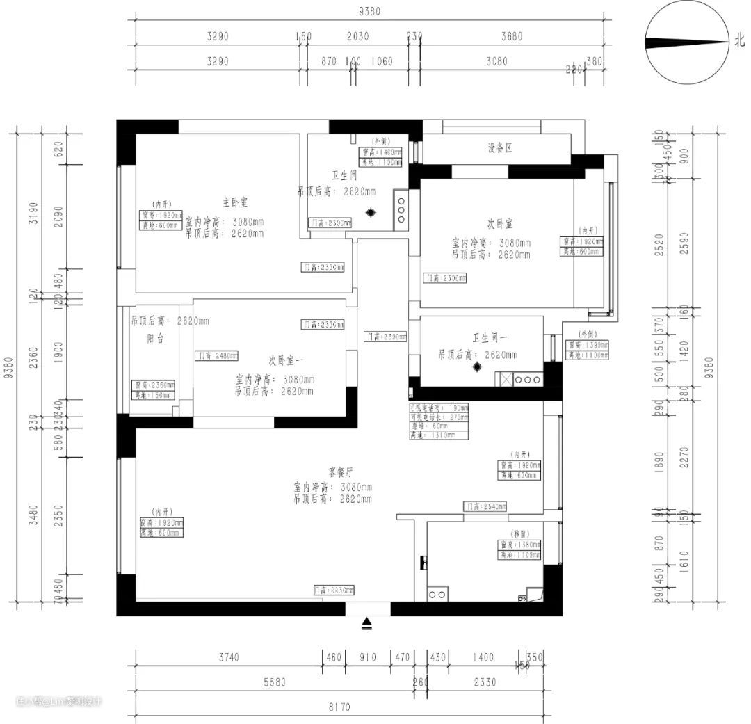
空间进行了重新组合规划 1.将卧室墙体拆除,补足衣帽以及偶尔办公空间,形成套间式主卧,极大了丰富了主卧功能和整体 2.原户型过道空间浪费,我们通过新建墙体,扩充父母房区域,公共空间更加规整 3.原户型厨房餐厅较小,我们拆除两堵隔墙,将餐厨区域合并,实现了屋主的中西厨 4.开放式厨房与餐厅形成一个U型布局 南北通透的无遮挡设计,打造极舒适通透的家居氛围感

案子现场是精装房交付的,餐厅以及厨房是很局促的,都是统一标准的装修风格,不符合屋主的居住诉求。

重新打开空间重组后,整体以现代黑白灰的风格为主,开放式厨房衔接餐厅的形式将西面的阳光都最大化的引入室内。

入户后右侧还是保留了一组鞋柜方便使用 底部悬空200mm以及中间空出400mm的高度均是更便利于回家放置的动作 形式的简单 是回归生活日常的内在 抛去繁杂的形式 才是回归生活的本真。

整体色调还是走现代简约风,干净利落且有质感 客厅墙面选用的灰色艺术涂料,自然的肌理感跃升空间层次感。

电视机背景墙巧用石膏板内藏灯带的设计延伸至过道处 黑白灰的简洁搭配,低调又耐看 100寸的激光电视也是屋主一直梦寐以求想拥有的 在家轻松实现超享受的视觉观影自由 地台是选用天然石材黑白根(小细节哦:地台预留了活动板,将线路都隐藏在提前预埋的50管里,这样装上电视就不会看到一堆明着的线了)

顶部的无主灯设计以及贯穿空间联系的磁吸轨道灯 干净利索的黑色型材的线条感在强调空间韵律的同时又增加空间的设计感 黑白灰的强烈对比 营造了一个家的秩序感 节奏简洁明快。

客厅没有用茶几,屋主说这个小边几现在就是他的饭桌,他很喜欢用这个可随意移动的边几。

客厅墙面没有过多的装饰 空间整体以灰调为延伸 在空间之上徐徐展开 辅以皮质、木质、金属等 糅合出意想不到的协调感 钓鱼灯和可随意移动的边几又在线条部分为空间增色不少。

黑色木质边几是和屋主一起在线上选购的 考虑到整体空间感以及实用性 代替了常规的茶几来实用 屋主的使用感下来就是他已经不想买茶几了。

不同材质、纹理的搭配比例得当,相互平衡 既增加了空间层次感又不至杂乱 用材质的丰富来叠加了居住的细节体验。

餐厅与厨房的整个打通设计 使得单层面积不大的空间尽可能的得到了释放 消除原有的豆腐块束缚 客厅通铺的哑光水泥灰地砖一直延伸至餐厨区 大体量的铺贴,让空间更加整洁干净 让人置身其中的 更加的自由有度。

客餐厅相连,开阔的布局让人顿感舒畅 餐厅的吊灯与客厅的钓鱼灯相呼应。

不断做减法的极简空间设计 更要注重情感体验 除了简约舒适的空间比例 更要强调人与空间的交互 才能创造出简约克制的美学空间。

靠墙的四人位餐桌在用餐人较少的时候可以与厨房形成一个U型动线 有好友相聚的场景下,将其挪出来便可以形成一个洄游动线 根据屋主所需的生活场景来变换家具摆放的形式。

细节之处均是体现屋主对生活精致感的态度。

内侧中厨区,方便料理烹饪 上下设置收纳柜体,近距离即可完成料理操作。

洗菜区台面延伸至电器高柜设计,更加多样化的满足屋主所需 将洗碗机,蒸烤箱,双开门冰箱均通过定制柜的形式收纳于一侧 释放中厨以及西厨台面的操作空间 让整个家庭的互动都在小小区域得到了实现。

从中厨延伸的西厨岛台区是屋主宅家用的最频繁的角落 无论是周末慵懒的下午茶,抑或是日落后的微醺 随着时间场景的转换,不同功能诉求均可在此场景里去完成与享受。

空间的利用有了多面性,家人可以尽情地享受着生活的每个片刻 朦胧的光影透过百叶,折射出水杯的质感 洒落在大理石台面的色彩是自然给空间的礼物,也是生活的意外惊喜。

卧室区域同样蔓延着一份温馨与淡然。

延续同色系至主卧室,纯色床头背景墙,用一盏银色罩面吊灯装饰,氛围刚刚好。

北欧表情的双人床与简约造型的边几 简单的线条描摹出纯粹的休息环境 静下心,感受深夜的寂静,享受一夜好眠。

主卧与书房,两个区域相互关联 用双移门划分空间,给之带来安全感,又能保持独立。

黑色定制柜与移门的木质纹理在沉默的空间中抒写肌理与质感 胡桃木色系地板则中和了黑白灰的冷静 使得整个空间在居住空间的呈现上更显暖意一些。

原本卧室的空间,现在是开放的衣帽间兼书房区域 两个空间打通后,朝南的两面窗户的采光均洒入室内 增加了空间采光与视觉开阔感,加强了空间空气的对流 有开放格灯光处其实是衔接了嵌入式的洗衣机与烘干机 屋主的生活习惯更偏向于此形式,将其收纳于柜内,兼具实用性与美观性。

屋主后来决定暂时不在此区域办公,他觉得餐厅岛台区更舒服哈哈 一整面做通顶的衣帽柜增强储物功能,容纳屋主一年四季的衣物 温润的木质与玻璃交织,营造低调自然的艺术美 开放格与灰玻搭配3000K灯带,延伸空间的纵向视觉感的同时让整个空间浪漫温馨。

开放架后面是原有阳台下水管的位置,刚好利用成层板的形式放屋主的收藏品。

利用原有过道的位置设置一组储物柜,与衣帽间收纳分类处理 平时的浴巾卫生纸睡衣等均可放置于此,挨着主卫方便拿取,补充主卫的收纳。

家里偶尔长辈会过来居住的房间 色调以简洁大气为主 利用原有过道的区域嵌入衣帽柜 释放了活动居住的空间 橙色皮质双人床为整个空间增添质感的同时也给予居住者幸福感。

去拍摄的时间是下午,父母房西晒的阳光还是蛮足的 后期可以放置飘窗垫,作为休憩平台也是蛮好的。

主卫黑白灰的色调依旧延续整体空间的色系 墙排马桶与悬空式浴室柜均避免了难打理卫生的痛点。

黑色哑光砖配以汉斯格雅花洒的银色镜面感 精致感十足啊。

次卫改造成干湿分离,将浴室柜释放出来后 改变了父母房的卧室入口后也提高了次卫空间的好用程度。

次卫需要的储物量并不会很多,所以干区与主卫浴室柜区别开来的 颜值在线的台上盆配以异形镜,美就完事了。

从开工到入住整个过程,和屋主线上对接主材的款式颜色到线上线下陪同选购软装等 全案落地全过程,感受颇多,但还是感谢屋主对我的信任!

本案例设计师:黎凤&侯敏 项目地址:上海青浦 项目类型:全案设计 项目工期:一年 设备:中央空调·地暖·水系统
