业主 penny 是一位文艺范的网红小姐姐,自己做淘宝店兼当模特。小姐姐在买房前发了三套户型图给我做户型诊断,当时吓到我了,因为我还以为她有三套房子装修,哈哈哈哈~ 耐心分析后屋主决定入手了这套,和原房东砍价成功后的第一时间就毫不犹豫地找到我,做部分改造及软装设计,开始了愉快的合作。 Penny 因为职业的关系喜欢一些个性的东西,房间里有很多东西都是在创意摆件都是在旅游区或者网红店淘回来的。那一些浅尝即止的小确幸都填满了屋主的美好生活。整屋奶白色的元素、这套INS风,SKR到你了吗?

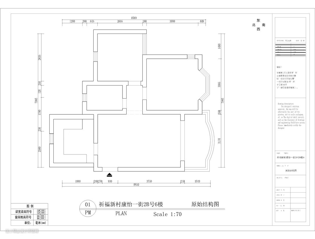
【原始户型图】 该户型很方正,两房一厨一卫一阳台,套内70m²对这年轻小两口来说再合适不过了。但有几点比较突出的问题就是: 1.入户的位置无处安置的鞋柜; 2.餐厅和厨空间较小,特别是厨房,对爱烹饪的女屋主是致命打击; 3.小孩房的尺寸也相对较小不能同时满足上下床书桌和衣柜。

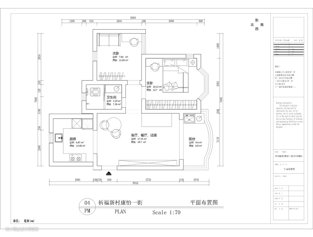
【软装搭配图】 新户型改造亮点: 1.入门左边设计鞋柜电视柜一体式让空间更加整体行走动线流畅; 2.原生活阳台纳入厨房后采光和通风更好,增加了厨房台面和定制柜子,可以放置洗碗机烤箱和大冰箱,增加收纳空间; 3.将客厅、餐厅合为一室,让餐厅面向厨房,也是实现功能上的结合; 4.考虑屋主只有两人世界的生活,所以餐厅没有扩大,这样居住生活更加舒适。

客厅全貌,招猫逗狗,追剧,看书,听音乐。晚间大部分时间都是在客厅度过的。为了有足够大的活动区域,客厅中间没有选择茶几,取而代之的小边几上面可以放各种必需品。 中央空调在门厅里,外面是白烤漆铝合金百叶窗,制热、制冷都已使用,效果良好。

本案电视墙更准确的名字应该是“客厅电器柜”。看得见的电视机,看不见的光猫、路由器、高清播放器、Dyson DC52,以及相应的空调管路、线路和电源都被规划在这个柜子里。符合屋主想要的“完美设计”原则,也满足了屋主“风格极简、容易打扫、使用方便”的要求。

其实不建议电视柜下面放小物件,不然扫地机器人会内卷,然后停止运转。

躺在沙发看着电视,窗边的微风吹进心里。

为了统一纯白极简带来的视觉感,不破坏风格的统一,壁画、抱枕直接去掉,连窗帘也是纯白系,让空间充满温度。

餐厅与客厅相连,白色墙面与蓝色的餐桌相搭配,营造出一种简单的设计感。

餐桌选购的是北欧的蓝色艺术圆餐桌,座椅是符合人体工学的原木藤编椅,防滑还耐脏,还带有一定的复古风味。

清晨起来能在这样的环境,再美美地吃上一份早餐,优雅又美丽可能会让朋友们羡慕到si吧。

对于一个喜欢下厨的人来说,厨房就像是她的战场, 合理的布局设计,高效的烹饪系统可以实现在厨房里大展拳脚。屋主装修前最头疼的就是厨房收纳空间少,为了拥有更多的操作台面和储物空间,我设计了U型厨房,这个设计也同样满足了厨房装修最重要的动线合理(洗—切—炒)。

装修初期选购电器的时候屋主也很头疼,电器多担心台面上满满当当,还好我发现了方太这款集成烹饪中心,它是集成了烟、灶、蒸、烤、空气炸等多种功能的高端集成厨电,和屋主的需求很匹配。也有很多人问我为什么选择集成烹饪中心而不是集成灶,我在推荐前做了很多功课,梳理了以下几点,供大家参考。 ▼ 1、颜值必须在线是我推荐的第一标准,所以本案奶油系厨房必须搭配颜值高的家电,集成烹饪中心的颜值就很符合屋主的要求,嵌入式安装,不切割台面,和厨房风格很搭,镜面黑满满高级感。集成灶比较笨重,而且是推拉式安装,会把橱柜分隔成两部分,影响美观和一体性。 2、想要厨房保持干净整洁,首先要解决了油烟和异味问题。集成烹饪中心是低吸设计,油烟顺势上排,利用油烟升腾冲力,搭配方太的拢烟结构设计以及强劲动力的变频电机,油烟吸的更快更干净,也不容易积油。差不多一个月清理一次,喷点清洁剂,用水一冲就干净~而集成灶是下排烟,这算是逆势排烟,油烟还要多绕一个弯,排烟效果势必打折。 3、集成烹饪中心不仅吸烟效果好、易清洁,还可以烟烹联动,很智能。开启烹饪时,吸油烟功能自动开启把烹饪过程中产生的油烟、蒸汽等从灶具后方排出顺势向上被吸走。而集成灶是蒸烤排烟通道直连烟道的,不好清洁,异味也难去除。 方太集成烹饪中心整体感受就是高级感满分,功能齐全且好用,操作和清洁都很方便,也让屋主在厨房里也可以得心应手。

作为一个懒人最基本的“职业操守”,屋主家的碗真的一个都不会去刷。屋主家里用的是方太的嵌入式洗碗机V6,13套的大容量,洗锅也完全没有问题,平时一家三口可选择轻载模式,洗得的快还省水省电;这款是三翼三层喷淋臂设计,可360度全方位清洁,加上水气混动的高能气泡洗,洗碗特别干净。配合75℃高温,除菌率99.99%。洗完后自动进行双环流热风烘干,碗筷拿出来都是暖暖的~而且像本案厨房不大的,洗完可以选择保洁存储功能,长达7天长效存储,不取出来也没关系。 总的来说这个洗碗机它是“十八般武艺”样样精通,对于屋主而言,再也没有刷碗的负担了。

女屋主将最爱的白色布满整屋,连卧室也不放过,没有花里胡哨的颜色,白色主卧背景墙,也是男主人小心呵护女主人的决心。白天职场打拼,回到家就是有王子陪伴的公主。

卧室衣柜的推拉门有上轨道固定,所以做了通顶。

主卧无主灯设计!天花设计不在于有多华丽,而在于设计的细节处理,原本设计是割一个双眼皮吊顶+悬浮式吊顶+洗墙灯带,但屋主亲测后觉得像现在这样的自然光才是最柔和的,而且夜晚不需要太亮,私密感性的空间感最为重要。

飘窗处没有定制柜子,让飘窗空间最大化享受。日常摆放自己喜欢的书籍,闲暇之余坐在飘窗上看看书,做做白日梦。

在床上满脸疑惑的猫仔,因为第一次见到摄影师,所以很谨慎。


屋主入手的健身器材还在路上,这是撸铁狂魔的独立空间。

岩板定制的洗手台是真的很好用,整体性好,不渗色,非常好打理。 图片左边白色的是加热毛巾架,绝对是居家好帮手,谁装谁知道。装修的时候,别忘记预留好电源线。 600*1200瓷砖竖铺,两片到顶,缝少,整洁大气,强烈推荐。

干湿分离,蹲坑+淋浴房与洗手台隔开,两处都预留走水槽,冲凉不踩水里。淋浴间的壁龛设计,解决了很多家庭放置沐浴露与洗发水的历史遗留问题。而且还很好看。 悬浮式洗手台简直解释女主人的福音,以后再也没有卫生死角了,也不存在洗手台因拖地长期接触水渍的原因柜门胶发霉了。

作为一个4平米的小卫生间,三门镜柜是主要的储物空间,把厚度做到和马桶假墙一样的23cm,比普通镜柜更加实用。高1米的镜子对扩大空间感也非常有帮助。

用柜体隔出来的“迷你门厅”。业主打算在穿鞋椅旁边买个穿衣镜,可以遮挡电箱、从视觉上扩大门厅的面积,站在这里还可以看到整个公共区域和厨房。

门厅柜和电视柜结合,顶天立地的设计,门厅柜分为“上下”两个空间。上对开门内部是顶部储物区和上衣柜。下对开门内部是下鞋柜。侧面柜体可悬挂口罩、钥匙及球拍等零散物品。

客厅的拱形门洞很好的呼应了圆形的桌子,门洞的造型是原建筑造型,设计之初想把门洞改造得不要那么圆润,但为了最大限度地保留采光面,没做调整的门洞反而显得特别。

从客餐厅看向书房的方向~

从房间看向客餐厅的方向~

北欧老虎的地毯造型给客厅增添一抹潮流元素。

扫地机器人

自动翻页的钟表,超级有趣

厨电清单

软装&摆件清单-①

软装&摆件清单-②
