楼盘地址:绿地湖湘中心 户型面积:140㎡ 案例风格:现代风格 案例设计:陈佳

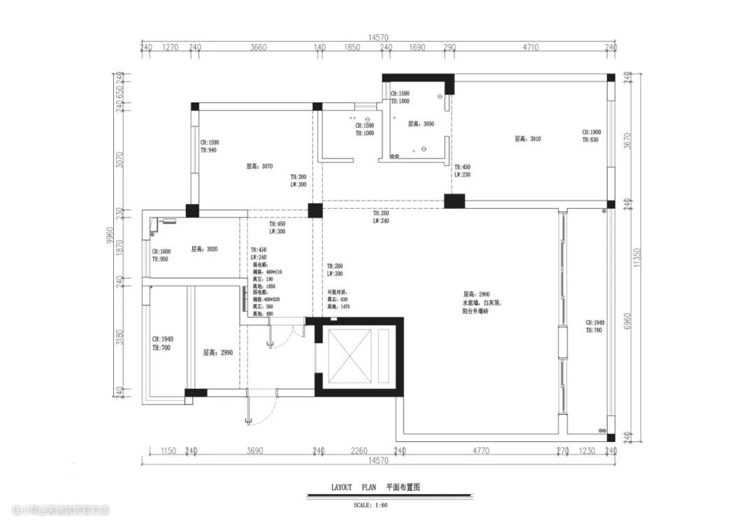
原始结构图

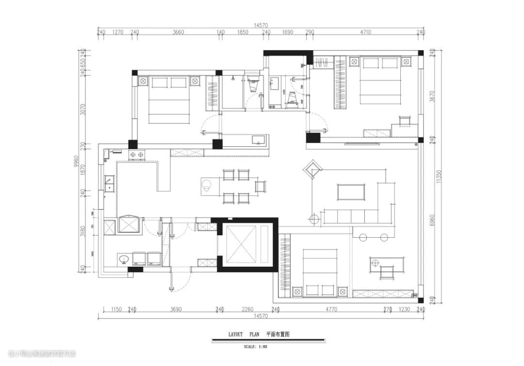
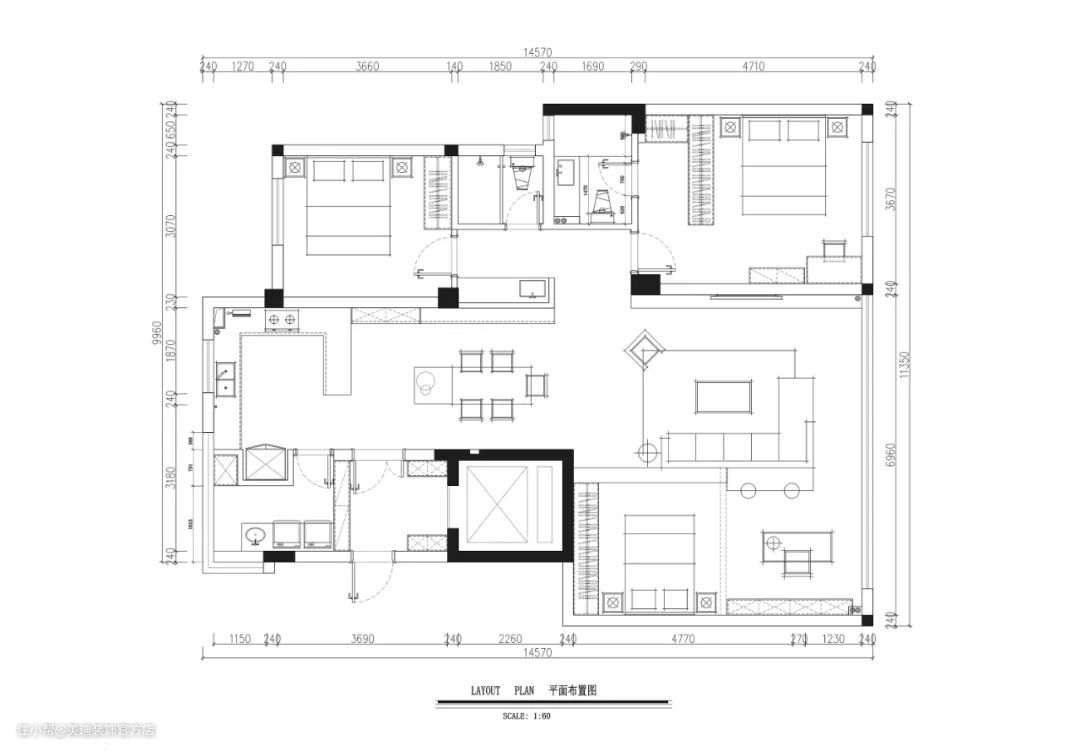
平面布置图 设计亮点: 平面布置时秉承最大化利用空间的原则,将玄关,餐厅,厨房,客厅等公共活动空间放大,体现大宅的空间感。整体色调以黑白灰为主,点缀亮眼的咖色,金色,给人以奢华时尚感。

善于打破一切固有格局,是这个年轻空间给人的第一印象。 客餐厅空间整体采用半开放式设计,使空间显得更为通透和宽敞,空间交流感更强,给整个家提供了一个便于聚会的空间。

咖色与金色的搭配,给空间增添了一丝复古情调,这两种风靡百年的颜色搭配,让整体空间更有时尚、轻奢之感。

在餐厨连接处,设计师摒弃了硬性隔断的方法,而是将一半作为沙发背景墙,一半作为吧台的隔断方式,黑色与咖色的拼接柜体,不经能与整体空间配色相呼应,也能在储物之外兼顾美观的需求。

客厅展示柜中,是业主收藏的各种盲盒玩具及手办,设计师通过在展示柜中镶嵌灯条,不仅让空间层次感更为丰富,也具有一定的观赏性。

开放式厨房的设计,让餐厨空间不再拘束,更受年轻人的喜爱。 宽阔的操作台,既可以充当一人食时的餐桌,也能摆放咖啡机、三明治机等西餐厨电。

厨房部分通体铺贴600*1200浅灰色大理石瓷砖,与深色的橱柜产生对比,利用这样低饱和度的颜色配比模式,让空间更具现代质感。 餐桌边的酒柜柜门采用深色的亚克力板,与暖色灯光搭配,凸显了一种神秘的格调。同时,丰富的酒柜格空间,方便业主存放不同品种的酒与酒具。


若要营造质感丰富的空间,运用木饰面装饰的设计是必不可少的。而除了木饰面,全屋对玻璃等透光材质合理的运用也相当考究,通过采用部分的半透明无边框玻璃门,即保证了单独空间私密性,也能让全屋在白天光线更充足,简约而不至冰冷。

半高鞋柜的丰富储存空间,满足了年轻业主存放漂亮鞋履的需求。门厅处原有的消防栓,通过设计师的巧思,运用木饰面装饰与活动柜门将其隐蔽。

除了延续整体空间的咖色与金色调,卧室窗帘用的采用的深灰拼接酒红格纹窗帘,让空间更具有复古质感,金色吊灯与异形水晶壁灯,增添了小轻奢质感而不至落俗。

设计师通过柜体背部饰面板饰面,完成了衣帽间与卧室的软性连接,将衣帽间与卧室有机结合为一个整体。

干湿分离的卫浴空间,墙面使用了600*1200大面积深灰色地砖拼贴,将空间的视觉观感放大。

卫浴空间智能马桶,电热毛巾架等电器智能家电产品一应俱全,让居住体验更现代、更人性化。
