方案解析
本期【我需要这样一个家】的是一个幸福美满的四口之家,80后的夫妻带着一对可爱的神兽宝贝,未来几年的时光他们将生活在这个【现代美式】的家里。 美女屋主:我想要的家不是一进屋就让人觉得【你这个家,似曾相识】,虽然现在绝大多数人都热衷于现代极简带来的时尚感,但是我还是希望我的家是【精致】【婉约】【美观】【雅致】的。这也是我装修了这么多套房子以来一直喜欢美式风格的原因。

玄关

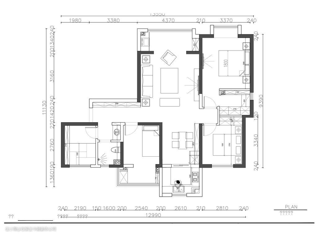
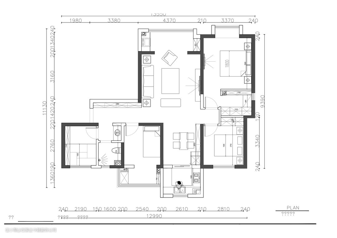
一整面3.3米长的玄关收纳柜,合理分区,小物件、当季换季鞋子、穿鞋区、次净衣、生活物品都被合理安排。

很人性化的考虑每个区域的使用便利性,如换鞋、随手放、拿取高度,以及各类纸巾等物品的高度收纳。
客厅

装修不应该有定性,一定是从【悦己】的角度出发,将自己喜欢的一切放进去,让它变成理想中家该有的样子。

客厅处做跟过道相呼应的拱门造型,连贯成型。
餐厅

餐厨,根据家务收纳动线、操作习惯,分割成【常用物品随手取区】、【智能小家电操作区】、【锅具碗碟放置区】、【洗切炒烹饪专区】等。
厨房

餐厨,根据家务收纳动线、操作习惯,分割成【常用物品随手取区】、【智能小家电操作区】、【锅具碗碟放置区】、【洗切炒烹饪专区】等。
主卧

主人房选择的是安静的白灰组合,休憩的地方用分段式灯光以满足不同氛围的灯光需求。

一切华丽都被一 一融合到生活细节处,一半是舒适感,一半是氛围感。
儿童房

【男孩房】

北向的三个次卧分别做【女儿房】【男孩房】【收纳式书房】。
书房

【收纳式书房】。居住、玩耍区、晾晒区、学习区、换季收纳区,每个生活化的细节都落实在各个房间中。
