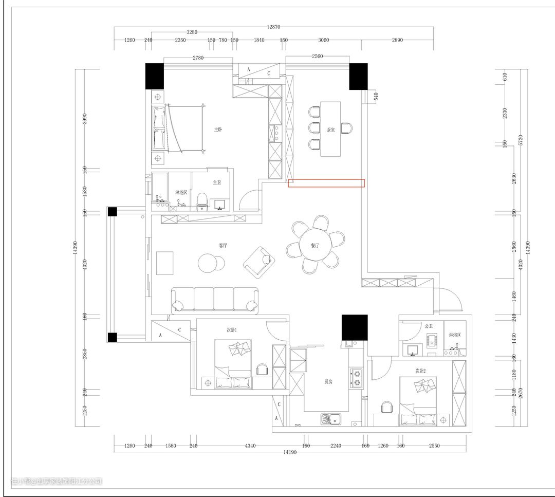
【户型解析】 面积:130㎡。 户型:四室两厅。 风格:轻奢中式风/混搭。 说起混搭风,给人的印象都是混乱,风格不协调,看上去虽说标新立异,但是显得俗气。 可是,只要搭配得当,分清主次。混搭,更能契合家里面不同的人的品味。 【业主要求】 1.希望有一个独立的茶室。 2.业主家人既喜欢低调的轻奢感,长辈又喜欢沉稳典雅的中式风,希望设计师能把这两种风格都融进空间,但是不显俗气。、 3.尽可能不做大改。 【设计思路】 以下两个户型图中,标注的红色方框处,就是大改的地方。因为业主想要一个独立的茶室,同时融入轻奢和中式的风格。 这样的要求是有一定难度的,因为轻奢和中式风,都需要大空间来凸显,否则,会让整个空间显得很逼仄、压抑、沉闷。 因此,设计师把空间打通,把一个大次卧与餐厅的隔墙打掉,做独立茶室。这样一来,满足了业主的需求,而且兼顾了整体的风格打造。

▲原户型图。

▲平面布置图。

先看吊顶,吊顶做了回字形吊顶,显得空间大气空阔,不压层高。吊顶边上和天花板边缘,走一圈钛金属美边线作为点缀,再安装华丽的水晶灯,凸显了轻奢的高级质感。 沙发墙,用奶咖色的护墙板,用金色钛金属条做点缀,对应吊顶,形成画面统一的特点,在此凸显了轻奢的风格。搭配亮色的皮质沙发,看起来舒适高级。

电视柜采用白色的护墙板,定制储物柜,内嵌电视,既让整个空间看起来更平整,而且解决了业主平时的收纳问题。黑与白的搭配,尽显高级。


餐厅和厨房都采用客厅同款浅灰色大理石纹理瓷砖通铺,增强整个空间的延伸感。 餐厅一旁的护墙板,采用客厅沙发墙同款木饰面,搭配格栅,挂上传统的“家”字书法,瞬间增强了整个空间的典雅。凸显了新中式的韵味。

餐厅的一旁是独立茶室,茶室里挂上一幅典雅的山水画,搭配沉稳、古典的红木茶桌,散发着古色古香独特古韵。

厨房做了“U”型布局,U型布局是所有厨房布局样式中,最高效、最能把空间利用到最大化的样式。动线规划合理, 出菜方便高效,设计师把实用性发挥到最大化。

从颜色搭配上,“白色+某色”都是百搭的公式。上面大面积的白色,搭配雾蓝色的柜门,看上去高级典雅,在厨房都彰显了一点沉稳的气息。 厨房不做吊柜,选择定制一个大柜子,“一柜到顶”的设计,下面预留空间嵌入双开门冰箱。这样一来,收纳统一化,而且找东西也方便许多。最重要的是,空间看起来不沉重、压抑,光线从窗户透进来,更显开阔,明亮。如果不想做吊柜,这是一种不错的选择。

主卧的设计还是比较多的,但是看上去简简单单,透着温馨舒适。吊顶做回字形吊顶,内嵌中央空调,不用做外挂空调,看起来美观平整;床的背景墙做浅灰色的木饰面,以金色美边点缀,契合轻奢的风格。


主卧的一旁是贴合整面墙打造的大衣柜,衣柜到顶的设计,收纳容量十分大,足以解决业主的衣物收纳问题。 封闭柜门搭配玻璃柜门的设计,更显质感,玻璃柜门的空间可以放包包这种物品,方便挑选拿去,不同的收纳空间,满足业主不同的收纳需求,衣柜旁边就是化妆台,动线规划很合理,减少了主人来回走动的时间和动作。 卧室安装静木地板,营造一个安静舒适的睡眠环境。

次卧的风格和装修特点,跟主卧保持一致。


这是主卧卫生间,做了常规的干湿分离设计,紫色玻璃推拉门,使用起来更方便实用,而且为浴室增强了氛围感,淋浴间还做了一个小小的浴缸,工作太累的时候,泡一个热水澡,简直是人间一大享受! ↓↓↓主卫

公卫也做了干湿分离,推拉门不是常规推拉门,而是三联动推拉门,三联动推拉门能扩大出入口,出入自由方便。 ↓↓↓公卫

阳台做了传统的栅栏形式,另外,还做了隐形栅栏,提高安全性能,同时能保留阳台观景功能,也不会让整个空间那么沉闷。


阳台一侧做洗衣台,晾晒也十分方便。

