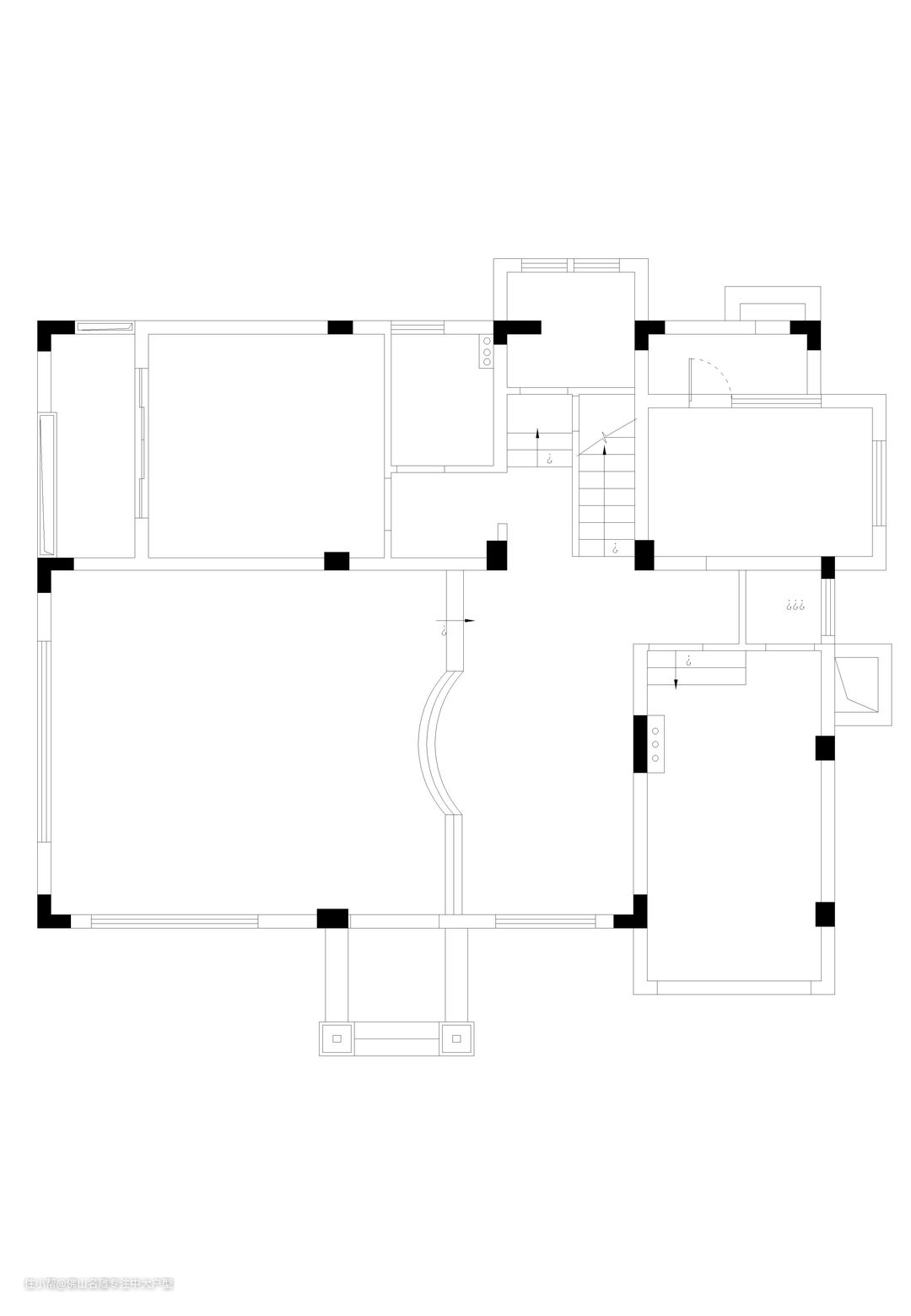
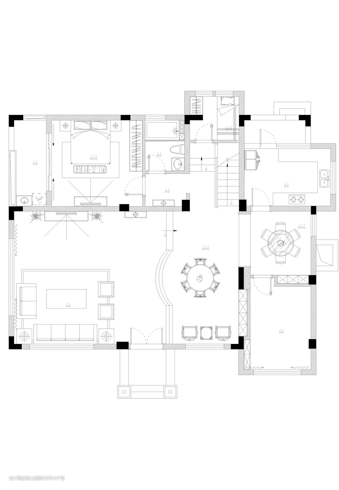
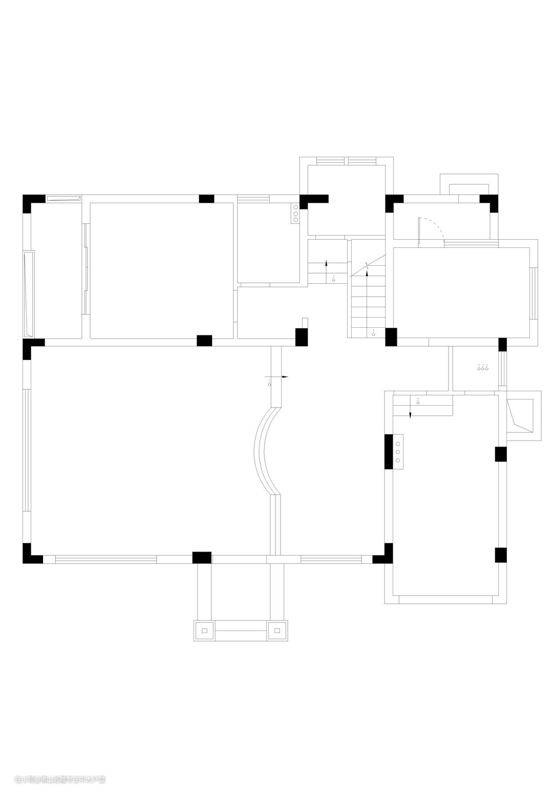
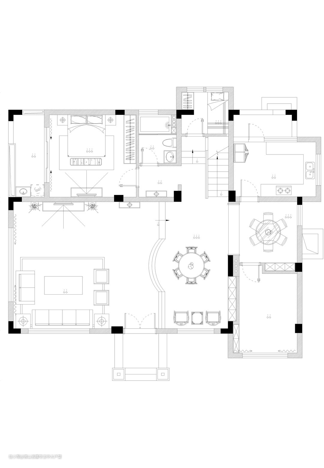
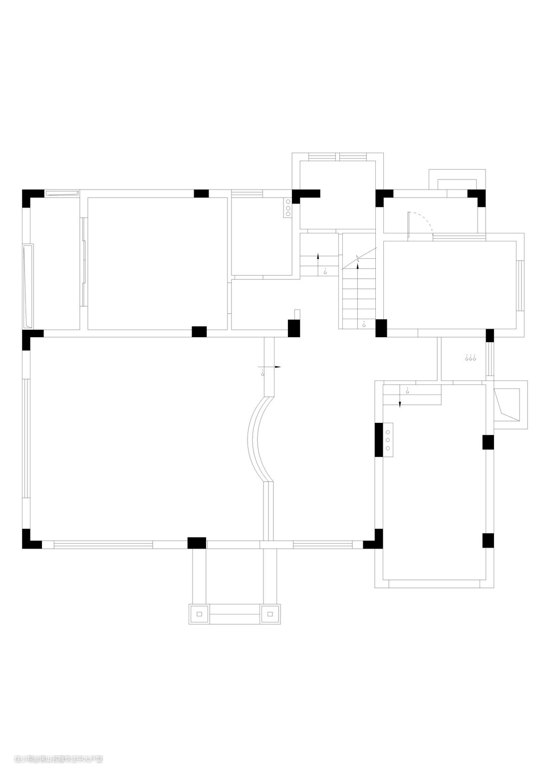
原始结构: 1、比起结构拆除调整,我们更希望对细节进行划分; 2、厨房面积大,占据多余空间,操作单一; 3、主客厅区位置不变,但区间相互没有明显定位,做不到开放独立形式。 设计理念: 360㎡别墅尺度自由,丰富的功能区将所有成员的生活喜好容纳入内,但原有结构规划不够明晰,设计师调整入户的空间,让原本不规则的空间,增加一个储物间的同时大大提升客厅的尺度,巧妙的把厨房及餐厅连接在一起,做到随时可开合的空间,提升两个空间的尺度同时,也增加了空间的采光及通风,运用天然奢石及实木贴皮烤漆护墙板,结合纤细的玫瑰金条提升空间层次。

改造优化: 1、厨房移至多余空间,面积还是操作都容纳; 2、原厨房位划出小区域,作为餐桌或家庭互动的使用; 3、台阶让场域形成上下错落视觉效果,丰富层次; 4、公卫改为二分式设计,避免功能使用重叠。

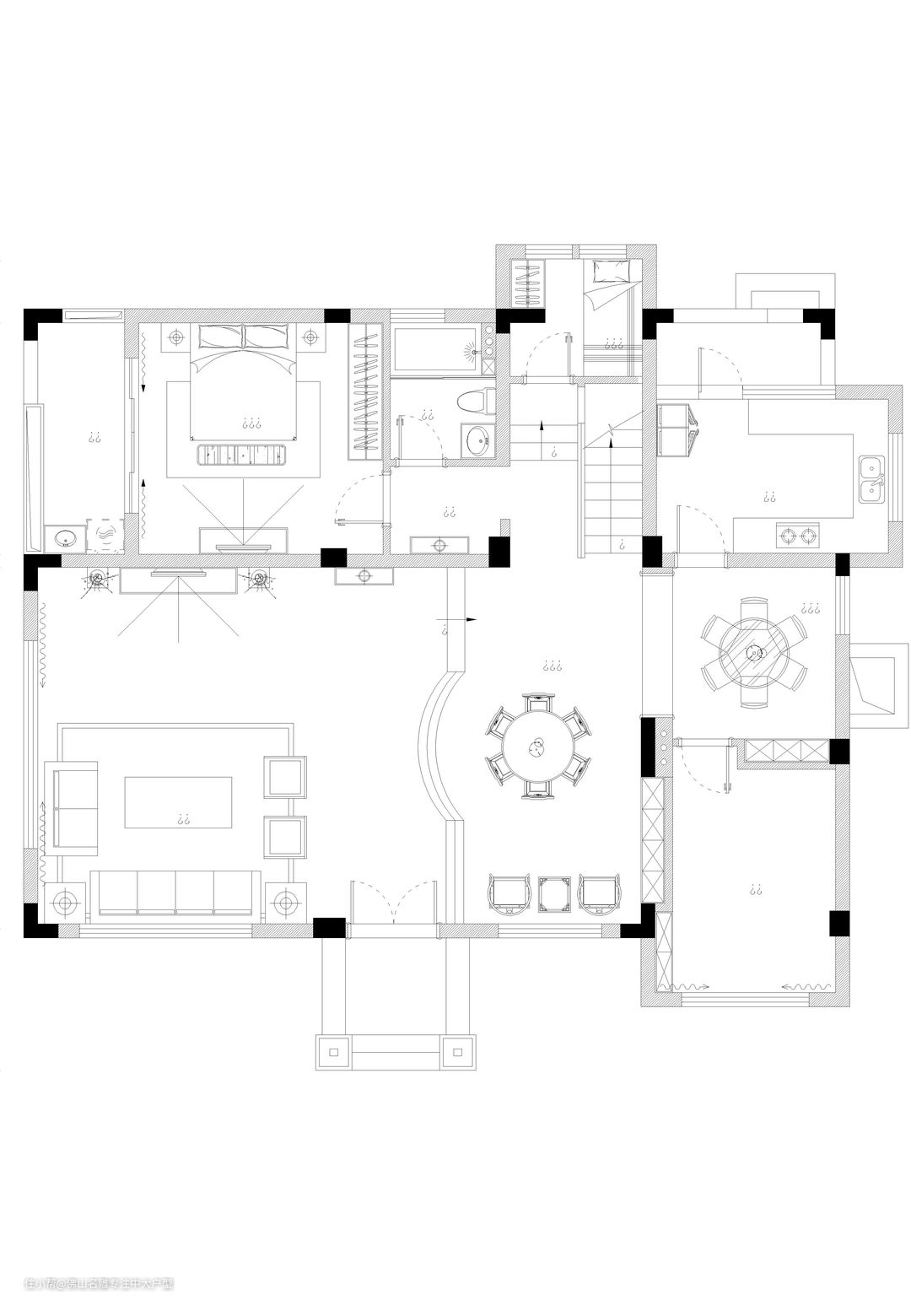
客厅整体围绕现代轻奢展开,隐于细部又能发现中式美学缩影,共同发酵产生的设计效果格外协调。

本案地处山水环绕,外出即获得天然氧吧洗礼,充分发挥景致先天条件,落地窗是绝佳的设计,沙发两侧是全景观效果,一边可观水色一边又能将入户花园动态尽收眼底,室内外形成交互,避免人居与自然抽离。

现代轻奢也讲究色彩材质简练,通铺瓷砖与沙发同系,暖色壁灯与原木墙板形成深浅层次,与暖色相对,茶几和电视墙则用墨色流线瓷砖的冷感突显客厅主调。

无论是灯带回绕还是局部饱和点缀,氛围营造下都显得十分和谐。

餐厅便很好地运用中式思想,在摩登轻奢的内涵上,融合对称和方圆的美好寓意,天花与圆形餐桌相对,一侧又以背景墙和水墨框景画填充增添优雅氛围,让空间表达稍显张弛。

当然,餐厅置物问题也必不可少,像居者的藏酒也需要自我空间。在餐厅一侧,与书房做间隔的墙壁等高宽位置放上展示柜,在转场同时,也起到提醒过渡效果。

宽阔尺度的精妙在于场区自由度,可以开放互动,又可以在细节处对内变化独立。餐厨间是三联动推门,隔绝油烟,开闭间可以在家庭聚会和私享烹饪时光随意切换。米色+蓝色皮质沙发,与客厅呈现遥想呼应感觉。

别墅的特别处在于尺度宽阔,容纳更多开放式功能,餐厨划分在同一场域,

开放式厨房,考虑承重柱位置,选择拼合多一排橱柜可做吧台和操作台使用,如此半围合设计也与餐厅做了一定分隔处理。

从餐厅移步,旁边则是茶室,串联客餐厅的互动氛围,茶室设在此处是最优解。考虑主人喝茶爱好以及需要休闲空间,大大落地窗伴随茶香缱倦,偷得半日闲。一方面是茶室,一方面亦作会客使用,多元化功能,身后还是储物展示墙,满满奢雅贵气。

卧室是居者精神释放的场所,繁华到静谧的无缝切换,需要适应不同成员个性和习惯。主卧调性基本不变,温润原木地板铺设,以孔雀蓝床品提升质感。墙面选用鹅黄浅色墙纸,搭配墙板拼接,颇有美式的感觉。

当阳光穿透仿若被温柔包裹,弱化光感强度,心情别提多舒坦。

视线转换背景墙后,是给主人的衣帽间,衣柜搭配墙面同色,玻璃柜间隔,衣物拿取变得游刃有余,而面向采光处设置梳妆台给予女主人使用。

小孩房的格局相似,但装饰设计上都各有考量。一个是整体落地窗,让孩子在房间可以玩耍时享受柔光沐浴,再将书房功能移入,留出中间共享区作为娱乐游玩完全足够。

筒灯和线性灯,及墙板天花灯带都为自然光源补充,既不会单调,立体感强。

而另一卧室讲究阅读空间,在进门区域增加墙体围合,构造出一隅,百叶窗遮盖上窗,放置沙发椅,一侧墙体内嵌书架,几何错落设计感之余,不占空间。

客厅和卧室是主人更多需求方向,对于卫生间而言,简洁易打理是首要条件,墙面是哑光瓷砖,微水泥色有原生气息。

白色岩板台面,黑色金属面框描摹,和玻璃的通透感相融,边线处理很简练,第一眼感觉便十分舒适。

