We're sorry but react app doesn't work properly without JavaScript enabled. Please enable it to continue.
访问APP
目录
01 方案解析
02 客厅
03 餐厅
04 厨房
05 主卧
06 次卧
客厅
餐厅
主卧
次卧
厨房
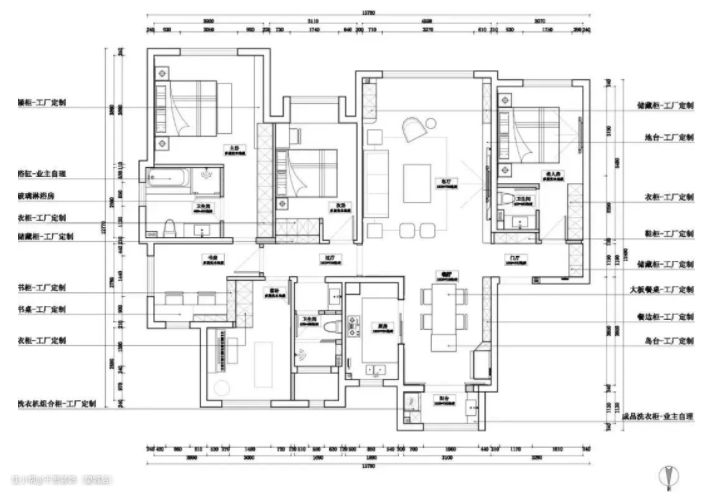
方案解析
实景案例 | 192㎡轻法式:甜而不腻治愈风满满,好温暖!
千思装饰(望城店)
关注
户型
四居
风格
法式风
面积
192㎡
位置
长沙市
方式
全包
预算
32万
方案解析
客厅
餐厅
厨房
主卧
次卧
相关标签
两室一厅装修
loft公寓装修
四室二厅装修
别墅装修实例
欧式装修风格
田园风格
北欧风格装修
新中式风格装修
110平米三室一厅简装
小户型60平米装修
120平三室两厅简约装修
小户型30平米装修