
装修后
项目亮点: ①整体风格定位现代简约奶油风格,奶茶主色调 ②以弧形和圆角搭配,体现柔和圆润感 ③重硬装,轻软装,让空间更显大 ④无主灯设计,利用灯光搭配营造氛围感 ⑤全屋做系统门窗,提高隔音效果




设计亮点
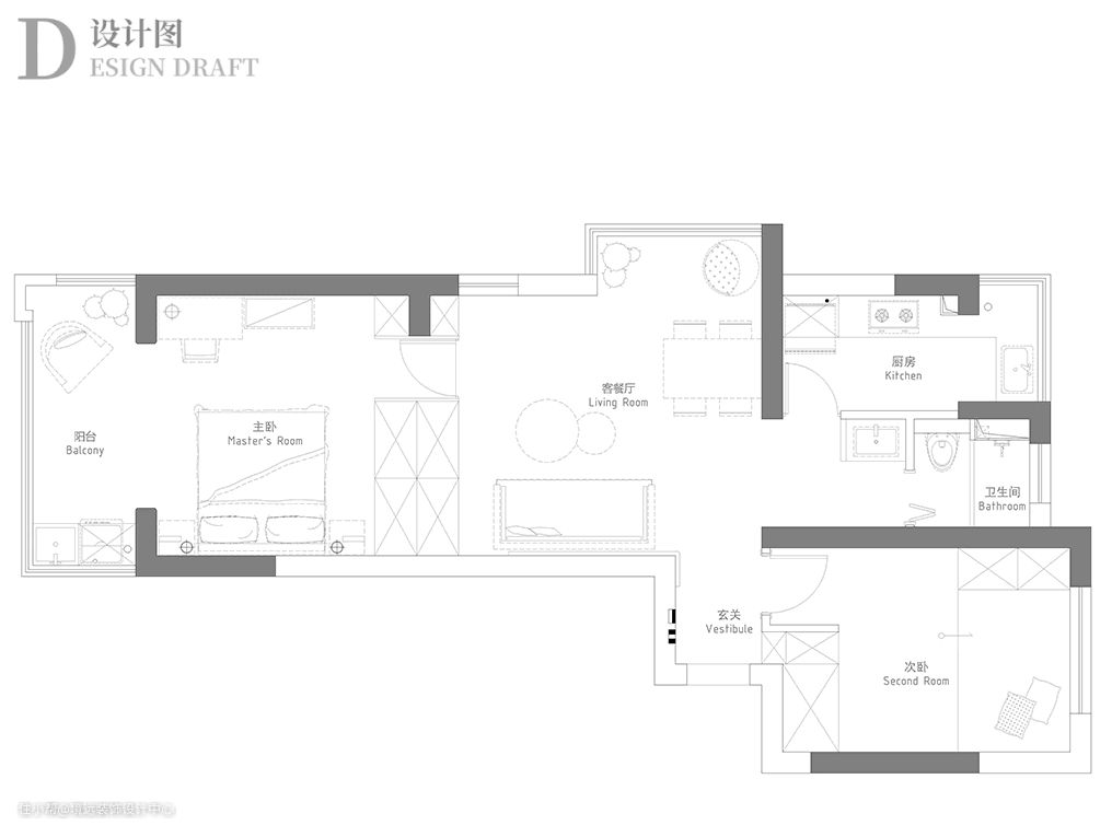
客餐厅一体设计,入户既是客厅。整体色调为淡奶茶色,温柔清新,舒适感满分。入户正对超大采光玻璃,视野无遮挡,光线充足。 客厅顶面不做复杂吊顶,以圆弧曲线搭配半弧形石膏板沙发背景墙,色调深浅组合,突出造型感和高级感。 背景墙处内嵌线性灯带,以光线呼应线条感,柔和的暖光t投射在奶茶色调的墙面,温馨又浪漫。




窗边放置四人位的原木风餐桌,兼顾办公桌功能,不论是用餐还是办公学习都有足够的桌面使用空间。晚上抬头也能看到星光点点的夜空~


设计亮点
客厅右侧,以玻璃砖作隔断为分界线,厨房入口在左手边。小过道无采光处,所以厨房门选择了极窄边框超白长虹玻璃门,借用厨房的光线弥补过道采光。 结合顶部的筒灯灯光,以及玻璃砖的通透感,拉升了小过道的亮度,使这部分空间不至于昏暗。 厨房部分充分利用空间特点,根据狭长户型做L型橱柜设计,洗碗槽放置在窗户下,保证操作采光,也符合使用动线,过道侧面利用成品置物柜补充储物空间。
软装搭配
整体定制橱柜的色系和客厅保持一致,选用低饱和度的木色和奶咖色组合搭配。瓷砖用大板的奶茶色柔光砖墙地通铺,视觉氛围更统一,质感也更高级。





设计亮点
主卧入口在客厅左面,整墙做造型面板,房门隐藏在其中,推开即可进入主卧,不开门时客厅墙面也是一个整体。 主卧连接阳台,南向的采光非常好,为了区分功能区,卧室地面用木地板通铺,阳台生活区则用素色地砖铺贴,中间的门洞做弧形设计,更符合整体的温柔质感。 房间入口的吊顶同样做弧形设计,呼应客厅的元素,侧面一门到顶的的定制白色衣柜,更符合墙面的淡雅奶茶色系,简洁大方。
软装搭配
主卧无主灯设计,不追求过分的亮度,在墙面做内嵌灯带,床头造型灯,组合灯光烘托氛围感,暖黄色的灯光更好的帮助入眠。 床头简单摆放艺术造型小边几,区别传统的厚重床头柜,空间留白更多,搭配简单的木质床,氛围更高级优雅。 另一侧床头灯选用复古吊灯造型,窗帘深浅配色,深棕色与胡桃木色的吊灯以及床头色系相吻合,视觉感协调统一,搭配大面积的墙面奶茶色,更显沉稳高级。

设计亮点
次卧目前主要做宝宝活动房,等小主人长大后,次卧也可添置床品家具等,作为小朋友的独立空间使用。
软装搭配
设计上简单满足基本使用即可,色系沿用主卧和客餐厅的奶茶色,顶面做弧形设计包裹住窗帘盒,边缝做弧形阳角设计,更符合圆润柔和的氛围感。



设计亮点
卫生间面积较小,把洗手台盆的位置外置在走廊过道处,以玻璃砖做隔断,美观的同时又能起到遮挡台盆的作用,避免一眼就看到洗手台盆。
软装搭配
浴室空间有限,选用原木色折叠门,释放更多进出空间,淋浴区做极窄边框淋浴房,墙地通铺奶咖色大板砖,空间更整体,放大视觉效果。
