

装修后
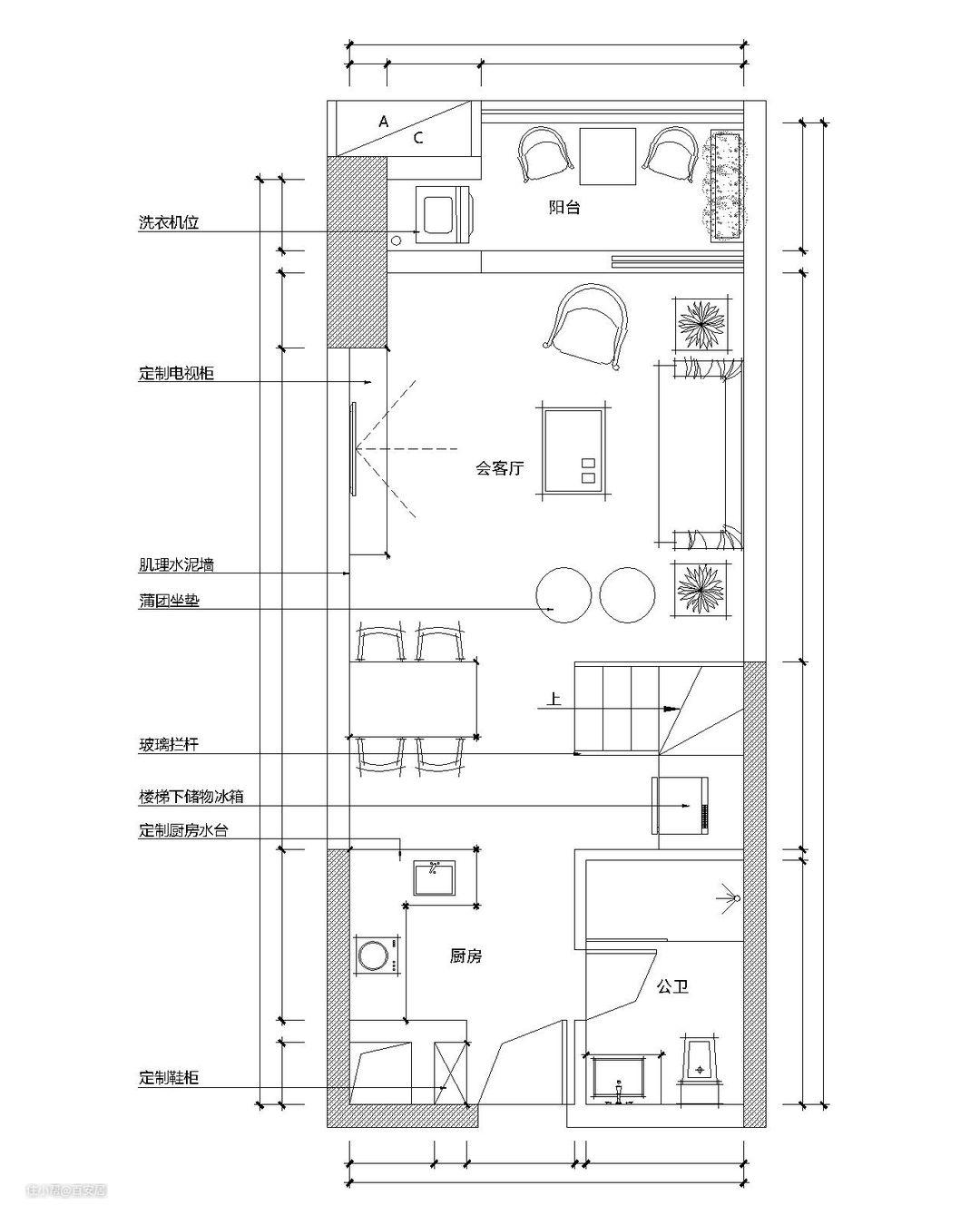
本案位于广州市的一套不大的LOFT挑高公寓,设计师根据房主的出租屋的功能要求重新定了格局,把首层安排成主要活动区域,卫生间,开放式厨房,餐厅及会客厅组成。二层分出两个相对独立卧室空间。由于是出租屋,房主希望控制好预算成本,容易打理清洁并且耐用,做两层由于层高不算太高,天花处理相对简洁,主照明采用超薄灯槽,而并没做主灯设计,设计师用了极具肌理感的水泥墙做主体墙面,柜子的材质则选用了原木,不仅平衡了水泥的冷,也呈现了一种安静的氛围,再辅助于极简轻松的软装,整体风格十分饱满。



客厅选用了一个超级矮并且较轻的茶几,这样可以随时挪开让小朋友多一个嬉笑打闹的空间。沙发选用了深灰色短绒面的材质,直线条的设计,没有过于纷繁复杂的线条元素。设计师运用靠垫和地毯的衬托出客厅色彩丰富,沙发后的绿植为客厅增添了生机勃勃的景象。客厅与阳台之间,利用了素色窗帘作为公隔,光线穿过薄纱洒在水泥墙面上,流露出寂静的时光之美。


灰色有石材质感的饰面板砖满铺墙面,营造出餐厅墙面有坑洼的肌理质感,原木色的家具相配更加突出了侘寂风朴素自然的氛围。通过天花吊顶区分以及简单的方式分割出了客餐的各自区域,木质的工艺品,餐桌上的水果都增添了很多的生活情趣。


开放式厨房料理台设计成L型,墙面的墙砖与餐厅的饰面无缝衔接。整顶面使用了纸面石膏板吊顶,整个空间采用无主灯设计,运用筒灯与灯带结合的方式把光源巧妙的隐藏起来,见光不见灯。宽大的窗户引入了自然光,加上室内照明为辅,营造出素雅静谧的室内氛围。


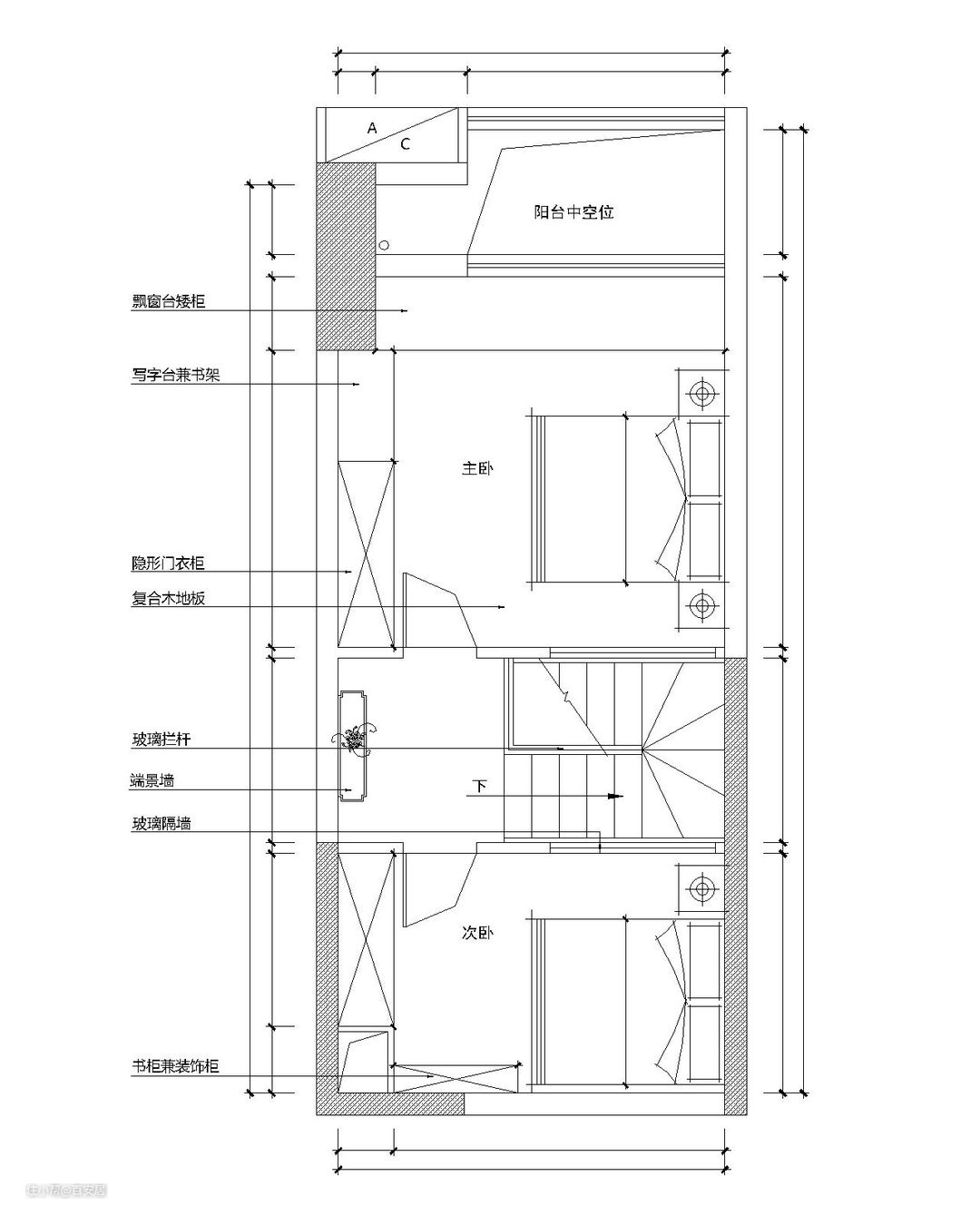
楼梯是樱桃木作为踏面板,钢化玻璃为扶手为主,穿插白色侧面档板、墙面是白色乳胶漆,造型简约时尚却也有轻奢之处。楼梯悬空顶面安装吊灯不浮夸却独有韵味。




卧室与楼梯使用玻璃分隔,两个空间互动共享,空间通透感十足。原木色饰面板搭建的床背景突出了卧室原生态的质感,藤编的台灯,背景上摆放的小饰品透露着对安逸生活的向往。卧室内自由的布置,低饱和度的色彩,没有过多装饰,处处透露着高级感。


卫生间墙地砖选用的接近天然砂石的哑光复古砖,微澜般的纹理略感斑驳感呈现着古朴与素雅,也能体验出时间的痕迹。素雅的色调设计,洁净的卫生间洁具,一面到底的镜面柜,灯光的温润柔美,打造了一个优雅、浪漫的卫浴空间。


深灰色的水泥墙面带着一点不规则的肌理,搭配少许绿植点缀,让阳台的空间气韵沉淀下来,黑色铸铁的框架原木色的台面更显清幽,给人一种安静、平和的氛围,这种环境是最能抚慰人的躁动。 在这个家,每个空间都传达出一种寂静而惬意的生活状态,无关现在还是过去,就是当下的生活。
