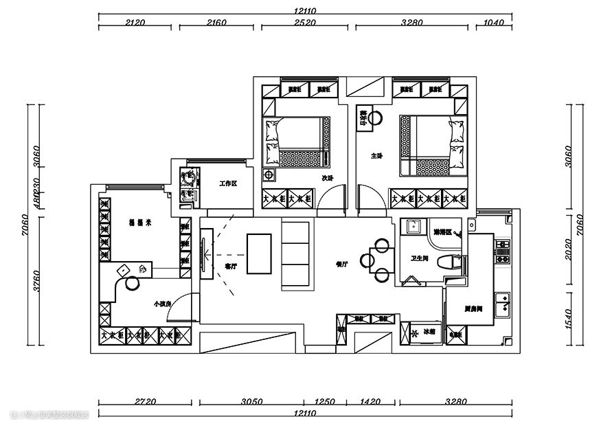
此房面积为84平,但是业主情况特殊,一对夫妻,带上一个小男孩,还有一对老人,女主人的工作,是在家直播,所以设计师在设计之初,考虑到住的人偏多的情况下,尽可能的将使用面积利用到极致,同时做到大家互不打扰,整体简约的风格,也更适合女主人在家直播的环境。

玄关是整个空间非常重要的“综合功能区",是居者从室外到室内空间的过渡区域,人在这个区域的动作会集中在换鞋、放置随手物品、脱衣、简单洗漱,甚至放置脏衣、袜子,做家务、洗衣的相关功能。

△入门处

业主家的玄关与客厅餐厅相连,没有严密的独立区域,利用局部柜体,如鞋柜、换鞋凳有效地进行空间分割,实用又简约。同时,有效利用边角空间,置入收纳功能,最大化释放出公共活动空间,提高生活质量,与空间的整体风格和色调也很搭配。

△玄关与餐厅的连接
客厅在人们的日常生活中使用是颇为频繁的,它承载了休憩、聊天、娱乐、待客等多种需求,是住宅空间的重要组成部分,客厅也往往被主人列为重中之重,精心设计、精选材料,以充分体现主人的品位和意境。

这次的客厅采用蓝色的背景墙,给浅色调的空间增加了一些亮点,两只麋鹿的收纳盒既满足了收纳的需求,又显得精巧可爱,可以看出浓浓的生活情趣,棕色的沙发软软的也很舒适。客厅最有亮点的就是茶几啦,茶几是智能茶几,有隐藏式电磁炉,可以四面加热,暖脚暖手,烘干衣服等等,极具科学性。

△悬空的电视柜,方便扫地机器人的打扫,无卫生死角

简单的客厅灯有很强的光线,扫地机器人解放了双手,每一处都恰到好处。红色的刺绣让人感受到夫妻间的感情,家庭氛围感十足。

△客厅整体 整洁清爽
餐厅对一个家是不可或缺的,不管是大房子还是小房子,一张餐桌就是可以构成一个就餐环境,它不仅仅是一个简单的吃饭地方,更多的是它可以让家人团聚让朋友欢聚在一起,它可以拉近我们之间的距离。

△餐桌与餐厅的完美融入

餐厅是吃饭的重要场所,对餐厅的装修一定要考虑色彩方面的食欲,业主的餐厅是素雅的白色,桌子上摆着一束小小的干花,简单而不简约,可以看出主人小小的生活情调。

两个不带靠背的椅子,不用的时候可以收到桌子底下,很大程度上节省了空间。浅色面积显得原本比较小的餐厅不会很拥挤,与客厅融合到了一起,显得更加宽敞。
厨房是烹饪和展示厨艺的场所,从里到外的布局满足了日常洗菜、切菜、炒菜做饭流程,同时嵌入煤气灶、油烟机等必备厨房电器的室内空间。

厨房同样以白色调为主,做了整体式设计,这种厨房的布局解决了转角的尴尬

△干净整洁的厨房台面,业主真的很爱整洁

属于半开放的布局,纵向拉伸充分利用空间,整体空间通透,视觉上显的很大,透明的推拉门显得不憋闷。

双开门大冰箱放在厨房外面墙的一侧,既节省空间又充分满足储物需求。餐厨动线合理布局,节省室内使用空间。

△小小的装饰,点亮整片空白的“世界”
主卧是很重要的地方,在结束一天繁忙的工作生活后,希望在推开门的一瞬间忘记烦恼,安静舒适的色彩搭配才能使身体彻底的放松。

室采用简单的色彩,灯点缀,做成了一个舒适的睡眠区,显得温馨舒适。用床台做床头柜,节省了空间。

床的线条简单、大气,非常有质感。在细节上的雕琢上也匠心独具,如优美的摆件、形状独特的床头等一般都是曲线造型,有艺术而又美观。大大的落地窗与窗帘相映衬,布艺的天然感与简约风格能很好地协调。

△全屋定制的柜子,完美契合

△飘窗带着微风,在此休息,真的很惬意

△可爱的小熊

△小柜子的照片,记录了业主爱情路

接下来看看老人房,老人房是儿女为孝敬父母而为父母准备的房间,方便父母舒适安心的生活。随着社会的发展,老人在生活上的需求也逐渐提升。因不同的老人的生活需求也是不同的,所以在老人房的装修上也是很重要的。

业主家的老人房同样采用浅色调,简简单单但是很用心,在材料的使用上,尽可能选择了天然材料。在灯光选择上,选择了明亮柔和的暖光,采光也很适合。在阳台上,还安上了保暖舒服的垫子,让老人们的生活更舒适。

△和主卧同样设计了飘窗,方便老人陶练情操

儿童房作为孩子的卧室、起居室、游戏空间的综合场所,对儿童房的要求比较高。儿童房不仅要满足孩子生理上对于色彩的需求,更要同时兼顾功能性。

这家的儿童房主体用榻榻米的设计,给孩子做了衣柜与桌子,衣柜与桌子都恰到好处,满足了小男孩的生活与学习需求。

同时,还做了一个透明的玩具柜,暖暖的黄色灯光,大大增加了孩子的娱乐,床尾的一排玩偶更为房间提供了温馨。大大的抽屉与柜子可以放得下孩子的日常用品,充分利用了空间。飘窗与床相连,既可以欣赏美景,又能充分感受到阳光。既有睡眠区,为儿童营造一个良好的睡眠环境。又有学习区与娱乐区,我们可以让孩子在玩中学,学中玩。

△男孩的“世界”
在卫生间,这个相对私密的空间中,所有的一些设施以及物品都是服务于个人,需要自己感觉都舒适,完全按照自己的使用习惯自己的喜好去装修。卫生间的浴缸采用了隔离式的淋浴,节省了空间,又很好的做到了干湿分离,让下班回来劳累的男女主人可以一起远离拥挤喧嚣的城市。马桶的效果真的是给人眼前一亮,圆润的马桶别具一格,流畅的线条让人体会到现代的设计感。洗手台的镜柜设计,也很有品位,实用性非常好。卫生间是相对容易受潮的地方,一般的板材浴室柜容易受潮发霉,业主采用的材质,美观又实用。

阳台,作为室内建筑结构的延伸,是洗衣、晾晒、堆放杂物的空间,阳台设计是一个家不可缺少的一部分。

业主的家放置了全自动洗衣机,阳台不仅阳光充足,而且通风效果也好,便于衣物风干,因此将洗衣机设计在阳台上,方便又实用。保证了衣服的清洗与晾晒,充分利用了空间。

