


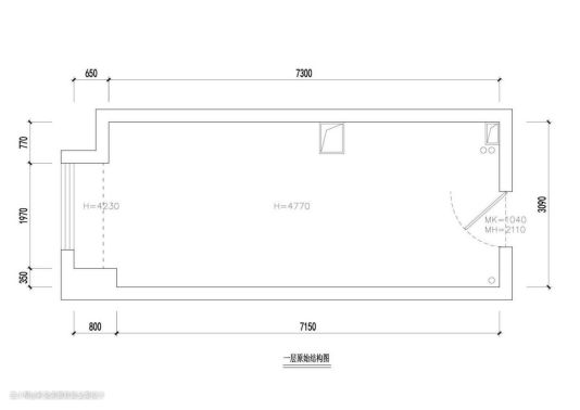
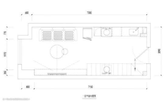
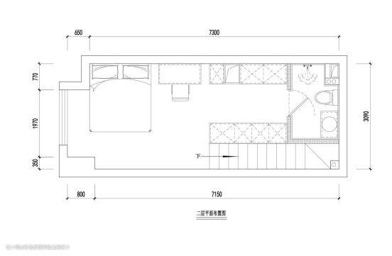
业主是位20多岁年轻人,在成都工作几年,购置下这套小公寓,告别租房生涯,过上属于自己的新生活。业主希望装修得时尚美观,充满生活品质感,要充分利用空间做收纳,让家能够保持整洁、方便打理。 设计理念:作为小公寓,一切围绕空间的高利用率展开,同时兼顾舒适性,为营造简洁宽敞的空间氛围,色彩搭配和空间造型装饰要精简和谐。 房子是典型的loft公寓户型,单面采光。我们将厨房区域布局在进门一侧,和楼梯相对。 一楼整体呈双一字型布局,厨房区域连接沙发区域,楼梯间和电视背景墙相连,让入户到客厅形成一个通畅的整体,给人更宽敞舒适的尺度体验感。 一楼二楼之间搭建隔断,二楼整体做卧室套房,新建墙体隔出一个卫生间,休息区、梳妆区、衣橱区依次排列,满足个人生活所需。

设计亮点
地方虽小,但各种功能区是完备的。入户之后玄关收纳用一个定制柜解决,白色柜体与墙面和谐相融,完全不占空间。回家放包包、换鞋,洗手,一气呵成,一秒进入居家休闲模式,把疲惫与紧张关在门外。




设计亮点
客厅以白色为主调,更显宽敞的空间感。浅灰色云纹亮面地砖,光亮的质感为家增添了华丽气质。 灯光布置上,全屋以无主灯的设计方式布局灯具,让空间更显开阔。客厅顶面嵌入磁吸轨道灯,起到拉伸空间的视觉效果,也将会客区与餐厨区做个区隔。 米色软皮沙发,带金属框架,增添了客厅空间的轻奢感,三座沙发1750*850mm尺寸,与空间尺度刚好搭配。 电视墙做整面墙的收纳柜,无拉手设计的柜体与墙面完美融合,降低柜子存在感,在满足收纳的同时,保持空间的和谐整一,给家人留下更轻松更愉悦的居家感受。电视柜的开放格区域,为表达主人的偏好提供了展示区,精致的摆件和与家人的合影是生活中重要的点缀。


设计亮点
客厅到厨房之间的区域,用作餐区。当招待一两个朋友时,就把可折叠的餐桌打开,足够使用。平时收起餐桌靠墙摆放,整体空间更显宽敞。


设计亮点
橱柜中嵌入电磁炉集成灶、洗衣机,让独居的生活也处处充满精致的质感。厨房墙面空间也得到充分的利用,吊柜加上开放格,把杂物收纳起来,让备餐操作更加顺手更加高效。 橱柜选白色石英石台面,与黑色家电形成鲜明对比,更具时尚感。黑色水龙头搭配黑色台下盆水槽,小小厨房彰显着主人独特的个性。 双开门的大冰箱靠客厅区域摆放,更方便拿取食物。



设计亮点
二楼层高相对低一些,就将筒灯嵌入原始顶面,让卧室空间更显宽敞。卧室用暖灰色实木地板铺设,用大地色系的床品和窗帘,营造温馨氛围。 床边搭配一个米色梳妆台,满足化妆整理的需要。 休息区到卫生间之间的过道,是衣帽间,由两排定制柜组合而成。 衣橱区到顶的衣柜满足更多的衣物收纳,黑色线型拉手与浴室黑色门框遥相呼应,细节处也有和谐的搭配,让空间更显精致。



设计亮点
卫生间淋浴区的墙壁做壁龛,放入洗浴用品,让沐浴时光更顺手更高效。浴室柜用黑金花纹岩板做台面,镶嵌台下盆更方便打理。吊柜设计,留出地面更显轻盈。镜柜旁设插座方便给电动牙刷、电吹风等小电器使用。 卫生间墙面铺设白色亮面瓷砖,用银色美缝剂勾勒缝隙,防水耐污同时尽显轻奢华丽,让人更享受沐浴时光。
