

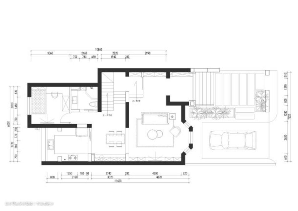
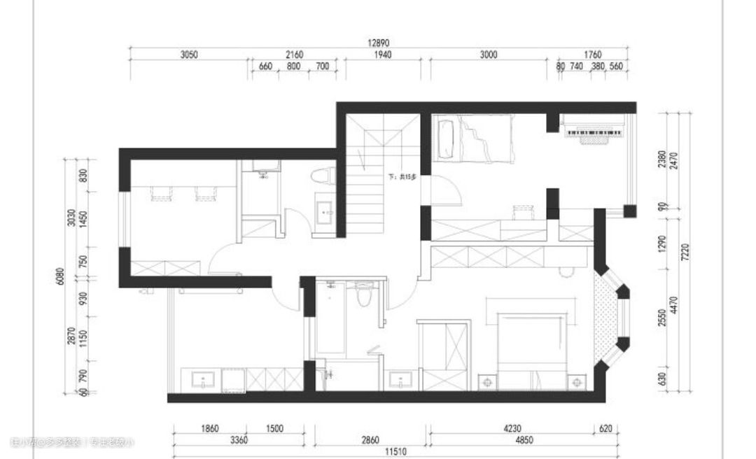
二楼空间 二楼空间考虑主卧、儿童房、书房的功能 房间首选朝南的房间,原本主卧空间感足够,我们主人公的需求就是想要干湿分离,卫生间门不要对着卧室空间,所以主卧在结构上调整将原有空间分割加了个小衣帽间来分割空间将进入主卫和衣帽间的门改到侧面。 原来二套房空间偏小,有放钢琴的需求,所以我们将主卧的南阳台空间给了儿童房,使空间功能更加完善。 书房门外走道位置利用卫生间淋浴房的一个角落配置了茶水柜。







设计亮点
我们最初始的定调就是法师复古风格的调调,所以在材质上选用胡桃木比较质朴耐人寻味的木色作为空间的整体基调,大片以白色为主,深浅形成对比,加强空间感。 客厅窗户三边形状本就是空间的特色,所以我们没有考虑布帘来破坏空间,直接选用的木百叶窗户的形式,既能迎合我们的风格,又能增加私密性。 电视背景采用的是对称原则,将大理石壁炉作为空间的主角,考虑到整体比例问题,我们电视机的后面是根据预先看好的抽拉配件预留了开孔,方便电视机根据后期需求来调节。

设计亮点
黑白地砖耐脏好打理也足够经典,灰色厨房配上亮面墙砖,打破空间沉闷。在亮面瓷砖选择上选用了一点带几何的凹凸感,让两面砖变得富有时髦感。


设计亮点
玻璃临窗位置应该是餐厅的高配 餐厅区域的功能需求考虑了就餐和收纳,也是中厨的一个延展,将管线机直饮水龙头安排在餐桌边,饭后洗水果,接水也会更方便些。 餐边柜颜色和地板统一,上面采用玻璃上翻门的形式让空间更加通透。中间的墙面选用人字拼的小白砖增加实用性。餐厅的层高比较低,所以吊柜留空让空间更有延展性。

设计亮点
主卧卫生间采用水磨石砖拼接防水涂料的形式,在用水量比较大的淋浴区使用小白砖满铺,使空间兼具美观与实用性。



设计亮点
主卧对于我们屋主最大的渴望就是收纳,所以在兼具小型衣帽间的同时我们在床对面的那面墙置办了满面的衣柜,为了增加趣味性所以运用弧形来作为梳妆台造型墙面,内框调色活泼生动。 主卧背景墙选用的是蓝色棉麻质感的软包来作为床体背板,上面选用细腻简洁的石膏线条,再搭配金属质感的灯具来营造卧室温柔质朴的美感。 衣帽间背面白色的墙面选用一款窗景挂画,躺下看左右两侧不同的窗户景色,真真假假,让人遐想。




设计亮点
儿童房墙面主题色是牛油果色,原本衣柜颜色和涂料颜色一致但是工厂那边搞错了,颜色深了很多,将错就错小盆友也很喜欢所以就保留了,多了一个颜色层次感。整体家具也是暖米色调,搭配cole&son的豹子墙纸彰显趣味性。儿童房灯具也选用圆形和云朵造型相对柔和温暖。




设计亮点
走廊尽头书房门外配置的茶水柜,工作繁忙之时也要记得多喝水,设备阳台 兼备功能和美观一体,防水防晒的铝合金柜子造型丰满充实。
