

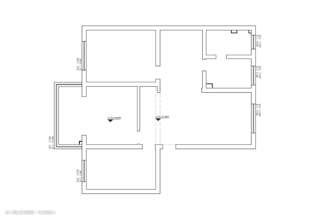
装修前
原户型其实非常周正,虽然格局不太合理,也算是南北通户型,而且卧室都朝南,采光极好。 但是被上家改成了三房后,南北通的优势瞬间荡然无存,还浪费了一个好阳台。 缺点也很明显: ① 餐厅位于主卧与厨卫之间,非常拥挤,通风采光都不好。 ② 进入卫生间,需要先经过厨房,非常不方便。 ③ 每个空间都相对独立,没有关系补充,更没有储物功能。
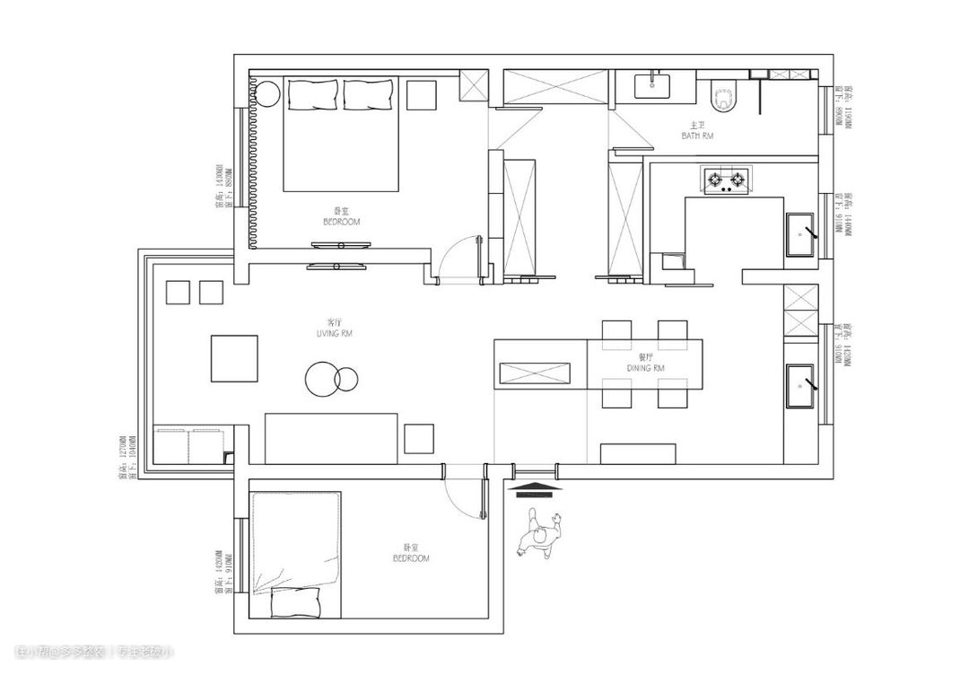
装修后
在梳理了空间关系和屋主需求后,我们将三房改回到两房,并将原本纵向零散的公区改成了横向交融的客餐厨一体化空间。 改动如下: ① 拆除原客厅位置的隔墙,让拥有大阳台的房间重新回到客厅C位。 ② 餐厅则顺势移至原客厅的位置,并在靠窗一侧增加西厨功能,作为厨房的补足和储物功能。 ③ 餐厅岛台与入户玄关柜结合,同时满足两个功能区的收纳,形成洄游动线。 ④ 同时改变厨房和餐厅的入口,避免入厕需要经过厕所的尴尬。此次,客餐厨和玄关就紧密连在一起,成为一个真正意义上南北通透,采光无限,功能齐备的交互空间。 ⑤ 厨卫开门位置改变后,原本作为餐厅使用的过道区域就改成了一个拥有三个大储物柜的立体空间,同时作为屋主的衣帽间和日常收纳使用。 ⑥ 在卧室和衣帽间之间开了个门洞方便屋主进出卫生间,同时也为屋主打造出一种套房的感觉。


设计亮点
入户,左侧是客厅。 进门落尘区,铺贴中灰色地砖,方便打理,和地板之间做出的高低差通过压条收口,美观大方。 鞋柜上下分成四块收纳区: * 上柜放置平时不穿的鞋子 * 中间镂空可以防止包包车钥匙小型快递等 * 下柜放当季的鞋子 * 下口镂空,专门放拖鞋和入户鞋









设计亮点
客厅作为活动的高频区,抛开繁复的设计思路,用最简单的涂料做装饰。 利用吊顶和墙体的走向,我在电视墙底部用砖砌了一条高200mm的矮墙,做成一个框体形式,将电视背景墙内嵌其中,然后将顶和 电视墙用水泥漆点缀,增加肌理感。





设计亮点
餐厅其实是本案改造的一大重点,因为用餐的仪式感正在回归,对于年轻一代来说,做饭不再只是为了“吃”这一个目的,它成为一切关系的原点,变得越来越重要。 在这设计的过程中,我也希望用餐区尽可能的宽敞明亮,可以沉浸式的与家人相处,也能招待朋友,可以玩桌游,也能静下来心来办公,为屋主打造一个多功能的空间。
软装搭配
在餐椅的选择上,巧妙的选择了长凳。一来是因为它很节省空间,二来它又重现着小时候那种一起排排坐的亲密关系。





