



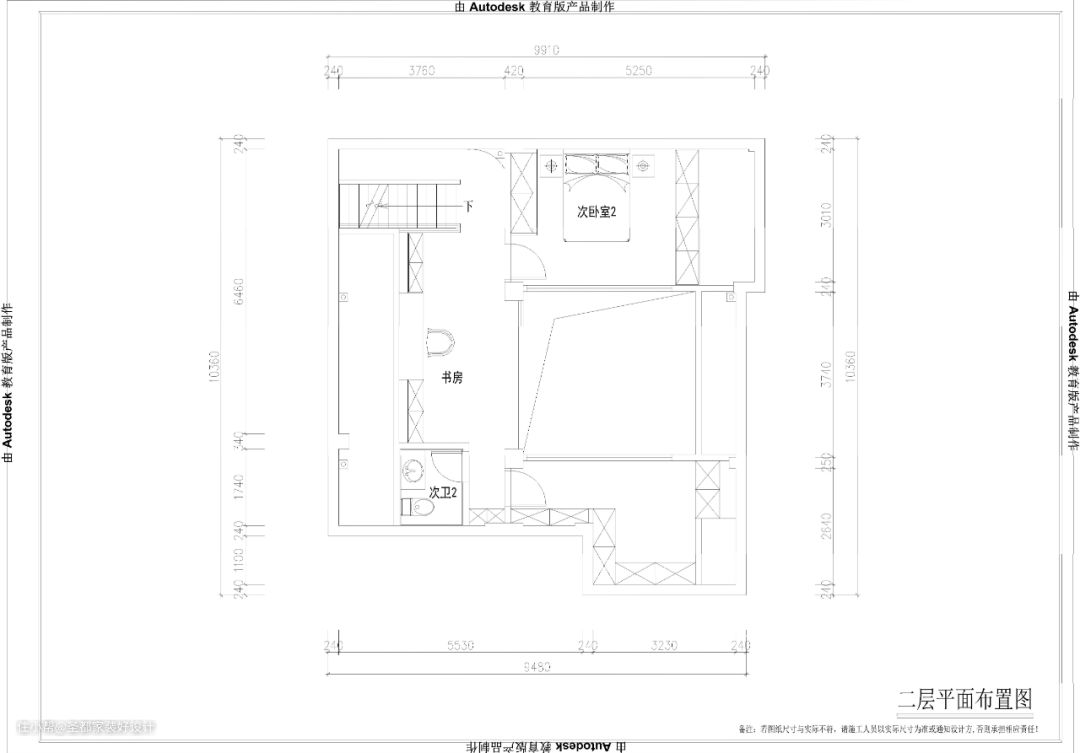
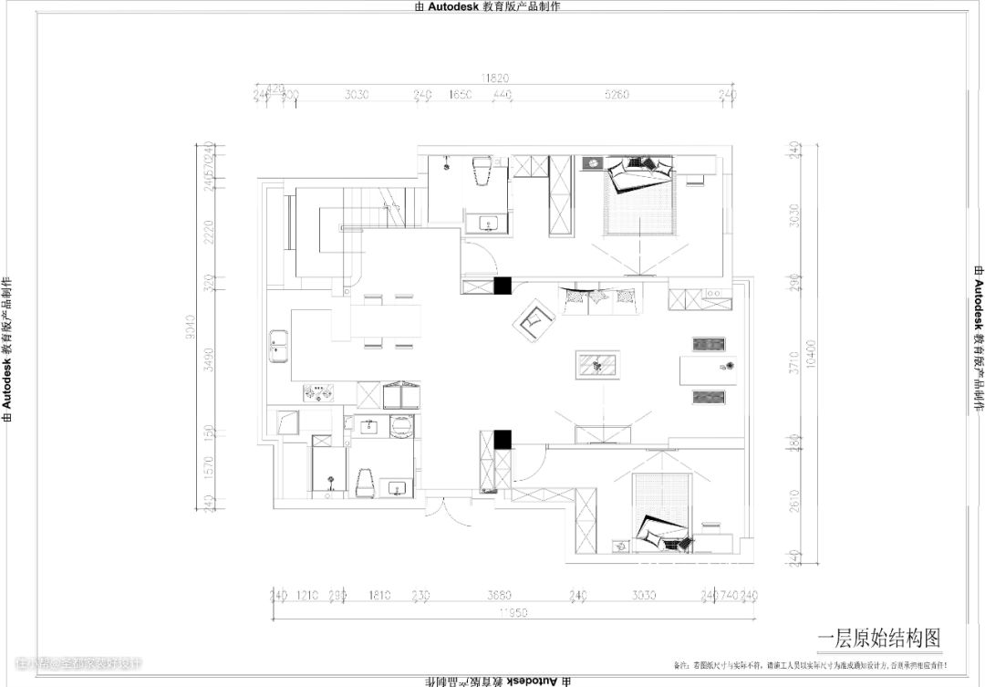
✦设计亮点 ✦ 本套户型因为是顶楼所以赠送了楼上的阁楼,整个面积就大了很多。但是缺点也很明显,顶楼是斜顶,所以注定利用率不高。如何提高利用率这是一个设计点。 一楼的户型还是比较方正的,3房2卫的配置,满足了日常生活的需求。顶楼的基础,需要牺牲一个房间来做楼梯的设计,所以如何更好的配置空间也是一个设计点。

一楼空间把可利用空间全部打通,包括客厅原本的阳台,全部纳入给客厅。玄关端景,一灯一瓶,一花一世界,沉默分割开两个公共区域。




利用顶楼楼板增加天窗的方式,把采光做到最大化。这样客厅可以有一排的采光井,二楼的房间也不存在暗间,每间都有窗户。虽然这样做费用会提高很多,但是这费用花得很值。 因为有着阁楼的存在客厅这块果断不选择现浇,而是选择做挑空设计,完美的把层高拉倒了5米以上空间,配合上客厅的大天窗,整个客厅有一种别墅的感觉,视野光线都是绝佳的。 黑色的花瓣沙发搭配黄色的毛毛虫懒人沙发,妥妥的下班后的充电站。简约的黑白色调中,一抹亮眼的跳色,带来治愈感。黑色悬浮电视机背景墙,茶色玻璃半开放式到顶柜,每个细节都凸显着家极简的概念。 整个公共区域的窗帘使用梦幻帘,简单,干净,能很好地融入整个空间。斜坡式的顶面,带来魔幻空间般的居住体验,若置身于扶桑之顶。


厨餐敞开式,餐桌黑色岩板台面和厨房的黑色台面色调一体,形成一个默契的呼应。楼梯底下的边角空间单独做了一个“小花坛” 端景,种植热带植物,耐欣赏、好打理。只是舍弃掉了一小部分储物空间,就能获得一片思考停滞的留白。

厨房南北通透,通风环境好。台面做出一个吧台式的上餐口, 油烟机煤气灶选择了火星人集成灶来保驾护航,保证了油烟不乱串的情况,大大减少了油敞开式厨房的油烟问题。西门子全嵌冰箱和洗碗机也是必须安排上的厨房电器,维持高颜值的同时,解放双手,带来极致使用感。


敞开式书房同时也是开黑的空间,规划在二楼斜顶小天窗的位置。白天办公根本不需要灯,自然光线就是最舒适的。坐着的时候当然就不用去考虑层高了,灯带跟随顶面的线条起伏,有时候狭小的空间反而更让人有独处的自在。


主卧留出了最亮的一片区域做梳妆台,背景选用清新治愈的木饰面拼接装饰,不论何时,都能让心情得到放松和疗愈。

儿童房充满可爱软萌的元素,边角都是柔软圆钝的。蓝色大海的主题,给小朋友无限的想象力与憧憬。

洗衣需求都移位到次卫,次卫把原本设备阳台也利用起来,有足够的空间来满足,形成浴室+洗衣房的配置,西门子洗衣机烘干机,再安装一个外置晾衣架,满足一切日常所需的洗晒烘功能,同时释放出公共空间。
