

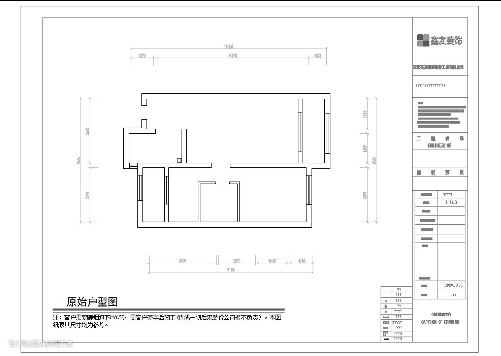
装修前
原户型阳台与客厅是不相通的,客厅的采光与通风性差,显得客厅比较压抑,次卧空间比较小,卫生间入口处比较小,来回进入比较费劲,厨房空间也比较小,满足不了业主想要中西厨的需求。
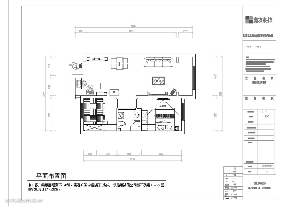
装修后
由于阳台与客厅想连接的地方是可砸的墙,所以将此区域打通,增加客厅的采光与通风,由于次卧空间比较小,所以将次卧的阳台打通,将次卧打成榻榻米,增加空间的利用率,厨房设置成L型开放厨房,增加厨房的空间利用率。





设计亮点
将阳台与客厅连成一体,大面积落地窗的存在既保证了室内拥有充足的光线,也能让人欣赏到窗外的美景。
软装搭配
客厅以白色、灰色为主调,点缀橘色,透过不同颜色的石材,硬包壁布和皮革,让空间呈现出和谐的层次感,用干净的线条和不同的空间体块提供了开放的流动空间。




设计亮点
客厅与餐厅之间是处于一种横向的连贯中,很好地体现了空间设计的流动性。开放式的设计给人开阔的视觉感受。
软装搭配
餐厅暖色系的灯光,营造温馨的就餐环境,灰和橙色的餐椅搭配与客厅沙发相呼应,保持整体色调一致。




设计亮点
L型厨房,增加厨房的活动空间,充分利用每一平方米,开放式的厨房配个中岛台,这是标配了。不过正因为厨房是开放式的设计,让空间也更宽敞明亮了。利用定制柜的优势将厨电嵌入进去,获得更多的料理空间。
软装搭配
厨房搭配上白色的橱柜,清爽整洁,是理想的厨房样子。




设计亮点
将主卧的飘窗拆除,让光线更多地进入空间;主卧衣柜多用于收纳过季衣物和被子、大件等,降低衣柜存在感,增加主卧休息的功能性。
软装搭配
主卧的床头的灰色柜子简单实用,白色的棉麻窗帘让室内的气氛柔和而温馨。




设计亮点
次卧榻榻米设计,增加次卧的收纳空间,合理利用空间,简洁又实用,轻松满足收纳和学习的需求,榻榻米的功能性和灵活性再一次被点满。
软装搭配
次卧设计以温柔的灰色和白色为主调,翠绿色透明窗帘的置入,让空间更显得清透明净,棉麻舒适床品的柔软相搭,让空间的质感构成平衡。




设计亮点
卫生间洗漱台都是做成悬空样式的,这样一来底部的空间清理起来更方便,不留清洁死角。灰色的卫生间加上灯光的设置,打造独特个性的空间。
软装搭配
简单的设计,浅灰色的地砖和墙壁搭配白色的洗手池。卫生间用深色和浅色划分功能区域,合理规划出干湿分离。
