
装修前
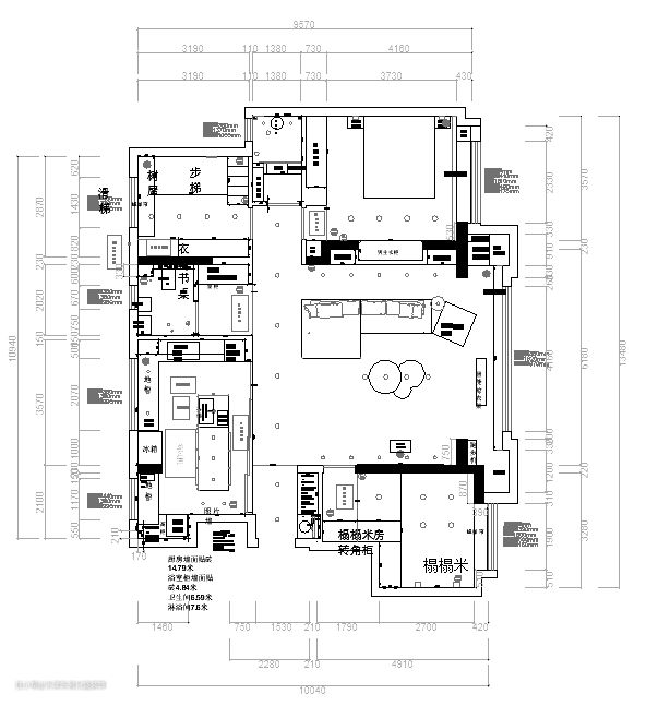
本案的居住者是一家三口居住,业主夫妻有一个可爱的儿子,在与设计师的交谈中,就明确表示,想要简单舒适感强的生活;希望有开阔的空间,健全的功能,高级的质感...最终定下与业主气质相匹配的现代家居。 本案是一套140㎡的横厅结构,相比经典的南北通透分区的格局,横厅的布局更能体现出空间简单美好的感觉,而且在同样的面积下,横厅的视野也会更显开阔,设计师基于此种通透的结构再加上极简的设计,以纯粹的奶白色贯穿整试,优化布局辅以极简干练线条,整体空间呈现大方十足,把生活中的轻松与自然尽情展现。
装修后
在本案设计中共有两条洄游生活动线,一条是餐厨区,可以经过餐厅,进入厨房,再进入客厅区域;另一条是客厅区域,可以直通次卧、餐厨、卫生间,整个动线设计十分合理,有助于业主在日常生活中做事会更加省力、高效。 1、将餐厨空间打开,以餐桌为中心做了洄游动线的设计,也分成了两个功能区域,提升空间使用率; 2、沙发放置在客厅中间位置,并没有靠墙,这样沙发与餐桌一样,也有了自己的洄游动线; 3、在光源搭配上,主要采以嵌入式防炫射灯以及线性灯,处理简洁利落的满吊顶天花巧妙融合,凸显空间的舒适和雅致。







设计亮点
第一眼望向的客厅,就给人一种自由和通透的呼吸感,绝佳的采光,让空间显得宽敞明亮。 大面积的留白,简化,采用简约的几何造型勾勒出空间分区的轮廓,光影交替间传递出家的层次感 横厅里舍弃了复杂的硬装饰,采用现代简约风格搭配而成,无主灯设计利用均匀分布的筒灯、暗藏的灯带,并且顶上走方正的吊顶修饰并加入隐形灯设计,让整个空间更为开阔简洁,层次明朗。 简洁的线条与大气的布置,加上大面积落地窗,为客厅带来 奶白+奶茶色双拼的绒面沙发搭配不规则几何形茶几,让整个空间带来时尚感。令空间非常时髦与大气。 现代极简风总是以一种漫不经心的态度传递高级,比如可爱造型的兔子可充当座椅的同时又能给整个空间增加了些许趣味性。 沙发放置在客厅中间位置,并没有靠墙,这样沙发与餐桌一样,也形成一种环绕型的洄游动线,让行动的路线形成一个回路,在同一个回路中融入不同的功能区,达到空间利用的最大化。 在客厅通过洄游动线的规划设计,把从玄关开始,到客厅、餐厅、厨房,还可以加入阳台、多功能空间融为一体,每个功能区都是其他功能区的延展,告别一个个独立的、静默的空间,而把它变成了一个交流场,空间关系变得更流畅、有趣、充满活力,满足各种生活场景。 客厅以现代简约的大方空间,电视墙采用内嵌式的设计,与之极简的墙面相搭配,视觉上与对面的满墙收纳柜相呼应。 天花做成无主灯的设计,在电视墙上方加入暗藏的灯带与筒灯相互补充,带来一个明亮舒适的照明环境。 连贯的电视背景墙中加入隐形门设计,此处可以直接通往次卧空间,为业主带来了更具轻简的生活方式,让整个画面保持着简雅、沉稳的气质。 奶白色墙面+隐形门则达成了视觉减负,在统一材质、色调的延展下,空间更显连贯协调、沉稳大气,形成更为舒适、整体的视觉。 客厅空间与厨房餐厅相连,拉近了彼此的关系,构成社交、娱乐、用餐一体的丰富场景。



设计亮点
厨房是一个集合收纳与烹饪于一体的多元系统,让做饭告别繁冗。 井井有条的厨房是不需要浪费一丝“笔墨”的,简洁到从外观上一眼望去,不论是设备还是物件,都能够被完美的隐藏起来,竭尽全力的保持干净利落。 厨房的布局要从缩短动线出发,L型操作台利用相邻两面墙体空间,形成清洗备菜烹饪三角移动的工作区,不必在备菜区和烹饪区之间走来走去,缩短了操作者的移动距离,减少了等待的时间,整个料理过程自然能更加得心应手。 在操作台上安装嵌入式高压洗别杯器水槽,引入直饮水设施,平常洗茶杯、洗切水果皆可在此进行,缩短家务动线,提高生活效率。





设计亮点
为了增强客厅与餐厅之间的互动性,设计师以开放式厨房与餐厅,共同打造了洄游动线,以餐厅为中点,餐桌的摆放位置形成一条舒适的洄游动线,从这里可以直接到达厨房操作区或客厅,从而减少了家居空间之间的冗杂路线。 开放式的餐厅与厨房、客厅相邻,依墙设立的惨变柜体,减少占地空间,极简设计美观大方,解决公共区域的储物需求,让设计拥有更多可能。 餐厅开阔明亮,将岛台和餐桌一体化,形成一个有环形动线的空间,也满足了业主对于做饭互动性的需求。家就是要充满“人间烟火气”。 餐厨一体化的通透布局,毫无质疑整个空间便是共享采光的,通铺的柔光砖让整屋更具有统一性。 餐桌选择浅白色长桌,灰棕色的软皮座椅提升舒适度,整个布局以迂回动线为主,满足业主一家聚餐的需求。



设计亮点
客卫的干区紧邻客厅区域,这样不仅轻松实现干湿分区,而且因为洗漱位置只是占了公用部分的一小块地方,过道也不会感觉到拥挤。 简约的柜体设计让卫生间的层次更为立体,简致的收纳柜将洗簌用品、杂物等都收入其中,使得空间美观、整洁。 圆形的镜面设计加入灯带装饰,给人梦幻的空间氛围,整体视觉清爽舒畅,简洁的收纳柜与柔和的灯光,营造出视觉上的和谐与平静,勾勒出空间层次质感。 主卫区域同样是干湿分离的设计,淋浴区墙砖一体皆选用灰色瓷砖,干净清爽的洗漱环境,考虑到实用性,提升做好防水功能,在保证颜值的同时,舒适度和实用性也没有就此忽略。




设计亮点
主卧背景墙的半墙拼接和中间留空的嵌入灯带设计,原木和灯带的碰撞,摩擦出不一样的质感,提升了空间的品质,起到空间强化、延伸的视觉焦点。 床头侧面以通体到顶的方式,设计了一组整面墙的白色隐形门储物柜,既在视觉上做到了平衡,又彰显出了一丝优雅高级的气息,并且兼具了超强的储物功能。 家中的声色不在于多,在于搭配。过多的颜色会给人以杂乱无章的感觉,在现代简约风格中多使用一些纯净的色调进行搭配,这样无论家具造型和空间布局,才会给人耳目一新的惊喜。
软装搭配
飘窗的存在将室外引进室内,让室内拥有足够采光的同时,也能呆坐此处感受窗外的风景,高贵的品质和简洁的风格,在静谧氛围中营造令人生动的生活美学。 家中的声色不在于多,在于搭配。过多的颜色会给人以杂乱无章的感觉,在现代简约风格中多使用一些纯净的色调进行搭配,这样无论家具造型和空间布局,才会给人耳目一新的惊喜。





设计亮点
儿童房整体色调偏暖,以现代主义的艺术性为基调,极具格调与个性的艺术无主灯光的设计,流露出的是温馨幸福感。 趣味性儿童床包括单层半高儿童床、双层床+滑梯款、卡通造型儿童床,让孩子的居住空间有更多的可能性。 双层床不仅可以给孩子更多乐趣,而且也是节省空间的一把好手,利用纵向的空间,省出更多的空间给孩子自由活动。 儿童房里也布置了衣柜、书柜等足够的收纳空间,并为孩子预留好了书桌的学习空间。
