
装修前
今天这家案例的屋主小王同学,要我说多少很有远见。 进他家前,各个地理位置和周边的环境都告诉我,这大概率是个老破小,加上我事前就知道是顶楼,对他家多少有点看热闹的心态(手动狗头),没想到啊没想到! 🔍项目信息 房屋面积:建面110㎡ 房屋户型:2 室 1 厅 1 厨 1 卫(改后) 装修套餐:颜值革命 5.1 系 常住人口:夫妻 2 人




设计亮点
打开门,通过玄关后,却是“柳暗花明又一村”的感觉: 午时刚过,阳光通过窗户斜斜地洒在阳台上,有种迎面而来的炙热感,褐色的摇椅旁放着一杯清茶和一瓶洋酒,恰好 ,客厅正盈盈绕着我听不懂的法式音乐,慵懒而惬意,爬顶楼的气踹也在这一刻烟消云散。 屋主小王,等我们的同时也在听音乐,他是我采访真实人家这两年来少有的“影音爱好者”,穷自己不能穷耳朵,杜比特音效、电视画质他张口就来,他家装修在这点上,也不含糊。 作为婚房,也是首次装修的小白,小两口在装修前就达成一致意见:各自常待的空间各自负责,交叉部分小王来,硬装部分,交给拥有30年工装经验的找小王爸爸。 就这样,经过一通对比后,住范儿角逐胜出。让小王最终下定决心的,用他的话说两个原因,一是整体对比来看,设计细节的实现完成度比较高;二是家电选配的服务很打动他。 那他家究竟是什么样子? 按我的理解,就是工业、朋克、轻法式再融点日式,很难用“所谓的风格”去形容,但“真的很小王本人”——硬核中带点温柔,和可爱。


软装搭配
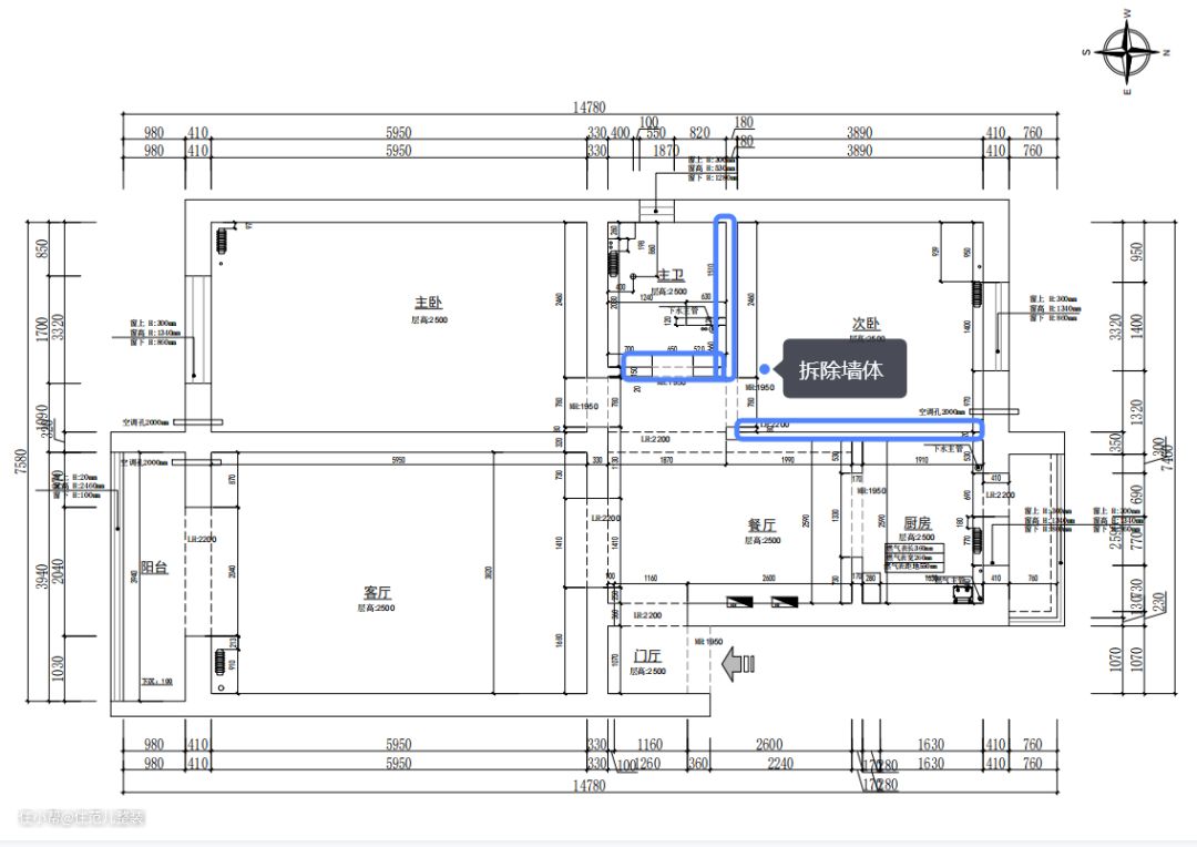
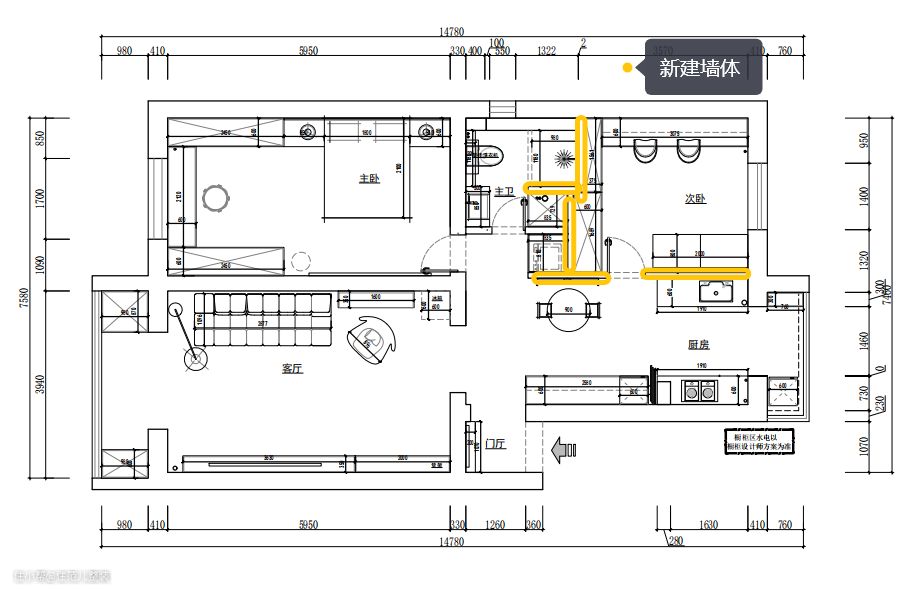
改造前后户型图 改造重点 1.拆除所有影响采光的门,让空间开放、通透起来,比如客厅与阳台之间的推拉门,封闭小厨房的门和墙体; 2.调转次卧门的方向,从与主卧对立换到餐厅进入,在同样位置新建墙体后轻松拥有独立的家政区,同时扩大次卧收纳面积; 4.改造后的次卧在不影响采光的面积下,变身多功能房,工作区、游戏区,甚至是未来的儿童房,都只是简易加法的事情; 5.主卧在不影响采光下,沿墙做双II型定制柜,轻松打造套间衣帽化妆区,主打的就是“女主专属”。


设计亮点
独立玄关的空间不缺,但小王对这个原木色的鞋柜有很深的感情,就暂时放在这里,作为临时的玄关收纳区。 鞋柜,陪他从老房到新房,他觉得,房子要有生机,就必须有个老物件,这个鞋柜,算是留个念想。









设计亮点
正式入住之前,房子租给了一个两娃之家,客厅也主要是孩子们的活动空间,基于此,开放式收纳柜+电视占据了大面积空间,其余地方几乎全部空着。 疫情之后,小两口的婚期提升了日程,放弃掉现在租住的狭窄公寓,正式开始“人生的下一个阶段”,不过短时间内,二人世界的生活计划并不会改变,一套“真正属于自己的房子”,让两人也对未来生活有了更多的期许。 最直接的,出租屋里装不下的爱好和舍不得花的钱,现在都可以实现了。 小王的梦想就是打造一个简易版家庭影音室,最好实现的还是客厅。 打掉了阳台与客厅之间的推拉门后,客厅面积直接扩大3㎡,因此能直接享受阳光的沐浴不说,家里的采光、通风都好了一大截。 不同于以往客厅都是通顶柜的解决方案,小王取了影音室,舍了一丢丢收纳,算是对“实现梦想的妥协”。
软装搭配
用“空而有料”来形容他家客厅最好不过,墙上挂着的是他精选的海信电视,4k可以轻松实现,这是他在放弃索尼之后的选择,“索尼有点贵,但海信稍微追一追索尼,它有自己的处理芯片,在快速移动的游戏人物里,它表现也还可以。” 前提是,必须配着它的音箱一起听,贼刺激! 影院的效果之所以逼真,就是在“视听”两方面更极致。受预算限制,他把重点放在了听上,在海信电视下方以及侧边,以及正对电视的左右两侧3m处,共放了4个音响,不同位置的音响作用不同。 这就相当于,在播放同一音乐的情况下,有5个音轨再给你的耳朵播放,高中低,左声道、右声道等各司其职,听起来层次丰富,细腻而有质感。 我随机播放了一段交响乐,现场效果真不错! 为了配上它的设备,他在风格上一早就有自己的想法,工业风。从落成的效果来看,实现度接近90%。 全屋通刷灰色的ppg漆作为底色调,这成为各个空间的连接色。客厅一改往日温馨的原木风,大胆使用黑色作为主色调,定制的黑色皮质沙发、黑色不规则茶几,配上角落hey的黑色细脚置物架,细看有材质碰撞的质感,也有黑色带来的“大气沉稳”。 白色固然干净,论质感,还得深色出击。 至于这吸睛的蓝色小板凳和玄关进入、门洞上这印着“铁头功”的蓝色小贴牌. 一是为了中和黑白灰带来视觉上的“沉闷感”,适当换一换,二是为了方便拿东西,以及提醒高个子的人进入客厅小心碰头,碍于是顶楼承重梁的原因,进入客厅的门洞只有1.9m,小王就曾深受其害。 角落的细脚置物架上,是这几年被他压在箱底的摆件,蛮可爱的。但有一说一,就他俩这情况,收纳肯定不够。 小王同学是这么考虑的,既然想为理想买单,就适度取舍,当下美和质感享受就够了,边生活边添置,把补充带来的“满足感”不断延迟,也没什么不好。







设计亮点
客厅隔壁就是主卧,这个空间,他媳妇做主。 两人都是喜欢交朋友,又需要彼此隐私的性子。按照当前的规划,卧室大多数时间,都属于媳妇,“我只睡觉”。 确定以及肯定的是,女孩子都有个“衣帽间的梦”,她媳妇也不例外。 从面积上看,主卧和隔壁客厅是一样大的,设计师从功能上将空间一分为二,一半给了衣帽区,一半给了睡眠区。 这样设计的好处有两点: 第一,衣帽区+化妆区沿墙而做,且靠着窗边,方便女屋主在自然环境下看自己的装扮,更自然,加上主卧隔壁就是卫生间,动线也不远,出主卧就≈整理好自己了; 第二,女屋主喜欢追剧,但小王喜欢游戏;不论是白天两人分开玩,还是晚上一起追剧,都不冲突,投影仪也不用移来移去,保证了女屋主的局部隐私性。 我测试过了,这种动线布置,在白天不拉窗帘的情况下,投影仪显色度和亮度完全没问题,省去了要拉窗帘的麻烦。 这里有个“交叉需求”的部分。按照原计划,卧室就该按女屋主喜欢的风格来,但小王同学看上了床头金属材质的灯,和女屋主喜欢的“轻法式风”不搭,两人在此稍有分歧。 为此,女屋主做了一点妥协,床头灯可以由小王选,但床由自己选,两人各退一步。 装修中这样的情况不少,对于分工的部分,减少分歧常见的方法是: 硬装、软装部分分别交给一个人主导,另外一个人给意见;或者全程一个人主导,另一个人提前沟通好想要什么,如何实现就别管了。






设计亮点
从主卧出来的隔壁,就是卫生间。 卫生间的位置并没有变化,变化的重点是与次卧连接的这面墙,改了次卧门的朝向,向次卧借了30公分,俯视角度看,做成"S"型,兼顾了卫生间、和次卧两个空间的需求。 朝向卫生间的这面,原来次卧门的位置,打造成“家务区”,上下放置的卡萨帝洗烘套装解决洗衣问题。 朝向次卧的那面,沿墙做一门到顶的收纳柜,收纳面积暴增,未来就算变成儿童房也不怕。(有娃之家最怕收纳) 家政区里面,是卫生间。卫生间一共也就4㎡,用移动的帘子隔开,下有2cm高的挡水条,就有了干湿分离。 干区是马桶和洗手台,湿区是淋浴区。 风格上与整个空间保持了高调一致,墙上用灰色大砖,地上用小的瓷砖。 卫生间门的背后,还有个套娃式的门,这里面是整个楼层的公共下水管,因为是顶楼,这个管买的时候就带个槽,很难用传统的方法遮住,为了后期方便检修。 设计师干脆把这里单独隔开,里面做了两组定制柜,用来弥补卫生间没有收纳位置的缺憾,同时遮住了丑陋的管道和水槽。





设计亮点
从卫生间出来,就是整个家庭的第二个公共核心区,也是需求交叉点。 这部分的分工里,格局和餐厅设计部分,由小王主导;厨房是女屋主的主场,风格按她喜欢的来。 相比于改造前,餐厨空间就是拆了一个门,彻底打开,根本还是为了解决原有小暗厨房的通风、采光问题。 这点我们设计师张琪费了不少心思,拆门只是第一步,第二步就是向次卧借光、借风、还借热,解决方案借用了日式工作区的设计思路。 既然次卧改了门,那就再开个室内窗,窗户一关,次卧独立;窗户一开,次卧的风、光和空调的散热都能直接到达餐厨空间,省钱又省心。 一招,轻松解决[夏天做饭热炸]的需求,实用感拉满。 硬伤解决后,我们来看看餐厨空间的风格和细节点。 厨房在调整后,拥有了II型的收纳空间,厨房到厨房窗边,中间有个配重墙不能拆,中间的部分是家里的杂物存储区。 靠次卧这边是操作台和洗菜区,背后就是老板集成灶加顶置的收纳柜打造的爆炒蒸煮区,最多两步的距离,动线上没啥问题。 为了方便拿东西,设计师张琪建议把冰箱放在餐厨的中心位,不论你拿菜炒菜,还是拿喝的东西,距离差不多,不会有很大的心理负担。




设计亮点
餐厅这边,小王网购了“变形桌”,收起来是方桌,打开是圆桌。虽然日常只有他和媳妇吃饭,但总有朋友来聚,圆桌挤挤能装下6个人,就算是未来有娃,圆桌也不容易磕着捧着。
软装搭配
圆桌顶上,为了和工业风适配,小王特地选购了金属元素极重、且有棱角的吊灯,我没记错的话,这款灯是包豪斯风格的典型代表,用镀铬工艺制作。 餐桌旁边也是他特地网购的印花玻璃餐边柜,里面是两人的餐碗盘叠,上面刚好放出门要收纳的杂物,很方便。稍微有点小bug的是,这个餐边柜门不好开,还有噪音,准备入手的可做参考。


设计亮点
来到最后一个空间,次卧,一眼看上去,空的很。 除了沿墙而做的整面灰色定制柜,就是两台电脑的办公区。小夫妻两一人一个,都有位置。 按照小王的规划,这里故意没做大面积设计,东西也没买全,就是[留给未来的]。 从租房子到两人的婚房,不论是当下暂时的二人世界,还是要迎接不知道什么时候到来的小生命,两人心态上都有了准备,没来,做好自己,来了,重拿责任,不断做加法,爱好也会做出一些妥协。 我很赞同他们的想法,过好当下,也对未来有所期待,落实到设计上,从来都不是一步到位的,设计为人服务,不是被所谓的“设计”牵着鼻子走。 说实话,我采访的每一任屋主都很有自己性格和生活态度,每一个家的设计都承载了他们的理想生活。 与其说我在采访,不如说我在听他们讲故事,故事背后,有蛮多感人的细节,在浓缩的半天一天里,我以旁观者的身份向你们学习、交流,甚至快速参与你们的生活。 我受益匪浅的就是,不管你处于人生的什么状态,什么阶段,[好好生活]最重要。 看的过瘾,就点赞、收藏起来吧~下周六见!
