

装修前
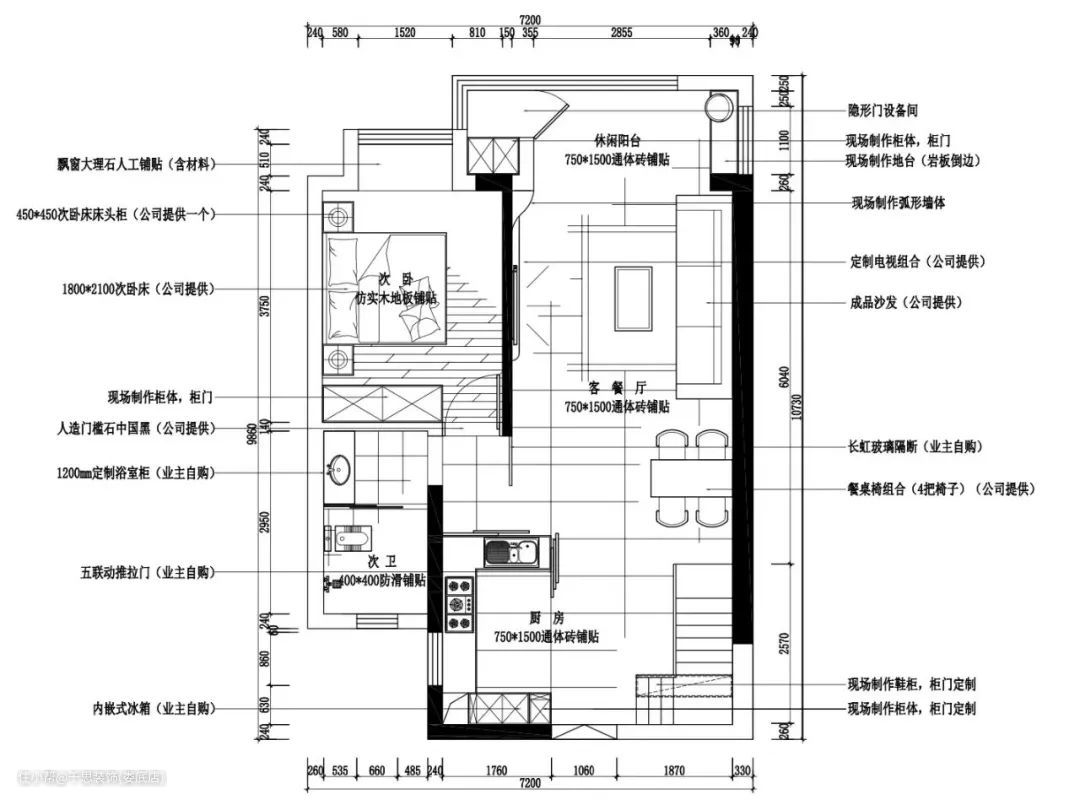
一楼平面布置图:作为主要活动区域,有且仅有一个次卧,客厅纳入休闲阳台,大平层即视感。客餐厅一体化布局,厨房做全透明玻璃房。整体空间格局紧凑,采光俱佳,动静分区。
装修后
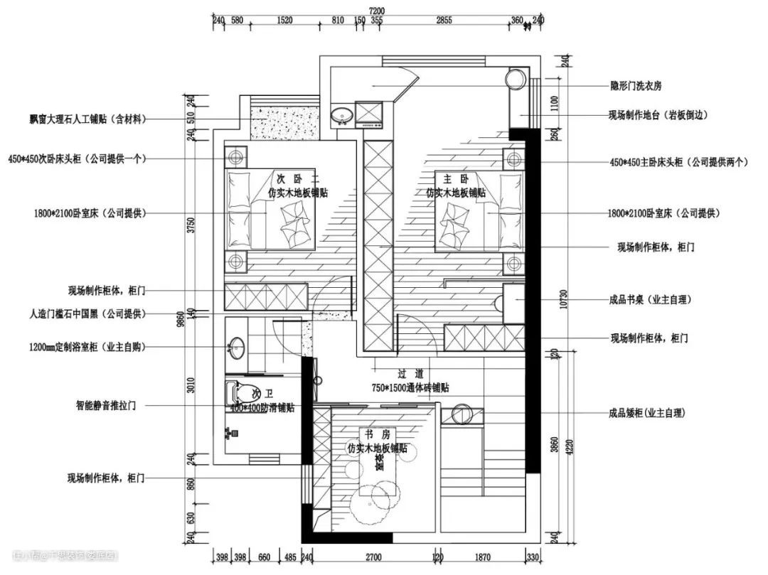
二楼平面布置图:楼梯采用白色扶手+嵌入灯带,自然衔接两个空间,增加整体的通透性。主卧自带洗衣房,并设隐形门隔断,有效利用空间。于楼梯旁,书房做全透明玻璃房设计,一改之前的黑暗压抑,安静舒适的环境。






设计亮点
步入客厅空间,丝绒质地的艺术涂料铺刷整个墙面,营造出古朴清雅的空间氛围。顶面以无主灯照明,删繁就简,体现原生态的质感和纹理。地面铺设600x1200的柔光砖,搭配圆弧形浅色沙发,不失禅意随性。墙、顶、地,乃至沙发皆选用同一低饱和度色系,安静内敛的冷淡风。
软装搭配
挑选亚麻材质的沙发+抱枕,搭配黑白圆几,禅意与简练的碰撞,增添空间层次感。侘寂风更注重事物质朴的内在,能看到生活本质的美。 电视背景墙不对称设计,自由随性的布局,脱于常规的美。壁龛设计,将电视嵌入,上下皆嵌入灯带,氛围感十足,绿植加入,生机盎然。



设计亮点
阳台与客厅打通,落地窗的设计,优化室内采光。墙面弧形层次,在落地灯的渲染下,更显立体精致,凸显层次感,不会显得过于沉闷。
软装搭配
安置一张茶桌,与墙地面一致的素净色调,为空间添几抹禅意雅致。在阳台一侧,杂物间藏匿于隐形门后,视觉上完整连贯,整体统一。


设计亮点
客餐厅一体化布局,餐厅面积有限,将餐桌靠墙而设。T式现代风款式的餐桌椅,其简约干净的线条,予以居住者视觉上的流畅之感。
软装搭配
厨房的开放式玻璃房设计,也是本案一大亮点。讲究功能实用的同时,提升采光,有效隔绝油烟,干净整洁。三餐四季,人间好光景。



设计亮点
玻璃让空间通透、延伸同时,也提升餐厨之间的交互性。采用5大片的玻璃移门,上下轨道滑动,家居美学直抵人心,给予空间呼吸感。厨房内部,L型布局,操作动线合理。木色橱柜搭配白色操作台,沉稳有质感。左侧冰箱内嵌于橱柜中,不占用过多面积,空间利用率高。
软装搭配
客餐厨位于同一空间内,餐厨顶面做木饰面吊顶,与客厅进行区分。电视背景墙左侧设一组玻璃屏风,在后方便是客卫以及次卧空间。

设计亮点
楼梯位于入户右侧,白色扶手+嵌入灯带的设计,在顶部线灯的低色温灯光渲染下,彰显空灵之美。适当留白,以质朴取代奢华。

设计亮点
二楼过道区,作为休息区,地面选择铺设木地板,自然温润的质感,最是抚人心。过道尽头摆放绿植做端景,传递出侘寂风的精髓来。
软装搭配
书房原位置是典型的暗房,所以全透明玻璃房的设计,能优化空间采光。以钢结构+长虹玻璃取代传统白墙+平开门,表达出空间形态。



设计亮点
书房,设以双面超白玻进行围合式设计,营造出大气通透的办公环境。解决了采光的问题,同时也不影响整体的美观,时尚大气高级。
软装搭配
在书房内部,边顶+无主灯布局,延续公区的风格。木色书桌置于中央,安静低调。在书桌后方书柜,黑玻柜门融入,有开有合组合设计。



设计亮点
主卧,整体以素雅柔和为主基调展开,同样的线灯边顶布局,搭配温润的木地板,共同营造出安然静谧的休憩空间。与休闲阳台连通。
软装搭配
选择淡粉色的床品,为素净的空间添一抹温柔。不论是左侧还是床尾,皆定制了衣柜,可满足屋主一年四季的衣物收纳需求,实用性强。


设计亮点
不同于主卧的素雅沉稳,儿童房风格上偏向活泼灵动,意在打造温馨的乐园。保留了飘窗一角,于上方陈设绿植盆栽,为空间注入森意。
软装搭配
简洁温馨的设计,平凡普通,也是港湾与栖息地。灰色床头搭配俏皮可爱的床品,温柔又有力量。床侧定制一排灰色衣柜,满足收纳所需。

设计亮点
卫生间空间,干湿分离,中间以透明玻璃隔断,保证两个空间彼此独立又联系。悬空卫浴柜,不留卫生死角。灯带的使用,增加空间氛围感。
