

装修前
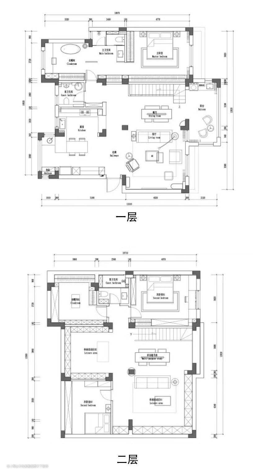
本案是位于成都的一个小区建筑面积200㎡的顶跃户型,是顶层+阁楼的建筑结构。 本案中的女业主,初给人的感觉是非常具有浪漫主义情怀的温柔的公主型,希望自己的房子可以在有充分开阔视野的情况下,营造出温柔并具有摩登时尚感的氛围。 一层原始结构图: 在入户之后,南面的公共空间相对开放度较高,但是北面因为楼梯的存在,显得整体空间相对拥堵,并且南北空间并不能形成很好的视觉串联;楼梯后的房间因为动线的设置位置比较尴尬,导致对自身的区块定位也会比较模糊。 二层原始结构图: 本户型二层其实处于半阁楼空间,两侧顶面都属于坡顶结构,单相对较好的是因为有天窗的关系,所以总体光源采光效果还是比较好的,并不会有拥堵的情况。
装修后
一层平面布置图: 格局方面,因为本身具有两层的可扩展性,而且业主本身也并不需要考虑太多人居住的情况,所以我们在格局方面调整了楼梯的位置和形式,将原本北面的空间和厨房进行串联,设置了简餐区的功能;南面阳台也进行了打通,和餐厅、楼梯形成整体,增加空间内容的情况下扩展空间视野;而卧室区域进行了套房的设计,将主人的主体活动区域确定在了动线相对便利的一层。 二层平面布置图: 本案中二层的定位更偏向于增值功能空间的扩展,而本身的顶面结构也让我们更趋向于开阔视野的设计,依据本身的建筑结构进行简单的视线分割;功能方面我们进行了书房、休闲起居空间以及运动区的设置;同时添加了客房以及衣帽间的扩展功能。





设计亮点
本案是在提升空间感的前提下,运用简单的硬装造型和氛围来塑造底色,以多种形式色彩以及材质的家居产品来搭配出整体的空间氛围。 客厅在部分墙面采用了木质框线护墙和具有肌理变化的艺术涂料,可以使整体的格调更具质感。 主灯和落地灯相辅相成,空间的层次感更佳,角落的壁炉可以提升空间的温度,让客厅空气看起来更加高级温馨。 客厅做落地窗为室内带来充足的采光,用一层白纱过滤自然光线,就像全屋都被附上了一层滤镜,温柔而美好。


设计亮点
楼梯扶手采用的是钢板包裹石膏板的制作方式,并没有进行很平整的设计,略带弧度的线条和涂料可以搭配出更有自然气息的感觉。餐厅与客厅保持互通,没有设仁和阻挡扩大了空间的采光面,让客餐厅不仅实现了全屋的通透也让空间动线更加流畅让功能区之间的互动性更高。 圆弧形餐桌搭配很有质感的皮质餐椅,让空间焕发生机。




设计亮点
这里是客厅面向简餐区的视角,为了便于卫生的清洁,厨房区域还是考虑采用了更好搭理的瓷砖饰面。银色的冰箱在空间中并不会显得非常突兀,西厨区可以很好的和简餐区合并在一起。橱柜的柜门统一采用了奶白色的框线造型,承重墙则进行了立柱的美化设计,视觉效果上相呼应,造就了空间的完整。厨房还定制了一整面墙的柜子,蹭饭了不同的储物功能可以让厨房更加的整洁。





设计亮点
主卧统一的柜门设计可以营造出木质护墙的效果,“红色属于时尚界的女王”,这里配备了Versace的美杜莎床。两扇玻璃柜门内是次脏衣的挂衣区,空间分布井井有条。红色的烤漆木饰面搭配阵列的框线,因为有相对较大的床靠打底,所以也不用担心因为色度过多而产生的压抑感。走廊的一侧是衣帽间+卫生间的合并格局。


设计亮点
卫生间干湿分离将浴室柜外置,既保证了空间的隐私也最大程度了实现了空间的开放和头图,功能分区,实用性更高。卫生间依旧是具有时尚感的红色装饰面,搭配细节的阵列线条排列,金色不锈钢的壁龛以及细节的边框和龙头,搭配深色岩板的洗漱台,营造精致的轻奢质感。这里的框线起到的作用在设计元素的延伸之外,可以带来更好的仪式感。
