

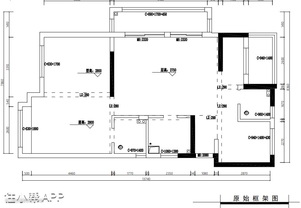
装修前
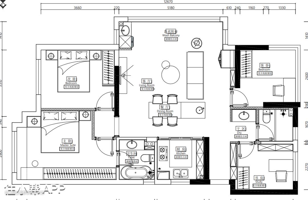
复古的软装,隽永的色调,全屋南洋民国时期的风格主调,像老唱片里轻吟慢哼,慵懒摩登的艺术腔调,爬上空气中的每一个分子。原来客厅过小,无法满足客厅餐厅以及吧台的需求,所以把阳台直接打通包进客厅。阳台多种花砖拼接,引春入屋,步步生花。



设计亮点
原来客厅过小,无法满足客厅餐厅以及吧台的需求,所以把阳台直接打通包进客厅。阳台多种花砖拼接,引春入屋,步步生花。
软装搭配
复古的软装,隽永的色调,全屋南洋民国时期的风格主调,像老唱片里轻吟慢哼,慵懒摩登的艺术腔调,爬上空气中的每一个分子。胡桃木浓郁的复古气息,碰撞焦糖色软装。大胆浓烈的色彩,简约而细腻的线条,足够温暖,足够治愈。


设计亮点
把餐桌和吧台一字摆放,让餐桌吧台成为客厅的中心点,可以满足厨房做饭的补充功能,又能满足平时客厅日常饮水的功能。多功能餐岛一体,实木材质搭配精巧细节构造,打造协作型社交中心,高低交融的新空间格局。过道是民国风的护墙,表面黑色开放漆,圆弧包边,与墙面艺术涂料对比鲜明,带来岁月沉淀的安全感。
软装搭配
较深的颜色更容易显现高级与品质,胡桃木餐边收纳柜,长虹玻璃防尘盖自带朦胧滤镜,防倾倒斜立面重心后移稳稳当当,复古镀铜脚套精致到细节处。配上几何元素装饰画,满满的艺术家气息。

设计亮点
U型厨房布局增加了台面空间,两边的长虹玻璃,颜值与实用并存。


设计亮点
主卧面积偏小,常规做法会使主卫门对床,所以设计中把过道门改成对开,增加了客厅的过道背景,让客厅空间多了点睛之笔。主卧床朝向更换,于是在现有空间的基础上,就增加出主卧一整面的收纳柜以及梳妆台,将利用率达到最高。
软装搭配
床背景用石膏板制作造型,表面用艺术涂料使其富有层次感,光源从内而外散发,极致优雅。


设计亮点
温柔韵味的次卧,奶杏色为主基调,阳光透过窗户映照进来,像给卧室打上了时光滤镜,电影感氛围满满。
软装搭配
胡桃木木质家具和星球吊灯,不经意间流露出来的“小心机”点缀着这电影版的画面。在这样的卧室里,你会睡到几点起?


设计亮点
橄榄绿拼花砖墙的森系感,仿佛走进了绿野仙踪般唯美的童话世界。黑色浴室柜金色把手细节,和复古金边镜子,把复古氛围拿捏住。
