






装修前
大女儿上小学,小儿子马上步入幼儿园,周先生一家想趁此机会搬到周围都是名校的新家居住。“我们两个理想中的家,首先就是希望家可以明亮点,因为是二楼,采光不是很好。其次因为是两个孩子的家庭,做饭,洗手,饭洒了,玩具书本搞得到处都是每天都在上演,在之前的家里,孩子妈妈每天在厨房、餐厅、卫生间的洗手池来回奔波,精疲力尽。所以希望能设计出比较合适的动线,解决这个的苦恼。最后希望能设计一间集储物和睡觉的房间,方便父母偶尔来带娃小住。” 充分了解了周先生一家的需求后,我们便以餐厨为设计出发点,逐步呈现出了这个留白简约的四口之家。因为已为人父母,我们认为当父母与子女两代人,甚至三代人住在一起时,彼此都会希望自己可以拥有独立的房间,但又希望有些房间可以相邻。比如我们把小儿子的房间设计在了主卧的旁边,小儿子晚上需要被照顾的时候肯定是最多的,把大女儿的房间设置在了离主卧稍远的房间保护她的隐私,但是紧挨次卫盥洗台,成长中的女孩以后肯定会经常用到次卫的镜子来臭美打扮。把互动空间置于客餐厅、女儿和儿子房中间形成一个汇聚的中心点,营造出一个彼此联系,又能互相尊重隐私的空间。
装修后
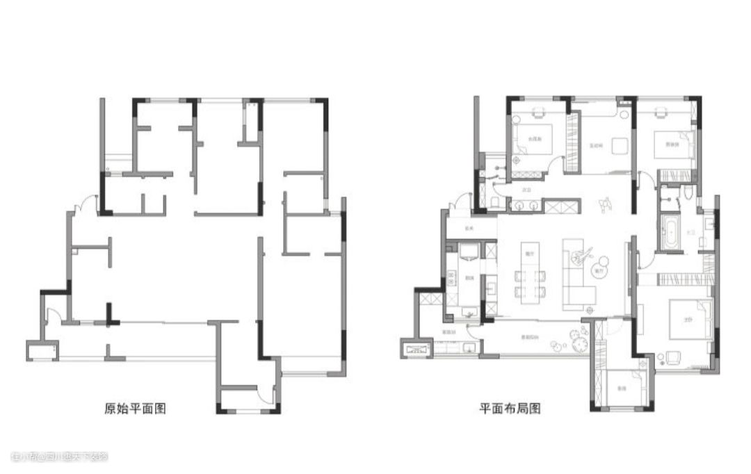
原始户型被分隔的比较零碎,厨房狭窄,两个赠送的小露台和一个设备平台占用了很多面积。三个卫生间面积都比较小,不方便使用。五个房间不匹配周先生一家只要四室的需求。 在改造布局的过程中,我们尝试了很多种方案,最终确定的这版更适合周先生一家:一个位于主动线上的互动空间,置于比较不起眼位置的客房兼储物间,留出的阳台可以让女主人种种花草,也方便周先生在阳台抽烟不影响孩子健康成长。中厨+西厨的配置不仅方便年轻人使用,更符合川渝中老年人的使用习惯。四分离式的主卫更加便于打扫卫生,彻底实现干湿分离。









设计亮点
因为是位于二楼的房子,采光不是很好,所以整个空间以白色为主,用少量的灰黑色和木色加以点缀,让整个空间有可以沉静下去的气质。 电视采用了目前比较受大众喜爱的嵌入式设计,虽然全是白色,但是我们通过凹凸及隔栅板使其更有立体感,简单的白色落地电视柜美观储物两不误。 主动线尽头是一个门洞,左右两边分别通往儿子房和主卧,尽头墙面悬挂了一副尺寸较小的机理感装饰画,引导视线,丰富纯白空间的视觉感受。 因为不封阳台进室内,原始的大滑门我们进行了保留,后期加装了一扇纱窗防蚊。配合客卧的隐形门,我们增加了一整面护墙板,等分的分割设计,让隐形门更加隐形。竖百叶和护墙板形成了线面的组合,更加具有设计感。 隐形门打开,里面就是客卧,开放与隐秘并存,平时只有父母与孩子居住时此门常关,可以当作储物间。老人过来居住时,门可以保持常开,这间卧室进门有一个缓冲空间,这样门开着时可以遮挡一部分视线。 竖百叶的序列感很强,很有设计感,光线穿过缝隙透进来,氛围感拉满。一般我们会设计在客厅和公共区域配合电动智能功能使用,卧室儿童房就不建议了,遮光和使用感都会差一些。







设计亮点
LDK布局我认为最大的优点就是互动性强,比较适合多口家庭,中间是LDK,四面八方安排各种功能的空间,女主人在做饭,男主人在看电视,小孩子们在玩耍,互不影响又能互相看到对方。 因为老人偶尔回来住,我们根据多方的需求,设计了一个可全封闭的中厨和一个有水槽的西厨,不仅满足川渝中老年的饮食习惯,也满足现在年轻人的生活习惯。特别是对于女主人而言,多一个随时可以给孩子洗手,洗水果,做点心的地方是如此重要。 把原先客厅的中间零散的墙体重新建造,利用进退关系做了一面嵌入式的储物柜,强弱电箱和日常客厅的杂物都可以放在里面,让整个空间保持干净整洁。 进入中厨的门和整个西厨柜结合在了一起,用一扇长虹玻璃滑门隔开,滑门在左边中厨就会完全封闭,露出展示柜,滑向右边可以封闭展示柜,露出厨房入口。一举两得不占地方的设计巧思。#西厨 #餐边柜 #玄关 岛台和餐桌选择了一体设计,岛台部分一边是开放格,一边是储物柜。因为西厨柜结构比较复杂,所以没有设计高低错落的岛台,让视觉减负,也可以在偶尔必须多人就餐时避免高台不好用的尴尬。 餐边定制柜集成了直饮水机,烤箱,水槽等功能。在美观方面,我们增加了一块无限连纹的大理石瓷砖,不仅高档大气,而且抗污易清洁。黑白对比色用木色的加以点缀,是比较能提升气质的色彩搭配。岩板餐桌搭配定制的透明亚克力桌腿,让本来就很薄的岩板仿佛悬浮于空中,增加了整个空间的通透感。



设计亮点
中厨选择了中性色系搭配白色吊柜,冰箱,烟机灶,水槽应有尽有,方便使用的同时也要符合整屋的设计调性。 中厨设计了高低台,减轻洗碗的负担。









设计亮点
主卧同样延续了白色为主的基调。配以隔栅板,木饰面增强纹理和质感。卧室最主要的用途就是提供休息的环境,让人睡的舒服,醒来也感觉愉快。简单宁静的色调必不可少。床头上方安装了间接照明,开启后墙面上漫反射出淡淡的光线,营造出能放松身心的空间。利用衣柜将卧室和卫生间分隔开,打造出一间衣帽间。衣柜朝向卧室这面用不能开启的假柜门装饰.主卧床头利用进退关系设计了一个特别的造型,凹处安装上精致的小壁灯,定制了尺寸刚好合适的床头柜,释放了部分空间。 我们利用打不掉的上飘窗做了一个窗框,以块体来增强空间的层次和结构感,木饰面材质施工步骤简单并且出效果。窗帘是现场比对着木饰面颜色选出来的,如果能现场选的尽量现场选,不容易翻车,效果好。 在主卧放置了一把名椅,柯布西耶LC1扶手椅。不锈钢材质和餐椅呼应,黑色皮面点缀空间,极富设计感的造型提升了整个空间的气质。 主卧房门进来之后,我们又设计了一个木饰面包裹的门洞和玄关同款灯带,让回房睡觉有一个情绪的缓冲,也使主卧更加私密。 衣帽间全部都是玻璃柜门,增加狭窄空间的通透感,左边那扇是通往主卫的吊滑门,不做平开门是为了避免开门遮挡盥洗台台面。




设计亮点
女儿房以粉色调为主,完全符合大女儿的喜好,大女儿喜欢弹琴画画,所以我们定制了一幅手绘色块元素的壁纸,让空间更具艺术感。粉色云朵形状的床也是大女儿自己挑选的。 书桌内部打了钢架,更加稳固。衣柜在床尾,利用墙面凹凸嵌入了衣柜,比普通布局那种做在床边的衣柜储物更多也好用,满足女孩子衣服越来越多的要求。 另一边设计了书架和储物柜一体的定制柜。因为书架只需要350mm的深度,所以会给床的两边留出更宽裕的空间。多种深度的储物柜也可以满足不同的储物需求,比如这种深度比较浅的柜子可以放置一些叠放衣物。 粉色的新月吊灯来自艾舍人,新月通过旋转的动态结构,描述这一份更贴近生活本质的美。两种不同形态的月亮,以各种旋角组构出无限的视觉想象。




设计亮点
儿子房和女儿房正相反,选择了冷色调来搭配,更适合男孩子,灰色有星星图案的壁纸承载了父母的爱与希望。背板和床头柜定制之前,选购好喜欢的儿童床箱,根据床箱的精确尺寸预留空间不容易出错。 当客户选择定制化设计服务时,房子便会增加诸多可能性。我们在白色的盒子里嵌入了木色的书架,书架与书桌连在了一起,在实用的前提下努力做出一点变化,让设计更有价值。 我们在很多地方用了相同的材料,若不能展现其奢华之感,就会让人感觉死板。只要能充分利用每个区域的空间,便可营造出紧凑精致的室内氛围。 如果靠窗有地台、书桌等功能性的设计,使用日夜帘或者香格里拉帘会是不错的选择,因为是上下拉起不占地方,也不会堆叠显得臃肿。






设计亮点
次卫配置了双台盆,尽量使四口之家或者偶尔有老人来住的时候用起来方便,台面高度750mm,设计了在小孩成长期间符合他们身高的高度。旁边有一个三层的不锈钢壁龛,可以放洗漱用品,帮助保持台面干净整洁。 台盆和马桶与淋浴间分开设计,在同时使用时可以互不打扰,我们在马桶旁边设计了下面悬空的储物柜,因为女主人考虑以后会养小猫咪,希望有一个放猫砂盆的地方。 主卫四分离式设计,配置了杜邦可丽耐一体式台盆,嵌入式龙头,嵌入式浴缸,智能马桶和淋浴间。 主卫台盆台面加长,融入了化妆台的功能,女主人平日起床很早,她不希望打扰到周先生,所以我们便把化妆台放在了主卫里面,早上起来一气呵成,周先生也能美美的睡个懒觉。 嵌入式浴缸没有卫生死角,方便打扫卫生,用黑白根大理石做了一个小台子,可以放置沐浴用品,香薰蜡烛等。
