
装修前
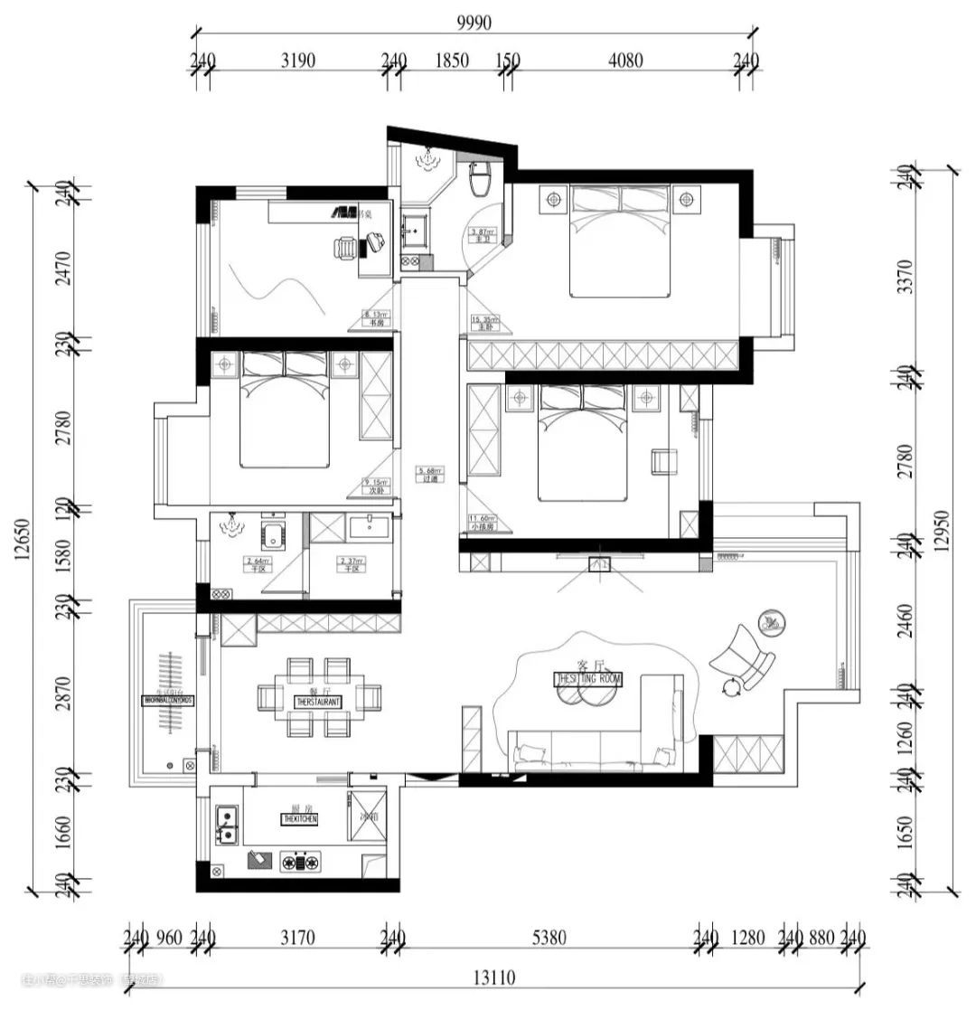
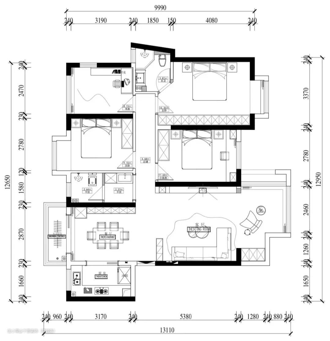
户型图解析:建筑面积130㎡,设四居室。南进门入户,直见客餐厅,无独立玄关区。客餐厅一体化布局,双阳台的设计,可实现空气对流。公区与私区分离,空间整体格局布局紧凑合理。将客卫干区外移,打造清爽实用的卫浴空间。


设计亮点
入户直见厅,无独立玄关区。于左手边定制矮柜,满足日常收纳的同时,亦能与客厅保持界限。背景墙以奶白色粉刷,延伸至沙发区。
软装搭配
从玄关看向整个公区,温柔奶白色贯穿全屋。客餐厅一体化布局,仅以过道划分彼此,搭配顶面无主灯布局,营造出简洁清爽的氛围。




设计亮点
将原阳台暗间拆除后,直接打通纳入客厅,带着暖意的阳光从外倾洒而来,尽显通透自然。浅色哑光地砖铺满至整个公区,温柔徐徐而至。背景墙以奶白色粉刷,搭配纯白木饰面,增添空间质感。于纯白木饰面上设计壁龛,内嵌灯条,在格栅纹理的映衬下,简洁却不显单调。
软装搭配
小巧精致的圆几,呈高低错落摆放,线条干净利落,彰显简约风的魅力。在客厅与玄关交织处,以原木矮柜做衔接,为空间注入温润感。在现代风格中,除了硬装的干净简洁外,家居氛围感的营造也十分重要,选择一些花束,杂志等清新的家居摆件,提升居住者的幸福感。



设计亮点
从过道看向整个客厅区,客厅与阳台直接连通,中间采用拱形垭口,视觉上更显生动优雅,于现代风格中融入法式元素,空间更具艺术感。
软装搭配
在拱形垭口之后,是一方收纳区,定制一组开放格+封闭柜组合的收纳柜,满足屋主多功能的收纳需求。白色+奶茶色窗帘,灵动清新。




设计亮点
餐厅空间,整体上延续客厅的设计,仍以奶白色+木元素构建,三段式的色彩搭配,不易产生视觉疲劳。挑选极简的岩板餐桌置于中央。 橙灰跳色的餐椅亮丽活泼,辅以干花、绿植装点,营造浪漫优雅的用餐环境。在整体布局上,以最大化的空间陈列上适宜的家居配饰。
软装搭配
餐桌后方定制了一整墙的餐边柜,白木配色温柔耐看。于柜体中选择镂空设计,留有插座并内嵌灯带,予以居住者惬意悠闲的居家体验。

设计亮点
餐厨两者毗邻,以长虹玻璃滑轨门隔断。厨房内部,L型布局,洗切炒动线一气呵成。浅色吊柜搭配木色地柜,并以浅色瓷砖上墙。


设计亮点
客卫将干区外移,位于过道端口,既提升了颜值又优化了采光。过道大白墙的设计,简洁干净,实用性强,简约风中更注重线条感。
软装搭配
卫浴柜旁安置小型嵌入式洗衣机,空间最大化利用。上方白色吊柜与镜柜并排。顶面极简的无主灯布局,简洁不显累赘,提升幸福感。


设计亮点
茶室,设计上遵循“实用简约”的理念,更为注重空间的开阔性,双面落地窗的设计,优化采光。慢品人间烟火色,闲观万事岁月长。
软装搭配
在都市的繁忙里,也需要一隅茶室,来平息内心的焦躁。仅一张茶桌并成空间全部,运用留白手法,素雅的配色,打造简雅高级的格调。



设计亮点
主卧,整体上遵循素雅大气的格调,背景墙以奶茶色填充,在棕色绒布床头的呼应下,两者相辅相成,共同营造出安然静谧的氛围。
软装搭配
定制白色入户门,纯粹治愈,在浅色系构建的空间内,搭配白棕混搭的床品,予以居住者舒适的视觉体验。地面铺设灰色地砖,与公区一致。



设计亮点
儿童房,不似主卧的清冷素雅,浅蓝的加入,调和出灵动清新感。背景墙与仍以纯色填充,留白手法的运用,留给孩子自由发挥的空间。
软装搭配
俏皮灵动的蓝色床品,搭配奶茶色床头,是专属孩子的小乐园,自在幸福。床侧定制一排通顶衣柜,白色柜体+极简拉手,足够包容静谧。
