

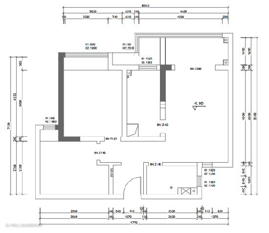
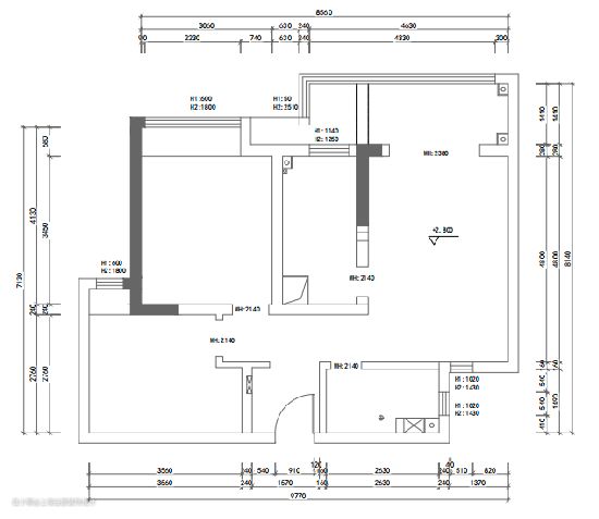
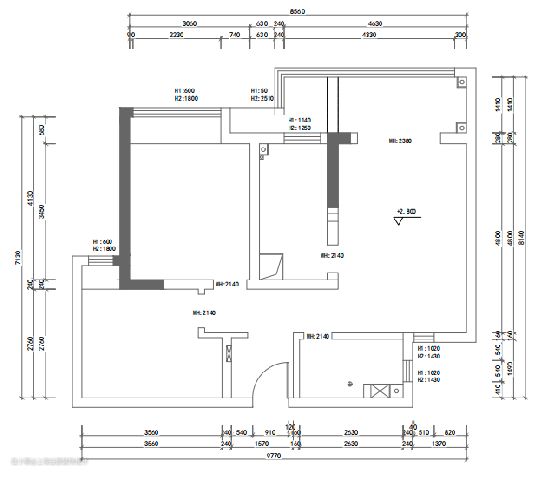
装修前
本期分享的屋主是一位从事自由职业,生活风格简洁利落,日常对于饮食颇有研究,爱好在周末休息日做上一桌佳肴静静享用,将生活经营得充实而有趣味,本套主要用于居住的公寓整体设计风格契合了屋主的偏好,大胆的对房屋进行了采光改良,硬朗的直线条在家中随处可见,时刻彰显着主人的利落与干脆。 灵感源于密斯·凡德罗的空间美学,传递细腻的艺术美感 秉持“少即是多”的设计哲学,给居者带来唯美的生活享受 本案整体以象牙白和暖米色作为主色调,金色和棕色为房间增添贵气精致,小面积的运用在桌椅等家具上,设计上做有效减法,用隐框门设计让墙面视觉效果整洁统一,增加视觉通透感,描摹着屋主心中理想居所的模样,每一帧设计,都源于对生活的热爱以及居者生活习惯的需求,在喧闹的都市中,找到自己的舒适与自在。
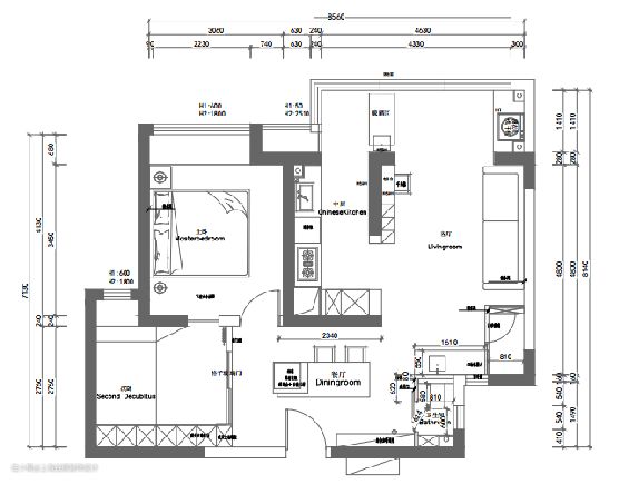
装修后
屋主诉求: 1.玄关光线昏暗,对采光极其不满意 2.餐厅与客厅之间没有隔断,逼仄拥挤 3.希望能增加一个有设计感的岛台 户型改造: 1.由于厨房与玄关在同一空间,因此增加了一个岛台,与餐桌相连,对墙面进行挖空设计增加采光,玄关墙面做半腰高落地收纳柜,既改良采光,又增加了收纳 2.用半墙做隔断,重新划分住宅功能分区 3.整改厨房动线,房间一分为二,直线型操作台和直线型活动区域完美契合屋主要求,在视觉上也更显宽阔 4.原户型进门便能看见浴室门,因此此次采用了隐框门,更有隐私,提升生活舒适度






设计亮点
墙面使用浅褐色,配上沙发的暖米色,迷你的褐色花纹和棕金色靠枕,显得既干净又不失时尚感,旁边造型利落的金色落地灯,和地上铺设的几何型羊绒地毯,相互碰撞出个性时尚的艺术气息。
软装搭配
充分考虑屋主的职业特色,去掉了传统的电视柜,取而代之的是IT从业者必备的电脑工作台,台面下方做镂空设计,做成两层的书架,千鸟格纹的靠背椅,以增加这一温馨空间的设计感。 将阳台的洗晒空间合理规避,洗手盆和洗衣机隐到承重墙和柜体后面,从客厅望去不可见,更加美观,同时用轻盈的白色纱帘作为窗帘,保证采光又有隐私性,空间格调统一美观,视野更通透,给人大气愉悦的家居享受。





设计亮点
厨房与玄关相连通,进门处考虑到入户的隐私和美观,用精致的墨绿大理石纹岛台与餐桌做衔接,上置写意的插花与黄色吊灯,像一幅画般给整个空间带去诗意与雅致, 同时浴室采用隐框门,避免了尴尬,提升生活的舒适度。
软装搭配
玄关侧用半腰高的橱柜做收纳,上半部分采用浅灰大理石纹作为墙贴,中和了空间的单调,满足主人的储物需求,弥散出着高级质感。



设计亮点
黑白经典配色橱柜,耐看而不易过时,目光所到之处,皆为收纳,充分利用家居空间,完美划分烹饪、切洗、烘培、冷储、储物功能区,丰富的收纳柜,物品摆放更整齐,让居者快速找到物品,享受到厨房的乐趣。
软装搭配
橱柜和操作台做直线型设计之外,余下的空间全部作为活动区域,宽敞舒适,让备餐更加愉悦。


设计亮点
卧室同样考虑隐私性和美观采用隐框门,同时与次卧进行隔断,提升了次卧的采光,以象牙白作为主色,宽大的飘窗让阳光充分铺在床上,温暖而安逸。
软装搭配
橘色台灯增添了整个空间的动感与活泼,凸显时尚家居氛围,更符合现代年轻屋主的审美。

设计亮点
次卧墙面是实用的落地式衣柜,床头的高度做嵌入式挖空设计,将精致与个性实用融为一体,舒适的榻榻米设计搭配绿色和淡粉的抱枕,为居者打造宁静温暖的舒睡空间。



设计亮点
金边隐框门,简约而有格调,几何水滴形镜子与窄窄的百叶窗、低矮的盆栽上开着白色花朵,房间的一角,竟有清新的秘密空间,洗漱台下方是收纳筐,便于主人随手放置用品。
