设计亮点


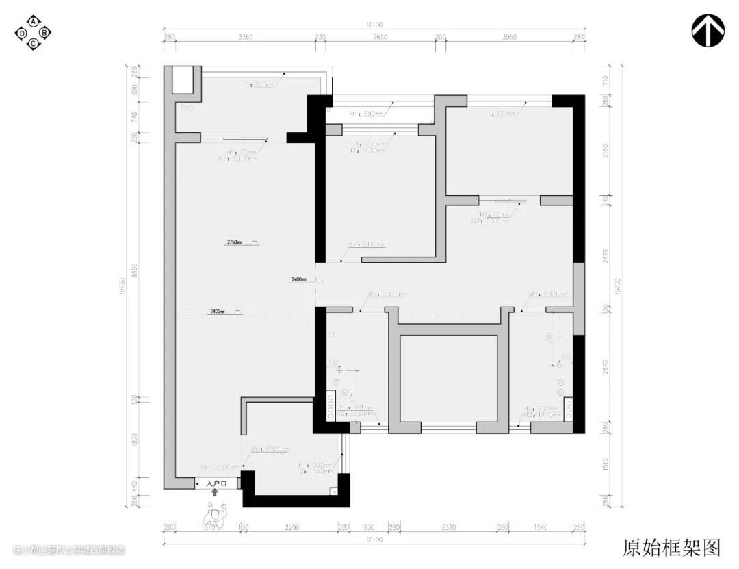
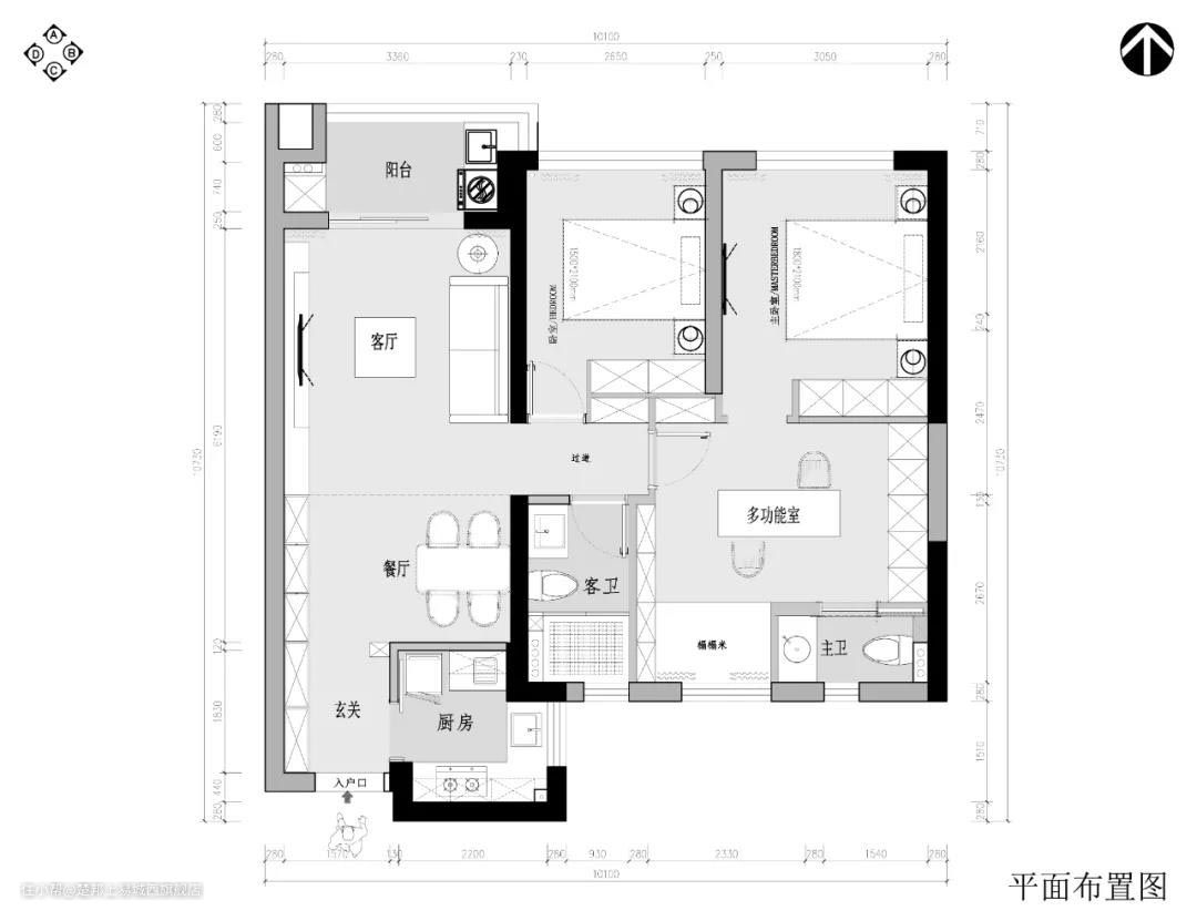
这是一套89㎡的小三居,屋主是刚结婚的90后夫妻,这套房子承载他们对未来生活的无限可能,房子面积虽然不太,但好在户型方正。设计师化零为整,将空间较为零散的部分重新整合,兼具功能性和美观性,将收纳做到极致。
客厅





入户后来到客厅,无主灯的室内设计符合年轻人的审美,白色墙面、大理石地面,搭配黑色皮质沙发,与屋主沉稳低调的气质十分符合。视线延伸至沙发后,沙发上的艺术画与地面颜色交相辉映,营造出静谧美好的氛围,设计美感扑面而来。
餐厅




餐厅以原木色和纯白色为主,是整屋中最浪漫的一角,这个地方承载着屋主二人的三餐四季,在这里,两个恩爱的人,可以一起享受美食,感受温馨的氛围,交流彼此的心情,享受生活的美好。餐桌右侧的玄关柜,一柜两用,也可以作为餐边柜,收纳进餐所需的小物件。
厨房


厨房临近餐厅,烹饪、进餐动线短。空间整体以净白色为主,设计嵌入式电器,节省空间的同时,也大大增加了储物收纳空间。
主卧



卧室地面通铺原木地板,白色嵌入式衣柜,与米色床头、雾霾灰色背景墙、蓝白窗帘搭配在一起,整体视觉和谐又简约,营造出安静、放松的睡眠氛围。
卫生间


卫生间采用干湿分离设计,黑色浴室柜搭配白色墙砖,简约又不失高级。超宽盥洗台,提高了洗漱体验,也更能满足主人的日常生活需要。
