

装修前
一楼平面布局图:建筑面积158㎡的复式,一楼主要作为活动区。南进门入户,直见客厅区,玄关与厨房毗邻而设。大横厅的户型,开阔明朗,客厅纳入休闲阳台,优化室内采光。
装修后
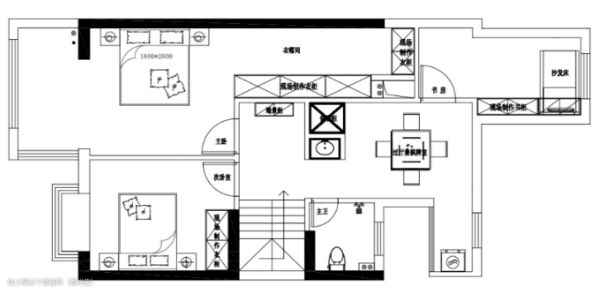
二楼平面布局图:于二楼过道区,拆除主卫,设棋牌室,营造出惬意悠闲的生活雅趣。设三居室,除主卧、次卧外,书房偏安一隅,立于西南角,打造安静的冥想空间。

设计亮点
南进门入户,玄关区狭长,于左侧定制一组木色鞋柜,底部预留20公分并嵌入灯带,收纳更为便利。中部留空,黑色面板耐脏易打理。
软装搭配
右侧大白墙,安装一排不规则挂衣架,出门拿取衣物十分方便。灰色哑光大砖,搭配顶面极简无主灯布局,一开始奠定了简约清爽的基调。






设计亮点
视线深入,大气通透的客餐区印入眼帘。通铺600x1200的哑光灰大砖,顶面简洁的无主灯布局,不压层高,扩大空间感,丰富空间层次感。大横厅的户型,视觉上增大客厅面积,设计更有灵活性,没有过道,可提高空间利用率。客餐厅一体化布局,纳入阳台区,优化室内采光。
软装搭配
将原有一个卧室敲掉,改成如今客餐厅区域,以沙发做自然隔断。由磁吸轨道灯+筒灯+氛围灯组合而成的无主灯布局,清爽不压抑。 阳台自然纳入,拱形垭口右端与电视背景墙石膏板衔接,连贯统一。L型沙发搭配黑色茶几,成半包围布局,营造舒适惬意的人居氛围。


设计亮点
餐厅由原始卧室拆改而成,与客厅连通,构筑成大横厅的户型,动线流畅,开阔明朗。后方定制一组卡其灰色+夏洛特黑色的餐边柜,现代风的配色简约大方。封闭柜门+玻璃展示柜+开放格的组合形式,满足多功能收纳。
软装搭配
中性灰的餐桌椅立于中央,挑选白色岩板餐桌,用色纯粹舒适,质感十足。保留了原始飘窗,铺上飘窗垫,打造安静一隅,也是赏景区。


设计亮点
厨房,以推拉门与外做隔断。厨房内部,U型布局,以三面墙做依托,呈半包围结构,不留卫生死角。地面铺上灰色地砖,大气沉稳舒适。
软装搭配
橱柜选择上浅下深搭配原则,白色吊柜搭配深色地柜,给予烹饪者舒适的视觉体验,简洁雅致。以白色瓷砖上墙,与白色橱柜连接呼应。


设计亮点
楼梯,位于厨房与客餐厅交接处。开放式客餐厅布局,让空间归整,使得整体开放、流通。顶面无主灯布局,增加视觉层次与氛围感.
软装搭配
将原始主卫敲掉,打造悠闲惬意的过厅区,兼棋牌室,闲时可邀上三五好友,找寻都市中的愉悦时光。生活不止诗与远方,亦在当下。



设计亮点
主卧,以不同明度的灰作为空间主基调。阳台区亦做弧形垭口,与客厅呼应。灰色地砖清爽耐看,搭配香芋紫的床品,为空间增添温柔感。不规则吊灯左右对称布局,设计感十足。一侧以灰色乳胶漆填充,打破常规,丰富空间层次感。睡前点上屋主喜欢的香薰,又是一场好梦。
软装搭配
于床右端尽头,便是步入式衣帽间,将原始主卫拆除而成。纳入阳台后,光线在这方寸之地自然流转,营造卧室空间的平静与惬意氛围。 衣帽间内部,定制L型大体量衣柜,一柜到顶设计,卡其色柜门+黑色拉手,搭配极简的无主灯布局,强化空间的立体感与收纳功能。


设计亮点
次卧,不同于主卧的沉稳素雅,浅湖蓝格纹床品的加入,添一抹清新灵动。保留了原始飘窗,养一些绿植花卉,给生活添点闲情雅趣。
软装搭配
作为客房使用,对收纳要求不高,故将衣柜设计成推拉门,不占用过道空间,遵循【简洁实用】的设计理念,彰显现代风格的设计元素。

设计亮点
卫生间的设计简而不凡,墙地砖一体布局,增强空间的整体性。仍以灰色为主色调展开,黑白的加入,营造清爽简洁的卫浴环境。
