
这是属于二人世界的幸福之家,90后的小夫妻对生活充满了期待与热爱,他们希望家是舒适的、自由的、明亮的、好住的,装修应以实用功能性为第一考虑要素,风格是次要的。 而原本的这个家居空间,方正的户型每个空间过于独立且分配不合理,让原本采光很好南北通透的房子出现昏暗闭塞的压抑感。 因此,我们经过和业主们的深入沟通后,决定将格局和动线重新规划,释放出更多的可利用空间,同时解决房子的基础户型问题。满足业主对功能性需求的同时,将新家改造成一个舒适自由的空间,让新家与业主的生活完美契合,也让空间能呼吸、有气质。



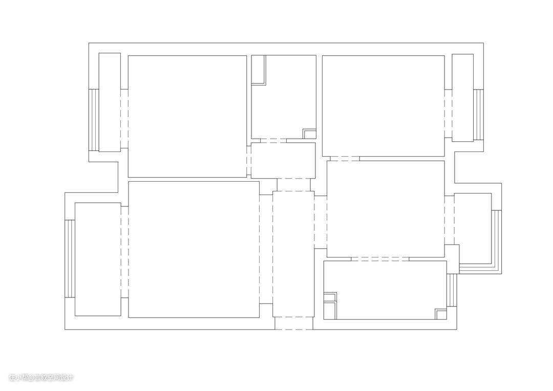
这是一个二手房改造项目,原本的格局各个空间太过独立闭塞,玄关过道冗长,整体的中部采光很差,不够通透。因此,我们根据业主的需求进行了比较大的格局调整。 【调整细节】 · 玄关: 取消狭长的独立玄关,改为开放式玄关,入户两侧做柜子解决收纳问题。靠近客厅一侧选择矮柜,桌面可以做储物和装饰,下柜可以收纳鞋子。同时不阻挡光线。另一侧墙面嵌平定制柜,做衣物收纳。 · 客厅: 取消原来的折叠推拉门,将客厅整体释放出来,与餐厅、厨房联通。客厅阳台墙面做加长处理,打造阳台办公区。 · 厨房: 将原本狭长的封闭式厨房改为开放式厨房,与餐厅空间联通,做餐厨互联,增加整体空间的通透性。开放后的空间有更多的实用性。 · 卫生间: 洗漱台外置,原本的卫生间较小,使用感较差,我们选择将洗漱区外置,然后内退卫浴空间。这样既能实现干湿分离,同时还满足多人同时使用的需求。 · 主卧: 平移主卧入户门,合理安排转角空间,优化生活动线。 · 次卧儿童房: 次卧空间留作儿童房,由于餐厅空间做西厨餐边柜,于是将儿童房的入户门改为靠近生活阳台,并采用隐形门设计手法,减少墙面的视觉凌乱感。让整体空间更加规整舒适。



设计亮点
一进门玄关是一个开放的空间,极简入户,动线流畅,注重细节。 原本玄关是狭长的独立过道,使得室内采光夭折,客厅采光不能直达餐厨区,空间被玄关过道切分成两部分,不够通透且显得空间小气昏暗。 因此我们首先做的就是取消中间的独立玄关过道,让室内整体联动,不再孤立。取消独立玄关后我们用鞋柜做隔断,做到玄关与客厅断而透的格局分割。鞋柜特意底部留出常用放鞋区,转角亚克力展示柜珍藏业主的收藏款潮鞋。桌面随手放置钥匙非常方便,还能摆放一些装饰品。 玄关与厨房之间的侧墙我们做了嵌入式双面柜+餐边柜,玄关侧是衣柜储物,厨房侧是设备间。餐桌下方则是杂物储物。一体设计简约实用。 对开门衣柜选用按压式开启方式,储物更便捷。






设计亮点
原本的客厅被一道折叠门分割成一个相对独立的空间。既阻挡了南北的通风和采光,也让空间显得狭小昏暗。对于只有两人生活的家庭来说,自由联动的空间才是更舒适的。 因此,我们化繁为简,去掉隔断门,将客、餐、厨一体式设计,形成流畅自由的生活动线。打开后的客厅以浅色系为主,顶白墙浅地灰的经典组合,保证视觉舒适减少疲惫感,经久耐看。 客厅吊顶算是我们这个项目中比较复杂的设计点,原房高2.55米并不是很高,实现无主灯设计就要考虑到如何控制吊顶高度。 我们最终采用3厘米超薄吊顶内嵌灯带,选用超薄灯条,在保证亮度足够的同时还做了一些顶面线条装饰。(装饰条开槽与灯线一致,如果想追加亮度直接嵌入光源即可) 电视墙利用150cm.欧松板+石膏板定制,一体成形,背嵌灯带。用结构与层次美做墙面装饰,简约大气。 除了潮鞋收藏,业主对航空航天也非常喜爱,因此我们在电视墙转角的位置加入了一组航模展示,搭配一款石头吊灯,将业主的爱好变为家的装饰。 电视墙内嵌85寸超薄电视是提前留好的尺寸,侧边做了一组开放展示格,黑与白的撞色优雅和谐。 客厅的纵向空间刚好够观影最佳距离,但为了让空间更自由,我们选择了利用枯山水纹饰的短毛地毯+多功能一字型沙发,巨幅装饰画的落地放置,以松弛随性的手法打造空间的灵动和舒适感。 ◗ 沙发品牌:意大利NATUZZI集团旗下的子品牌意迪森 Portento 这是一款功能性与舒适性兼备的沙发,以人为本的设计思想,采用Motionltalia双电机,可以独立控制头部和腿部的开关,调整不同的舒适角度,自带USB接口,方便给手机充电。 客厅阳台加入办公需求,依靠墙角做开放式办公区,上柜下桌设计,提前预留网线端口,用极简的方式实现了了书籍收纳、电脑办公和日常阅读需求。







设计亮点
原本户型的餐厅虽然是方正的空间但实际使用起来并不方便,餐厨一共16㎡大小隔成两个空间,每个空间都显得狭小局促。而且,家里只有业主夫妻两人住,空间并不需要过于独立。 我们将餐厨区贯通,做开放式设计,与客厅相连。室内整体格局瞬间通透宽敞,不再昏暗独立。同时,开放后的自由空间也有所增加,储物也变多了。 餐厅和厨房一体化设计,生活动线也得到了优化。 餐厅墙面和儿童房与卫生间的半墙是错开的结构,刚好给了我们做餐边柜的机会。我们将次卧房门平移到了开窗一侧,然后沿墙做的定制橱柜,打造西厨餐边柜。中空处加入轨道插座,作为小家电存放使用区,便捷高效。 提前确定了冰箱尺寸型号,冰箱做到了严丝合缝的嵌入。好看的冰箱贴给了大冰箱很好的装饰。 定制餐桌,2085x800mm的桌面尺寸刚好保证四人位就坐,也不影响厨房的进出。 ◗ 餐椅的品牌:北欧表情。 从餐厅到厨房做了一个斜面顶,20度左右倾斜角。解决厨房顶面的走管和灯带隐藏,同时最大限度保留餐厅空间的高度。







设计亮点
原本封闭的厨房打开后,自由空间变多,餐厨更为舒适实用,采光也得到了很好的改善。 U形的橱柜布局最大限度的完成了储物需求和操作需求。把水盆放在开窗下,操作台上方柜底内嵌辅助光源,全部细节设计均以实用为主,让家住着更方便。 开放式厨房最怕不干净,所以我们也考虑到这一点,在颜色上选择了浅灰色的橱柜搭配白墙白顶,柜门、把手、装饰线全部选择黑色。深灰色大理石纹瓷砖做腰线。整体简洁利落,干净清爽。 靠玄关这一墙我们其实是嵌入了一个双面柜,玄关侧作为储物柜,厨房侧细长条部分作为设备间,将检修口和设备阀门等藏在了柜子里,美观且不影响后期检修。 业主自购方太的灶台烟机一体机,考虑到开放式厨房油烟问题,所以选了一款 功率大的侧吸烟机。 洗菜池旁内嵌洗碗机,最短距离使用动线,拿取更方便。 侧面倚靠结构墙我们做了一个竖柜设计,很好的遮挡了北面生活阳台的洗护设备机,同时内嵌微波炉和烤箱,解决大件厨电的收纳。 北面的小阳台作为生活阳台,洗护晾晒全部在这里,侧面我们特意加了一个立式水盆,方便实用。





设计亮点
卫生间的整体面积并不大,里面只有2.8㎡,在这么狭小的空间内实现干湿分离和所有洗漱沐浴需求确实有些拥挤。因此我们将洗漱台外置,减轻卫生间内的使用压力。 外置后的洗漱区大概有1.5㎡左右,便捷又好用。 原本的卫生间较小,使用感较差,我们选择将洗漱区外置,然后内退卫浴空间。这样既能实现干湿分离,同时还满足了多人同时使用的需求。侧面做了一个600+250mm的通顶实木柜用作生活用品收纳。 为了让这个洗漱台占用空间最小,我们定制了异形一体式岩板台面,台下柜也是定做的。这样最大限度的保留大台面的实用也减少了过道的占用。 锤木纹嵌入式玻璃,搭配线条灯带,打造空间时尚氛围。洗漱区正对入户门,这样一个半墙开窗设计也很好的修饰了入户视觉。 卫生间内里也做了分体结构,用黑框玻璃做隔断,独立淋浴房,解决卫生死角和存水问题。 马桶侧面开270mm厚小壁龛用于存放纸巾。上边壁挂一款mini洗衣机用于清洗内衣。做到不浪费任何空间。 淋浴间内也做了壁龛,200mm厚度,存放洗护用品。 墙面用600x1200mm规格的诺贝尔瓷砖塞尚印象之寒江雪系列,简约大气,花色素雅耐看。地面选择黑色长条地漏,排水速度更快更美观。






设计亮点
相对于其他空间,卧室就更加简洁实用。床头墙做了拼接效果,下面是加厚嵌入灯带,上面则是利用黄金分割比做了线条装饰。一组悬空床头柜实用不占地方。 卧室阳台的窄缝我们做了一个570mm宽的极窄通顶柜,最大限度的增加空间储物力。一组全墙衣柜,视觉将墙面填平,3270mm长的衣柜储物,囊括所有需求。(后面这张图是柜子的内结构分部,分区明确,更实用) 卧室墙漆选择了浅淡暖灰色系,更加温馨舒适。中间我们还做了503mm宽的展示格,改用玻璃柜门+灯带,包包存放的同时也有装饰效果。床头灯是烘托氛围感的最佳利器~


设计亮点
餐边柜后面是次卧空间,原本次卧门紧邻卧室和卫生间,为了加入餐边柜补齐墙面,我们特意将次卧门改在靠近生活阳台 这一侧,以隐形门的方式保证墙面视觉的完整性,同时满足实用功能。 次卧是为以后生宝宝留出的儿童房,因为近期还没有这个计划,儿童房只是做了简单粉刷和储物功能。在家具的选择上业主更希望等计划生宝宝的时候在按需求购置。 现在的他们,更想过甜蜜的二人世界,享受自由的生活。
