

装修前
本案是位于长沙长房星昇公馆的一套140㎡的三居室,年轻幽默的业主夫妇二人,顺口一提~夫妇二人是同一家银行公司的工作人员,日常甜蜜的同时对生活的品质也是十分有追求的,二人的孩子刚上幼儿园,目前有二胎计划,喜欢简单大方的家,当然最主要还是舒适为上;所以当我们设计师了解到了双方的需求后,接下来当然就是我们的“show time”~ 忙碌于琐碎的我们,生活可能会很累,但幸好可以回到这样一间用美好包裹住的家,与家人一同享受细水长流般的仪式感,让所有喧嚣和压力都归于宁静。
装修后
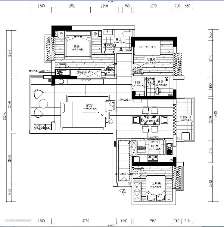
原始户型图: 1、结合户主需求,需要足够的收纳空间,原户型入户处没有收纳空间。 2、整屋未做到真正的南北通透,采光度不够。 3、平时有做饭需求,如何保证美观的前提不造成油烟空气影响到室内? 4、卫生间采光不够,需要防潮防湿,强收纳。 平面布置图: 1、入户处利用墙面进深差做到顶式的玄关柜,提升空间利用率的同时也能同时兼备收纳功能,一举两得。 2、整屋阳台都纳入室内,外置落地窗,公共区域皆为LDK式,做到真正的南北通透。 3、厨房做轨道门设计,钢化玻璃做隐形隔断,封闭式处理,防止日常使用过程中的油烟空气纯净度。 4、卫生间三区分离设计,盥洗区、淋浴区、如厕区;三区分离,防潮防湿、易于打扫,向上延展吊柜用作收纳。


设计亮点
入户处2.3*1.8m的玄关组合柜,“顶天立地”的伫立在这个狭长的空间,让日常忙碌的生活也能变得忙而不乱起来,抛却繁复的线条与花哨的色彩,运用原始纯粹的简白打造浑然天成的收纳空间,无主灯设计,凹型吊顶+防眩轨道灯,尽可能保留层高的同时,让照明采光无死角,出行无负担~
软装搭配
中间镂空玻璃暗格,可用于摆放展示一些家居摆件等,加强整个空间的景深,更高一点的长形暗格则用于日常出行挂取衣物,向下巧妙加入换鞋凳的设计,方便孩子、老人等换取鞋袜,其余白色烤漆柜,则用于收纳一家人一年四季的鞋物都是十分足够的。



设计亮点
踱步至咱们的客厅区域,引入眼帘的纯净白色,简约而不简单的舒适质感扑面而来,浅色系的配色总是有种不动声色的治愈力,经岁月涤荡仍然保留住最初的恬静,这样的家我想才是属于我们普通人的小浪漫~ 考虑到家中有小孩的缘故,所以咱们设计师的小巧思:大部分家居都尽可能的选择了更为圆润的边角设计,防止小孩磕碰等情况的发生。大平层吊顶,整个空间都采用无主灯设计方式,大面积的落地窗搭配蓝白配色的窗帘,让采光、照明更加的无死角,延伸视觉,扩大空间;电视tv背景墙则是采用环保性更高的岩板材质,更具高级和现代设计感,电视机嵌入式设计+暗格小柜,增强收纳提高空间利用率。
软装搭配
软糯的L型象牙白沙发,运用布艺的质感对抗忙碌生活的粗糙,让所有喧嚣和压力都尽数归于此刻的宁静。 沙发底部悬空,日常打扫起来更便捷无死角,1800*960*780mm的尺寸,就算来了亲朋好友也是完全能容纳得住~阳台和客厅未做任何隔断,纳入客厅采用一体式设计,大平面吊顶很好的包容住中央空调的嵌入,美观而又实用,覆盖面积广泛;沙发后方的小飘窗设计,让整个客厅更是添加了一笔趣味性,木质色调的百叶窗设计,可以更加灵活的调节光线变化,满足各种采光需求,在这一抹抹日光的微醺中,让一切都散发着明媚柔和的氛围感。 沙发转角处,一幅极具现代语言艺术的挂画搭配一抹生机勃勃的植物,营造更为生动的居家氛围;纤细精巧的茶几设计,采用更为轻盈的家居,让整屋更具有通透明朗的“呼吸感”,通铺大理石纹路的L&D瓷砖,耐脏耐磨的同时打造出浑然天成的隐雅美感。 大气感十足的大理石背景墙搭配耐看的格栅式经典科技木,格栅的运用可不仅仅是“流行”这么简单,可不要小看这样的家装元素:可塑性极强的它,也可在一定程度上降低和减少阳光对于室内的热辐射、从而达到一种更为节能的效果,同时它是采用木质材料构成,拆卸起来十分方便也可重复使用,性价比高、环保的同时,却又丝毫不失气场,个性又百搭,一抹绿植加持,让疲惫的身心在此刻得到升华~


设计亮点
开放式布局的餐厅,与客厅之间未采用任何隔断,形成十分流畅的洄游动线,使空间更加的开阔大气,低饱和度的色彩为基调,素雅静谧的同时更是自带着一丝高级感,餐桌采用圆弧形包边避免磕碰,岩板材质更为耐磨损、耐高温~轻盈的皮质纤细餐椅,晕染出更为安逸舒适的用餐氛围,餐厅一侧的生活阳台改造成为一个多功能室,既可休闲也可办公,隐形玻璃门作为隔断,方便家人之间的交流,隔而不断,独立又共生,形成南北通透,主打的就是一个环环相扣~
软装搭配
餐厅不采用传统的靠墙式设计,而是在前后左右都预留出了较大的空间,一来是扩大空间,方便亲朋好友到来的话,也可以随时在旁加入位置,二来也是如果后续业主有餐边柜需求的话也随时可以设计到位,方便极了。


设计亮点
厨房采用U型布局设计,将双开门冰箱也很好的加入进来,向上延展的白色烤漆橱柜,收纳家电绰绰有余,墙面加入壁挂式的置物架,用作日常杯具沥水,功能性满满;向下看可以看到也有一排地柜设计,如此大量的储物结合,为日常操作起来更加的仅仅有条,神清气爽;井然的秩序、抛却繁复和花哨,打造出极具质感的实用空间。
软装搭配
厨房另一侧是一个洗手台+玻璃展柜,可将酒水、杯具、小型家电等物品放置于此,避免翻找的繁复感,整个空间更加的一目了然,同样的白色烤漆木柜搭配大理石材质的台面,中间镂空设计,设计了一个供业主日常需求的实用洗手台,暗藏磁吸轨道灯,就算是阴雨天气,也不用担心空间采光度不够,考究的细节,让这个家处处精致,宽敞明亮!

设计亮点
传递岁月静好和惬意的书房区域,延续了客厅的整体色调,大理石纹路的瓷板砖通铺室内,大片的落地窗传递着大自然的灵性;日光微醺,清风徐来,将整个空间都笼罩在恬静放松的氛围享受。 后方到顶式的玻璃式立柜,增加空间的轻盈感,收纳书籍更加的井井有条、一目了然,中央空调同样巧妙的嵌入在吊顶处,木质书桌悬空设计,方便日常清洁打扫,保持空间的整洁干净,让人在此空间中可以倍感清爽~



设计亮点
主卧采用更有温度感的暖色调加持,卡其色的护墙板搭配镀金线条点缀,增添了一抹轻奢的精致感,床头两侧流线型吊灯,作为整个卧室空间的主要照明,搭配极具浪漫的落地窗,采光、通风性能无需担心,简约双眼皮吊顶保留层高,pu软皮床身也将主卧舒适氛围感拉满。
软装搭配
床头柜的两侧摆放着女主人的日常美照~60*50cm的床头矮柜,用作收纳睡前读物,日常小物品,摆放水杯,功能性满满,统一的豆沙色,丰富空间质感,增强软装的一致性,插座和空调开关镶嵌在床头柜上方,避免要下床去关灯的繁琐,自由过渡的简洁美观,点到为止的大气格调,赋予了整体空间更多的实用性。



设计亮点
同样是卡其色的护墙板,为空间带来了更为温暖的视觉,和岁月静好的沉淀感,卧室通铺木质地板,冬暖夏凉,易于打理,舒适感十足,床头矮柜纤细腿,更为轻盈时尚,大片飘窗打造光感空间,集颜值与舒适为一体,睡觉仪式感拉满~ 活力橙皮质懒人椅点缀,舒适度max!简单又充满色彩趣味的元素,与整个床品搭配,让色调显得不再空洞单调,温馨感十足;家就是如此啊,将自己喜欢的一点一滴加入进来,慢慢堆砌成自己的梦中情房。
软装搭配
清新绿+纯净白+原木色,构成童趣满分的梦幻般的儿童房,在孩子的世界里有着许多的奇思妙想,所以在床的选购上,采用了形似小猫的皮质床身,搭配白色千鸟格床品,耐看又清爽,飘窗处可作为孩子收纳玩具处,等孩子大一点,也可以改造成一个简易书房模式,赋予空间更多的可能性,塑造一个充满童趣又不失质感的独处空间,让孩子更加轻松愉快的成长。

设计亮点
去繁化简极具现代时尚的卫生间区域,采用三区分离,盥洗区、如厕区、淋浴区,呈现井然秩序的一字型排开,浅灰色的岩石纹理的抛光瓷砖,视觉上更显空间的通透明朗,给人一种干爽洁净的感觉,大理石的台盆搭配悬空的台盆柜,下方可以收纳一些洗漱用品,悬空设计,形成空间的顺畅通风口,向上延展,智能光感镜面搭配透明暗格,可用作收纳一些干爽的毛巾和日常女主人卸妆、护肤等用品,淋浴区墙面也采用壁龛式,用作摆放一些日常都频繁使用的沐浴露、洗发水等洗漱用品,干湿分离的规划,让空间更具有层次感,洗刷一天的疲惫,让使用者尽情沉浸于这宁静的美好时光~
