
装修前
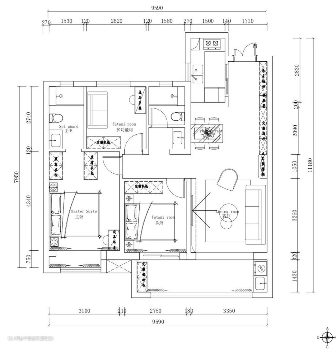
平面布置图:入户为开门见山的格局,利用右侧墙面,打造玄关收纳柜,与餐边柜自然衔接。拆除阳台原有地砖,与室内连贯连通。在满足起居空间的前提下,打造一间多功能房。



设计亮点
玄关,多种色彩与材质组合,令空间呈现出一种丰富多彩的状态。灰色瓷砖并勾勒出几何形状来,搭配顶面筒灯照明,安静又温柔。
软装搭配
厨房位于玄关左手边,木质推拉门与木色鞋柜,在色彩与材质上相呼应。搭配灰色瓷砖,两种截然不同的材质,将整个空间包裹。






设计亮点
客餐厅一体的开放式格局,以全新的悬浮吊顶+无主灯照明,将两大空间串联起来,抒写通透的同时,也构筑了整体悠闲惬意的意境。将原有的大白墙,重刷可可蛋奶色乳胶漆,并搭配莫兰迪色系的软装,以温柔的色彩诠释家的治愈纯粹,打造柔和的奶油格调。
软装搭配
阳台,纳入客厅后,确保餐客空间的自然采光,形成里外透彻的客餐厅布局。拱形垭口的造型,柔和空间棱角感,增加空间设计感。


设计亮点
经过玄关进入餐厅,以原木风为主题缓缓延展开。摩卡清灰色的餐边柜与玄关柜衔接,弥补公区的收纳能力,深浅用色,凸显层次感。
软装搭配
挑选亚克力桌角的悬浮餐桌,轻盈缤纷的油画+原木餐桌椅,调和出平和安定来。没有多余的色彩冗杂,营造自然舒适的用餐环境。

设计亮点
厨房隐匿于木质推拉门之后, 内部是以木色为主,延续餐厅的风格,温润且自然。以柔和的白融合温润的木,觅得一丝温柔宁静。
软装搭配
客餐厅一体的开放式布局,顶部两道磁吸轨道灯,将两个空间串联起来。配合一门到顶的房门设计,提升空间纵深感,简约却不简单。



设计亮点
主卧,奶咖色背景墙,结合深色木地板,辅以灰蓝色床品,丰富色彩层次感。飘窗一隅,引入充足光线,勾勒出随性舒适的适眠环境。灰蓝色软包床头+同色系床品,搭配简约留白的背景墙,搭建一方悠闲惬意的居所。原木色衣柜,一门到顶,充分满足屋主的收纳需求。
软装搭配
于床对面,是由双面衣柜组成的过道式衣帽间,有效隔开主卫与衣帽间,缓冲了主卫直面休息区的尴尬。浓郁的木色,让空间更显柔和。

设计亮点
电竞房整体上偏冷色调,黑色沙发沿墙摆放,书桌椅立于前方,多色拼接的地毯点缀,给冷硬的空间添一抹柔和,氛围干净舒适。
软装搭配
一盏圆形主灯,点亮整个空间。沙发与书桌相搭,或做书房,或做闲时的冥想空间。书桌墙面,一幅色彩浓郁的装饰画成点睛之笔。

设计亮点
主卫,木色卫浴柜,延续整体的主题风格。包容的白+安静的木,缓缓勾勒出奶油风的温柔曲调。以白框推拉门来间隔干湿区。
