
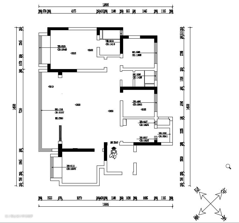
✨居住人群:三口之家居住,小孩读高中,房子主要是离学校比较近. ✨功能需求: ☘️增加家里的储物功能,多收纳 ☘️有一个独立的书房 ✨居家氛围:简单、黑白灰、高级感、有品质


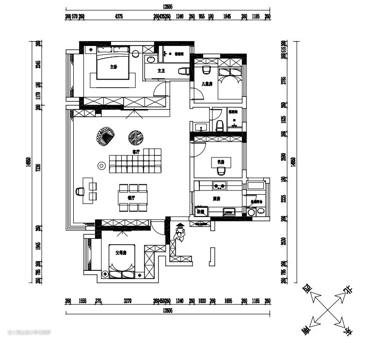
改造后: ☘️将主卧的衣柜改到了床的对面,做嵌入式衣柜,增加了空间收纳功能.让卧室从感官上看起来更大一些。 ☘️扩大卫生间面积,更改卫生间进门方向,避免卫生间门正对主卧门 ☘️将厨房与生活阳台连通,扩大客厅的面积.



设计亮点: ☘️将走廊的回风口与灯具相连接,简洁又不失设计感 ☘️客厅到客厅阳台梁的位置比客厅吊顶的层高矮,借用这个落差,做了一个反光灯槽,保留了空间的简洁感 ☘️在电视墙的设计上,将不能打掉的称重墙柱子,用门板包裹起来,增加了电视墙造型的一体化设计 ☘️客厅的窗帘采用梦幻帘,空间看起来简洁。 梦幻帘的多变性,给空间采光的变化,带去了可发展性.


设计亮点: ☘️床头背景墙采用格栅和墙板的设计,增加氛围灯带. ☘️梳妆台与收纳相连接,增加梳妆台的实用性 ☘️床对面放置了一整面的衣柜,增加房间衣物的储藏空间.

设计亮点: ☘️这个房间是父母居住,在配色上采用中性色配色,给人带去温馨、不冰冷的感觉 ☘️衣柜和床头柜相连接,方便挨着墙最后一面柜门的使用,同时视觉上增加了空间的宽度 ☘️床头背景采用硬包和木质隔断拼接,木质元素让空间更显温馨

设计亮点: ☘️书桌书柜与衣柜相连接设计,采用灰色、胡桃木、浅色的门板作为整体柜子的搭配。书桌使用起来更方便打理. 浅色门板增加空间的通透感,黑色的隔板,让空间更有力量. ☘️采用排骨架床,不会有榻榻米床潮湿的问题

设计亮点: ☘️采用黑白灰配色,人深处空间会更加的宁静,更好的进入办公或书写的一个状态 ☘️书柜作为龛入式的设计,开放格和玻璃柜门的设计,增加柜子的趣味性

设计亮点: ☘️厨房沿用整体的黑白灰风格,地柜和台面均采用黑色,增加了厨房的重量感,深色也便于厨房打扫卫生 ☘️将洗碗机、蒸烤箱、冰箱作为嵌入式设计

设计亮点: ☘️采用柔光的墙地砖,增加空间的质感 ☘️浴室柜采用灰色的门板,带储物的镜柜,空间看起来更干净整洁
