

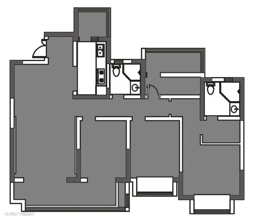
装修前
第一次见业主时,她还有2个月收房,她要求让整个空间更柔和一些,增加自己喜欢的家具和元素。我们的设计在原有的基础架构上,根据客户需求进行设计和对户型结构布局进行更加合理优化,对软装搭配的设计和挑选。重塑储物规划,将储物与软装结合设计重做灯光设计。
装修后
空间改造要点: ❶.拆除电视墙,电视背景墙作为客厅装饰的一部分,在色彩的把握上要与整个空间的色调相一致 呼应餐桌材质,增加氛围灯光设计及定制储物电视柜 选色呼应软装沙发; ❷.拆除窗下的多余墙体,将生活阳台纳入到客厅,视觉上增加客厅的通透性,但也可作为生活阳台和休闲区使用,且也不会影响到客厅区域; ❸.拆除墙体将赠送阳台和储存室合并在一起,整体划分成一个采光非常好且可供多人使用的L型书房,收纳的定制大书柜储存空间也是挺大的; ❹.将衣帽间靠近卧室的墙改成半墙,改善衣帽间和卫生间的采光,增加主卧的一体性和互动性; ❺.在餐厅加入餐边设计,将冰箱位置挪出厨房,以便给原本只有2m的地柜做厨房储物补充。







设计亮点
从沙发提取加入重点色 /补色 ,丰富空间,生机勃勃,原沙发背景墙因为没有过于突出,被保留下来增加餐厅储物空间,重塑电视区设计。电视区的岩板主材和餐桌岩板为同一材质,用色彩三角法则重复空间材质。 带橙色的亚克力材质的茶几和复色地毯呼应,增添一丝跳脱的暖调,强调个性与温暖... 温暖的壁炉,追求自然和格调都少不了的装修宠儿。自然品质的物质家园不是简单地将自然要素引入室内,而是结合地方的自然环境特征进行创造性地营造。



设计亮点
按照业主的要求,我们保留了地面瓷砖,在设计上也结合了瓷砖的颜色和材质,对整体风格的设计和颜色搭配进行把控。 设计师精心挑选的餐桌和餐椅,给餐厅增添了温暖和趣味性;面包、马克龙,食欲满满。





设计亮点
主卧取消原有的厚重壁纸,将普通石膏线更换为虎头石膏线条,加角花点缀,软装壁灯和主灯的选择呼应整体黄铜色调的同时,用珐琅玻璃搭配丝绒家具。 将衣帽间墙改成半墙采光得到了很大程度上的改善,增加次近衣区,方便换洗衣物存放。大大的梳妆台也可偶尔作为书桌来使用。



设计亮点
全屋衣柜统一协调、藤编元素、床头增加壁灯采用墙面补色,增添活泼氛围。


设计亮点
复古流金的台灯、全景L大型书桌,一家人办公读书都够用,还配备了大型定制书柜,美观的同时收纳量也是足足的。 全景配上百叶窗,随时自由调节书房氛围和光线;呆在书房,感觉来一杯咖啡,一下午就过去了。
