
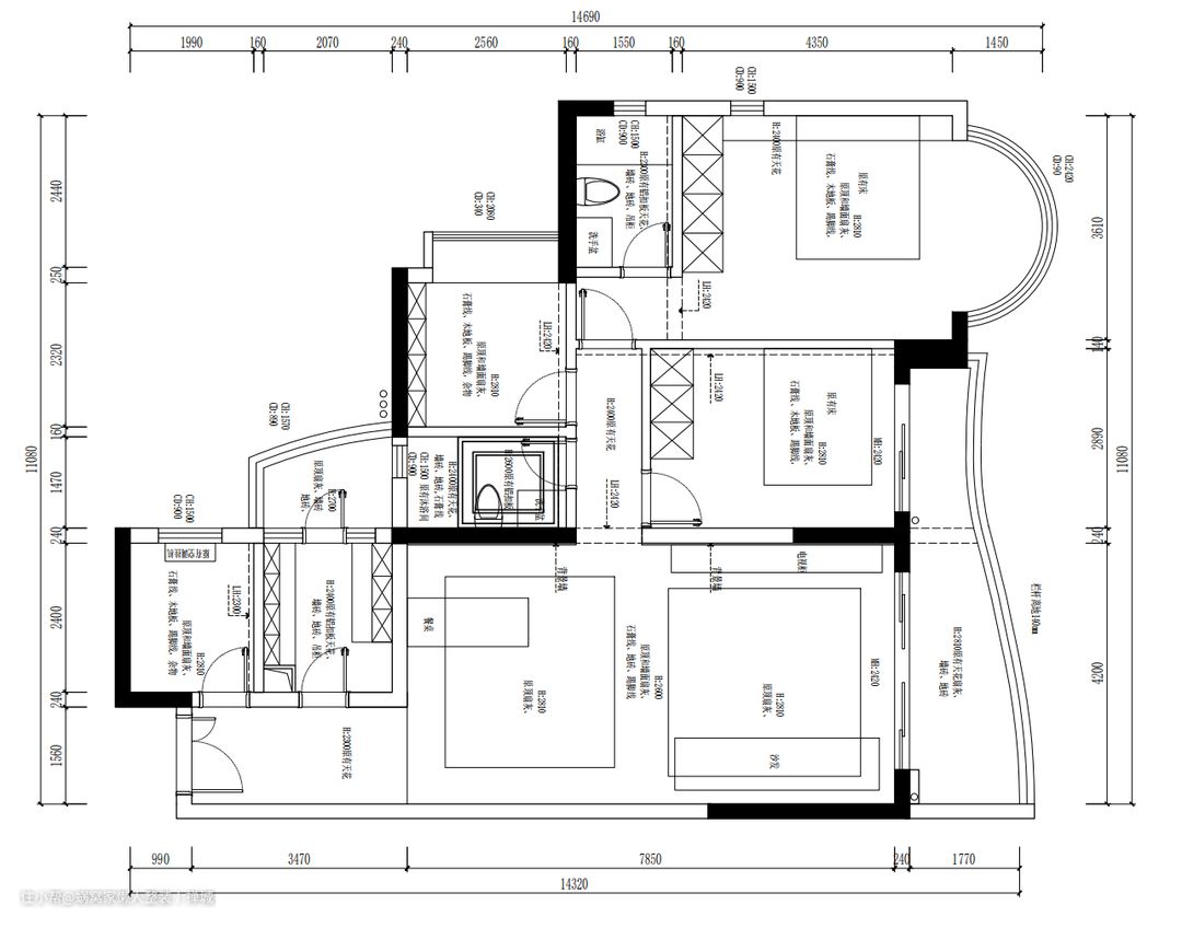
装修前
1、每个空间都相对独立,削弱了家庭成员之间的互动,让家少了陪伴的温馨和热闹; 2、厨房和主卫面积都很狭小,难以利用 3、整个空间很开阔,可能被利用的存储空间少,无法满足日常起居需求

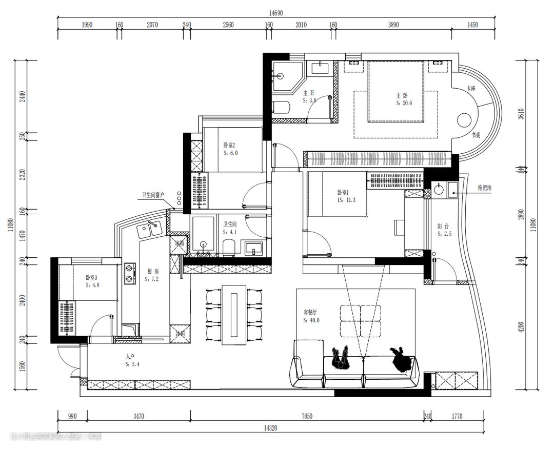
设计亮点
1、原狭长型的阳台做功能分区,将部分空间封入室内,并和餐厅空间合并,形成洄游动线,缩短生活动线,又增加家庭成员之间的互动; 2、原厨房+生活阳台的结合,扩大厨房空间面积,同时将吧台增加室内窗设计,方便中式烹饪时隔绝油烟,也能作为吧台,去辅助餐厅使用; 3、主卫由原本长方形改为方形,减低卫生间的清洁面积,同时提升空间利用率。



设计亮点
本案在玄关处以黑色和灰色碰撞向内延伸,从门饰的纹理感到平滑的木饰面的平面造型,中间穿插开放格用灯具做内嵌,细节处都是高级感。
软装搭配
柜体贯彻“二露八藏”的原则为业主入户打造三大功能区:装饰区内嵌灯带,为入户顶灯起到辅助作用,给业主回家的仪式感;置衣区添置晾衣杆,方便业主挂放衣服;收纳区做封闭式,起到杂物收纳,柜门一关,保持玄关空间的整洁。






设计亮点
相比较其他空间,客厅色调更为柔和,与线条、块面以及家具相呼应,营造出温馨自然的空间意境,使得业主在外忙碌一天后,在玄关放置随身物后,能好好地待在待在沙发上休息。
软装搭配
电视背景墙为悬浮式定制柜设计,减少地面接触,方便日常清洁,但不会因此缩减了存储空间,杂物放置、隐藏插座与电视都不在话下,同时柜体间嵌入灯带,营造悬浮视觉,削弱柜体的笨重感和压抑性。






设计亮点
为了避免视觉疲劳,餐椅选用棕色系作为空间调和剂,精挑细选的金属吊灯为就餐空间增添艺术氛围,搭配岩板餐桌,用简单纯粹的色调,提升空间格调。
软装搭配
靠墙定制了餐边柜,但未像常规一样定制到顶设计,上面留空的部分可以摆放装饰品或绿植,提升空间美观性,而在视觉上不会那么压抑。餐边柜的酒格业主原定想做开放式,但考虑到孩子的安全性,增加玻璃柜门,安全性得到保障,也提到划分空间的作用,让业主使用更方便,加上灯带设计,视觉效果满分。




设计亮点
延续了黑白灰色系设计的厨房空间不仅耐脏,而且在视觉上更显低奢大气,将空间的质感贯彻其中。考虑到厨房的采光欠佳,我们在厨房与餐厅之间设计了一扇推拉窗,不仅增加了厨房的光源,还提升了餐厨空间的互动,让业主在做饭之余,能通过室内窗关注孩子的动态。
软装搭配
原厨房空间较少,难以容纳多人烹饪,我们将生活阳台封入厨房,将二字型厨房改造成U型,增加了可操作空间,也扩充存储面积,通过定制柜将收纳最大化,让锅碗瓢盆都能有序的安放,多人操作也不会感到局促拥挤。






设计亮点
主卧没有多余的装饰造型,更多的是想营造舒适感,能有一个放松的空间,因此在全屋做智能化的基础上,给主卧配备了“小管家”,业主进出卧室,灯具、空调自动开关,尤其睡眠的时间,可以直接通过语音启动“小管家”,实现躺平生活。
软装搭配
摒弃原有的顶柜设计,改成L型床头桌,平日充当床头柜,放置随身物品,业主忙碌时关上门,就形成私人办公区,并且为悬浮式设计,节省空间,减少清洁死角,视觉上更加轻盈。主卧的阳台为弧形空间,业主不希望仅作为观赏区,可以增加功能属性,我们沿床定制实木桌椅,让女业主在梳妆打扮之余,还能360°无阻碍欣赏美景。



设计亮点
次卧主要作为业主待客和父母偶尔居住的复合式空间,在整体设计上,以从简为主,沿用整体的调性,保留床柜一体设计,不占空间,又不影响日常使用。
软装搭配
次卧为无主灯设计,用筒灯和床底线灯做辅助,在夜间提供柔和而不刺眼的照明,方便起居者起夜,减少磕碰问题。





设计亮点
通过白粉两色作为空间主调,从而将儿童房打造成一个充满童真和梦幻的空间,墙面与窗台之间使用定制柜做衔接,空间得以延伸,为儿童房创造了更宽敞和开放的感觉,让视觉有一个连贯性,更显布局的流畅又统一。
软装搭配
床侧边柜子主要作为孩子的玩具和过季衣被收纳空间,即方便孩子随拿随放,养成即可收纳的好习惯,又能减少衣柜的开合而弄脏衣被,与此同时,柜体隐藏式无把手设计,视觉更加简洁美观。



设计亮点
卫生间沿着墙面做镜柜且安装感应灯带,白天女业主化妆的时候就可以打开灯带,更加清晰看清脸部轮廓,更好的梳妆打扮,为生活增加精致的仪式感,而夜间有人经过时,感应灯会打开,不用担心孩子摸黑去卫生间啦。
软装搭配
镜柜的设计很好利用马桶上方的空间,方便有多的空间收纳瓶瓶罐罐,既保持台面的整洁干净,又起到防尘的作用,同时大镜面对于近视党的福音,让业主可以更近距离观看, 更容易佩戴美瞳。
