






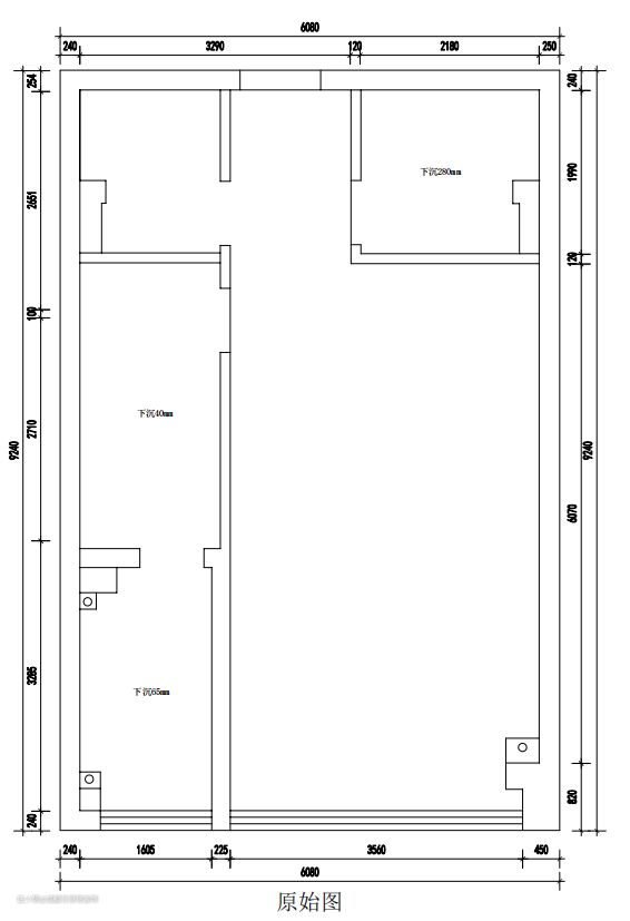
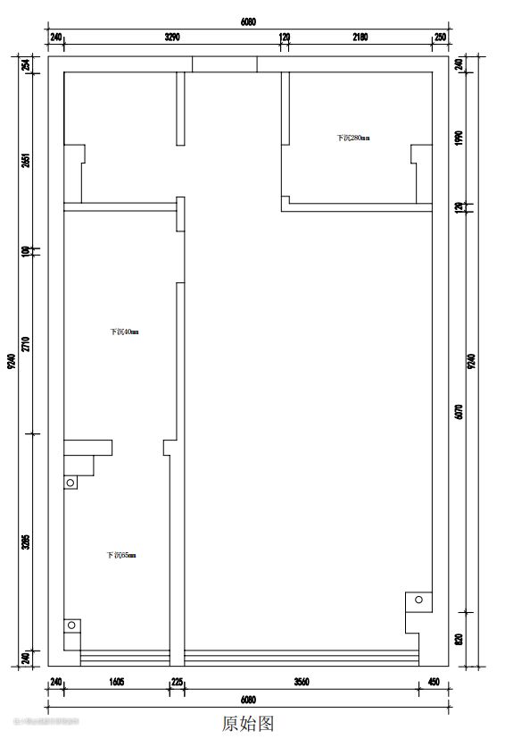
❤🧡🧡❤ 本套案例位于成都市成华区宇禾置业小区,建筑面积68m²,套内面积48m²,搭建完86m²,层高5米3。原始结构是长度为9.24m、宽度为6.08米的长方形loft公寓,钢结构开发商只搭建了一半,后期再重新设计搭建阁楼。 虽然是公寓,但也要好好设计装修成类似于复式别墅的感觉,整体要看上去要简约、大气。屋主想保留两个房间就够了,一楼客厅一定要不压抑,有设计感。全屋现代简约风格,软装设计雅致自然。 💦一起来看看各个空间的完美展现吧:






设计亮点
这套loft公寓层高5.3m,钢结构阁楼采用部分镂空搭建的方式,变为两层楼空间,一层高度2.9米,二层高度2.1米,非常舒适的层高设计案例。









设计亮点
经过设计,公寓拥有5米多的挑空区域,保留全景窗户,12楼看窗外的城市景色别有一番风味呢~ 屋主自己选购的吊灯,很有品位,与整体风格也很搭,营造出浪漫、温馨的氛围感……



设计亮点
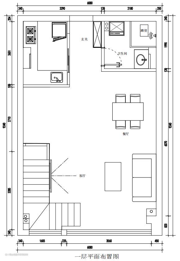
入户玄关设计也很重要,它代表了一个家的第一感官,也是给来往亲朋好友的第一印象,也可谓颜值担当。 首先玄关柜采用的是通顶式设计,储物空间更足。 其次中间区域镂空了30公分,可以摆放创意摆件、钥匙等物品,拿房很方便;底部镂空了15公分的样子,放置体重秤、扫地机器人、常穿的拖鞋,生活也更便捷、舒适。 最后色彩上,玄关柜选用简约白设计,十分耐看,给人一种大方、利落之感……








设计亮点
客厅,5米多挑空设计,摆放了米色皮质沙发,整面沙发背景墙是护墙板拼接式安装,对面的电视墙采用岩板材质,看上去超有品位,十分大气、高端。 值得一提的是,电视墙是楼梯侧边封平之后利用起来的,一点不占空间,安排了电视柜+绿植+小熊摆件+艺术品,整个房间瞬间变得别具一格,自然又清新……





设计亮点
餐厅,开放式设计,但面积足够大,简单摆放了餐桌和餐椅,还有餐边柜,越简单的家居陈列越能表达空间美感。






设计亮点
厨房,开放式、封闭式都可以设计,内部是L形布局,一整排地柜增加储物。没有做吊柜,空间感更大,只是吸油烟机管道那里做了吊柜,看上去更好看一些。厨房放置了单开门冰箱,空间更好用,不用因为家具而显得拥挤。







设计亮点
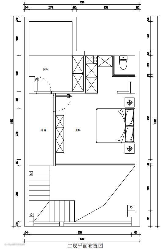
这套公寓楼梯选用7字形楼梯,楼梯下方做储物间,空调外机放在里面,看上去更美观。楼梯采用木地板踏步+实木玻璃扶手,简约大气。楼梯尺寸:长*宽*高——1.1m*0.23m*0.20m,根据常住人口身高设计,上下楼梯更舒适……




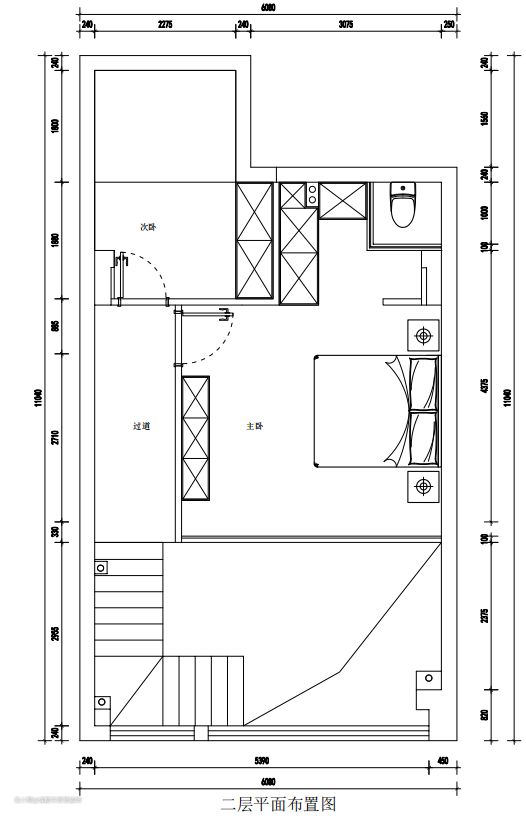
二楼过道,有一米多宽,分别通往主卧和次卧。









设计亮点
主卧,套房式设计,放置了一米八的双人床+两个床头柜,深咖色木地板+白色乳胶漆上墙,空间感简约耐看、又十分自然…… 主卧侧边没有砌墙起来,而是安装的半高玻璃扶手+窗帘,空间通透感更好。闲暇时也可以看看挑空区域外的风景,一举两得……




设计亮点
主卧卫生间,安装了马桶,后期会安装玻璃隔断,这样就不用刻意上下楼上厕所了,生活更方便。




设计亮点
主卧衣帽间,小型L形通顶式衣柜,刻意储放四季衣物被褥,收纳空间足够。柜门简约白设计,与整体风格相呼应。






设计亮点
次卧,本身是赠送空间,后经改造变为次卧室,设计了榻榻米和嵌入式衣柜,满足日常使用功能,生活舒适性更好。







设计亮点
卫生间,一楼入户左右边,大概有4个平方,盥洗室、淋浴区、马桶区,功能齐全。
