


现代风格装修案例,整体以现代简洁为主,满足主人的居住需求作为设计导向,在空间内融合了多种现代元素,灰、白色硬装搭配诠释不一样的高级感,为家人营造一种舒适的居住感觉。




设计亮点
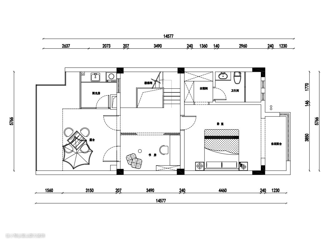
客厅整体的色彩搭配干净简约,搭配落地窗,整体空间舒适自然。沙发背景墙未是木纹搭配灰白的纹理,加上灯具的点缀,令人百看不厌。 合理划分空间,能够满足到生活的需求,在将设计元素融入生活中,营造自然、品味、格调,让居住者体验到愉悦的生活方式。无主灯的设计,两边背景墙射灯给空间带来美感及温馨感。



设计亮点
开放式的餐厅厨房,餐桌岛台内嵌入厨电更加方便,使厨房更显得整洁大气。木色的橱柜提供空旷的温馨感。 木制的温馨和白色的纯粹,黑色在其中作为点缀,彼此中和,使空间具有层次感。摆放一些装饰提升空间饱和感,使新房子拥有家的味道。 南北通透的空间也带来良好的通风效果,整个空间非常的通透,采光也非常好,明亮的空间给人带来阳光。


设计亮点
客厅的一侧是开放式的厨房,整个空间现代实用而且时尚高级。色调的搭配简洁且充满个性,充满现代简约的实用主义的风格。 简洁的设计,日常生活中方便打扫,设计与生活相统一,岛台和餐桌的设计不仅美观,日常使用中更加方便。 所有的厨房设备应有尽有,嵌入式的厨房电器便于方便,使厨房更显得整洁大气。



设计亮点
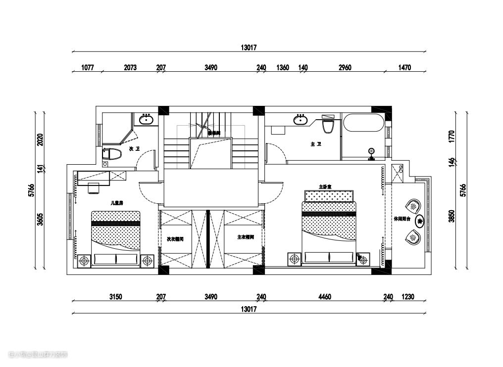
二楼主卧空间是本次户型改造的一处重点,主卧位于客厅上方,是挑高客厅现浇后增加的面积,设计成主卧+衣帽间+卫生间的综合大套房。 背景墙以暖色调护墙板+卡其色木制靠墙,搭配暖色调灯光,更显柔和静谧的睡眠氛围。 小阳台区域摆放一套休闲藤编椅,原木色小圆桌,日常可以静坐眺望窗外,多了一隅休闲放松地。


设计亮点
三楼次卧相对简单,作为客房,父母偶尔过来小住或者亲人留宿,不做过多复杂的设计。延续主卧风格的基础,满足居住,储物,洗漱等功能。



设计亮点
主卧卫生间浴室柜设计加长台面,摆放女主人化妆品和护肤品,浴缸和淋浴都包含,满足不同的洗浴需求。空间设计注重使用感,遵循业主对家居氛围的实用出发点,在现代感材质风格的基础上满足业主需求。 儿童房卫生间墙面选择活泼的淡绿色瓷砖颜色,更加温馨。 三楼客房面积不大,以淋浴房做干湿分离,使用以满足日常使用即可。
