




装修后
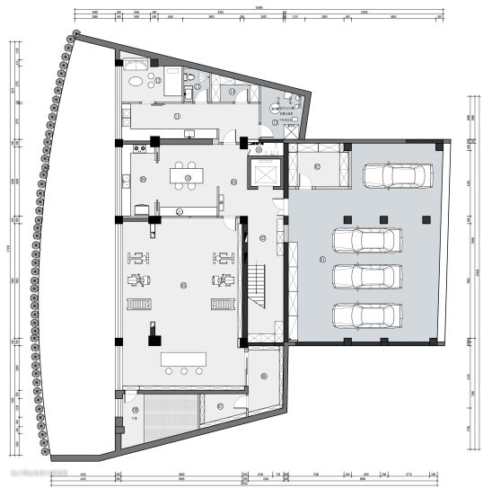
户型图依次是: 地下一层/一层/二层/三层/阁楼户型图 家的简介:本案为新中式简约风别墅设计,总共五层空间,居住的家庭成员一家六口,业主夫妇,加上业主的爸妈和他们的两个小孩,本案业主希望去追求宽松的生活状态,让所有的空间不闭塞,家人围坐,灯火可亲,让沟通随时随刻可进行。设计中将多种奢石色彩与无处不在的氛围光线融合,为跨越三代人的起居生活营造舒适与优雅质感并存的居住体验。 屋主需求 1厨房空间功能多样,具备西厨,岛台的配置 2餐厅空间大,满足日常需求 3主卫空间大,采光好,通风效果好 4主卧需要衣帽间 5儿童房设立两张床 设计改造 1厨房移至落地阳台区域,阔大厨房的面积 2原厨房位置作为西厨,与餐厅和厨房相联系 3餐厅区域增设储物柜,增加功能的多样性 4主卧增设衣帽间,拓宽了主卧面积同时增强收纳 5儿童房设立两张床,同时玩耍空间也增大





设计亮点
客厅为大横厅格局,视野开阔明亮,大面积留白处理更显简洁大气。双面采光显得格外明亮舒适,整个空间以现代轻奢为基调, 通过精致的软装搭配,彰显出家的品质。潘多拉的奢石色彩自带高级感,达到造景的效果。同时客厅作为挑空结构,具有独特的空间感优势,同时也为后方的书房留出更为宽敞的空间。
软装搭配
双面采光显得格外明亮舒适,整个空间以现代轻奢为基调,通过精致的软装搭配,彰显出家的品质。沙发兼具美观性与实用性,设计中式屏风背景富有层次。并且围合式沙发布局更显温馨,大面落地窗宽敞明亮,赋予室内充足的阳光,天气好的时候,业主还可以享受人与自然的亲密接触,心情更加舒畅。




设计亮点
朝餐厅一面设计光源,丰富着功能空间的视觉感受。一套现代圆形餐桌椅满足家庭聚餐,造型别致的如花束般水晶吊灯提升格调。沿墙定制餐边柜兼西厨功能,玻璃吊柜内可以摆放杯具与酒,平时拿放都很方便。操作台上增设小水吧,日常业主洗水果洗杯子不用再跑到厨房,细节体现生活品质。
软装搭配
既是岛台又是餐桌,形成洄游动线,餐桌能够满足5-6同时用餐,兼西厨操作台和酒柜功能,嵌入灯带更显高级,通过高柜与矮柜的组合,保证室内采光充足,也可以增加餐厨储物容量。中出考虑到油烟问题安装玻璃移门,打开后两个空阿金无缝融合,也能避免油烟问题影响老人与小孩,满足业主一家烹饪需求。


设计亮点
靠大落地窗规划书房,背景书架大小不一的开放格用以书籍与摆件装饰,微弧形吊顶加上大面落地窗的设计,从视觉上加深空间纵深感,层理丰富,无论是学习还是办公,让业主能在疲劳的时候拥有一个放松的好视野。
软装搭配
书桌的材质是挑选比较轻盈的特点,原木桌面搭配倾斜桌腿,远观犹如漂浮不定,开放格的书架增添趣味,视觉空间更加丰富。




设计亮点
主卧采光充足,整体设计延续客厅风格,在吊顶中引入曲面元素,并置入线性的光源带来温馨氛围。独有的床头靠为简奢的空间营造立体感,整个空间是功能齐全的套间,无论是隐私上还是日常便利生活,都是符合业主的生活习惯。
软装搭配
靠近楼梯是一个小小的的衣帽间,用实木打造连接衣帽间以及卫生间视觉上更为美观。丝绒质感的床头靠,提升业主的使用感,另一面用整面的实木打造背景墙,多一些不一样的空间。




设计亮点
儿童房设立两张儿童床,可以保证两个小孩的使用,同时小朋友的活动玩耍空间也是十分的大,低饱和度绿色和奶油色的色调,装饰画把空间衬托得更加梦幻。窗帘选用白色窗纱与定制的淡黄色,整体不出错,高级耐看又温馨可爱。



设计亮点
墙顶面通过弧形处理弱化柱子和横梁的存在感, 床头嵌入暖光灯带营造氛围,长辈房布置素雅简洁,以棕色为基调,硬包背景两边加入金色线条修饰。


设计亮点
床头背景以出其不意的造型,增添空间意趣,把控住了卧室的简洁性。伞状台灯引领光源向下沉淀,携轻灵光丝烘托浪漫情调,展露独立而亲密的空间叙事。



设计亮点
简约禅意的新中式茶室,让一切皆静,一切皆禅。业主能在这个小而精致的空间里,疲惫的心灵能找到宁静和诗意。选择使用大量的原木材料,墙面采用白色、原木色和黑色等纯净色调,融合现代艺术元素,营造出唯美而大气的新中式茶室。


设计亮点
吧台区就像房子里隐藏的宝石。整面玻璃墙的元素美观地连接了酒吧与家中的其他部分,提供了一种整体感。干净、锋利的线条让酒吧看起来优雅,而暗色调和策略性的照明增加了神秘感。



设计亮点
主卫做双台盆,定制加长镜柜延伸至马桶上方,既增加收纳又扩大视觉,墙面通铺白色大理石纹砖,设计天窗引入采光,躺在浴缸就能仰望星空。镜面的平滑特质放大了明亮采光,与人一起共鸣出生活基础性的美好感受。
