
装修前
设计理念:这是一套新中式风格的装修案例。作为一套五室两厅的雅居,业主心中有着自己的规划。以简约东方为切入点,结合大平层的户型,运用不同元素,各种材质,将中式的内敛与庄重,古韵与优雅融入空间的每一处脉络,打造一个充满艺术气息与功能并重的古色古香之地,传统、现代、古典完美糅合。希望你们会喜欢。
装修后
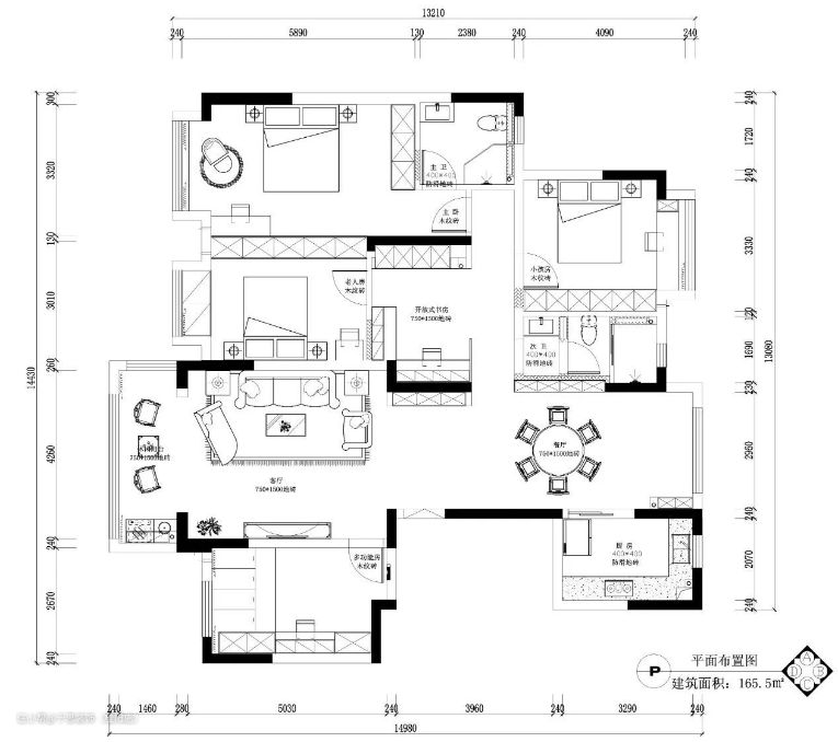
▲ 平面布局图:建筑面积165㎡,设五居室。客餐厅一体开放式布,南北通透。餐厨以推拉门隔断,动线清晰不交错。电视背景墙与多功能房设隐形门,保证空间的整体性。





设计亮点
▲ 客厅,以周正对称的手法徐徐展开。顶面以大气的回形吊顶,搭配铜艺10头新中式吊灯,四周内嵌灯光,让空间更具层次感。挑选传世乌金系列的家具,质感尽显。精致沉稳的乌金木框架,搭配浅色靠背坐垫,明暗呼应,禅韵又不失时尚的家居氛围。
软装搭配
▲ 苍劲的迎客松点缀于乌金木茶几上,虽未有多余的装饰,彼此相互映衬。盎然的生机,温润质感的家具,古韵之风油然而生。客厅与阳台相连通,空间更显通透之美。孔雀蓝窗帘与蓝橙撞色抱枕的加入,在安静的空间内添了几分活泼意趣,大而不空。


设计亮点
▲ 整个公区以750x1500的亮面灰大砖通铺,一览无余,没有分割感,瞬间放大空间。自然光自外而入,形成一个通透的大开间。
软装搭配
▲ 阳台区域,均定制收纳柜,上方以吊柜进行收纳,下方嵌入烘洗设备,打造极简洗衣区,方便快捷,美观与实用性并存。


设计亮点
▲ 客餐厅一体的开放式布局,传统中式餐边柜两侧遥相呼应。走廊顶面以钛金条修饰,搭配无主灯照明,井然有序,大气通透。
软装搭配
▲ 六人位的乌金木圆桌成为餐厅中心,空间四周保留适当的留白,赋予空间更多可能。与阳台连通,双阳台的户型,实现空气对流。


设计亮点
▲ 餐厨以一道黑框推拉门隔断,呈半开放式布局,既不影响采光,限定区域的同时,也非完全割裂两个空间,打造简约时尚格调。
软装搭配
▲ 厨房内部,操作台呈U型布局,洗切炒动线一气呵成。上下皆定制浅灰色橱柜,高级清爽。黑色冰箱内嵌设计,避免空间浪费。




设计亮点
▲ 半开放式书房设计,以木质屏风取代原始墙面,简洁明朗的线条勾勒出优雅的笔画,让光线自然流入,予人以宁静淡雅之感。
软装搭配
▲ 书房整体上简洁而不失传统韵味,以一种意境之美让居住者感到全身心的舒适与放松。光影洒落间,唤醒了沉闷忙碌的心灵。



设计亮点
▲ 主卧,延用公区的清雅色调,灰白木混搭,营造静谧柔和的睡眠氛围。四周墙面适当留白,纳入阳台后,将自然气息发挥到极致。
软装搭配
▲ 灰色软包床头,柔和的色彩+软体结构,柔化整体空间氛围。精巧的中式壁灯一旁点缀,在现代设计中感知传统美学的魅力。

设计亮点
▲ 主卫依旧做干湿分离,以灰色瓷砖呼应全屋调性。墙面以奶咖与深灰色壁砖分色设计,丰富空间层次感,提升全房生活品质。
