

装修前
设计理念:这是一套现代风格的装修案例。本案是一套小户型的复式案例,设计风格选择现代混搭,给人以沉稳大气,在规划时加入亮色系的跳色设计,注重软装搭配以及色彩的搭配协调,形成一个既生动又有品味的空间氛围,摒弃复杂而繁琐的造型,注重空间的流动和功能的整合,表达对品质生活的追求。
装修后
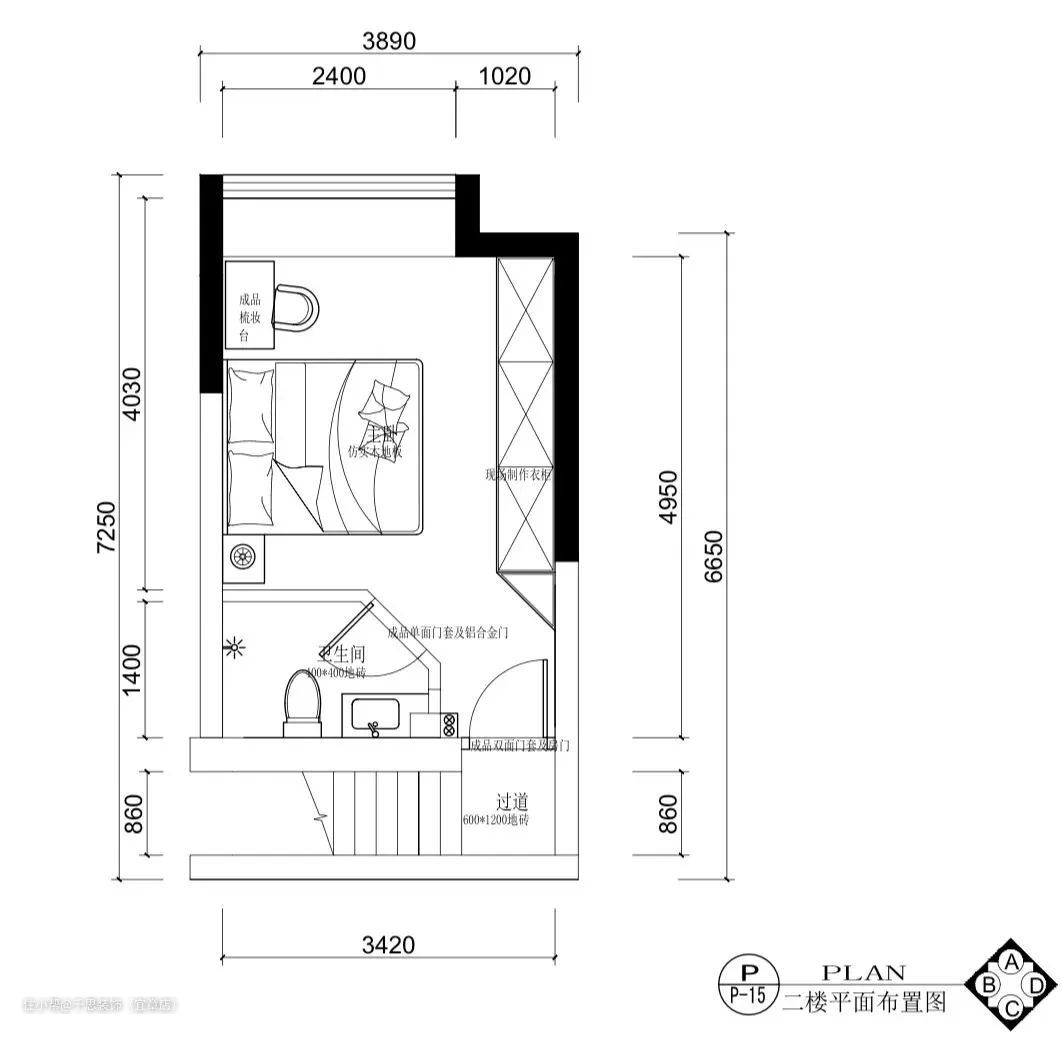
▲ 一层平面布置图: ⒈一楼采用开放式的客餐厨一体化设计,营造出宽敞、明亮的空间感; ⒉次卧入口做隐形门设计,隐藏在电视墙一侧,保持视觉的整体流畅性; ⒊楼梯下方的小空间打造成开放式书房,以长虹玻璃门隔断生活阳台,优化采光面。 ▲ 二层平面布置图: 二楼作为一个独立的主卧室空间,自带卫生间形成大套间,靠墙定制柜满足收纳需求,注重空间私密性,与一楼会客区做到动静分离。

设计亮点
▲ 玄关,专属定制灰咖色玄关组合柜,换鞋区+储物区+开放格展示区分布齐全,一株蓝花楹装点于格栅柜板前,灯光的加入提升格调。


设计亮点
▲ 将原始厨房墙体拆除,空间一扫逼仄感,餐厨合一打破了餐厅与厨房的阻隔和界限,满足行动流畅方便的动线设计需求,社交互动性强。
软装搭配
▲ 甄选意式轻奢的岩板餐桌,搭配色彩跳脱的软包餐椅,以爱马仕橙点缀丰富层次,搭配创意吊灯,带来一种华丽端庄的高级设计氛围。


设计亮点
▲ 厨房开放式布局,灰色系橱柜与墙砖延伸至门厅区域,L型设计大大增加了操作台面,转角一面小窗+油烟机,避免下厨时油烟四溢。
软装搭配
▲ 从厨房望向客餐厅视角,厨房顶部采用防水石膏板搭配无主灯照明,极简利落。





设计亮点
▲ 客厅,整体以雅致灰作为基调,做回字形吊顶,内嵌灯带搭配简约主灯,延展公区的纵深感,打通阳台引入光线,开阔又明亮。靠墙布置灰色系直排沙发,延续室内大色块的时尚,镜面茶几做搭配,加强客厅空间的开放性与透明感,整体氛围高档舒适。
软装搭配
▲ 电视墙选择做超薄投影幕布墙,实现大尺寸的“动态画面”,下方打造悬空电视柜设计,一侧隐藏次卧入口,显得简洁大方而又凝练时尚。景观阳台作为休闲一角,安装灰橙相间的窗帘隔断强光,舒适的沙发椅与绿植相搭配,一端定制储物柜满足收纳需求。


设计亮点
▲ 次卧入口隐匿于电视墙一侧,做格栅隐形门设计,与电视墙融为一体,弱化了次卧的存在感,同时加强客厅的整体性与极简视效。
软装搭配
▲ 次卧,保留飘窗做休闲一角,选择一张悬浮床作为卧室的主体,视觉上轻盈灵动,底部搭配感应式灯带,打造潮流空间美学。

设计亮点
▲ 儿童房,延续公区灰咖色系,沿窗设计榻榻米,床尾衣柜连接书桌柜一体,学习区、储物区、休憩区分明有序,可爱老虎地毯增添童趣。


设计亮点
▲ 卫生间,简洁大气的质感灰色调,干湿分区设计,以玻璃移门隔断,左边为淋浴间,右边设计面盆与浴室镜,使用更为方便。
软装搭配
▲ 淋浴区用拼色竖条小砖铺贴,给纯灰的背景中创造些许意趣,墙面增设置物架摆放洗漱用品,让浴卫空间更加整齐有序。
