




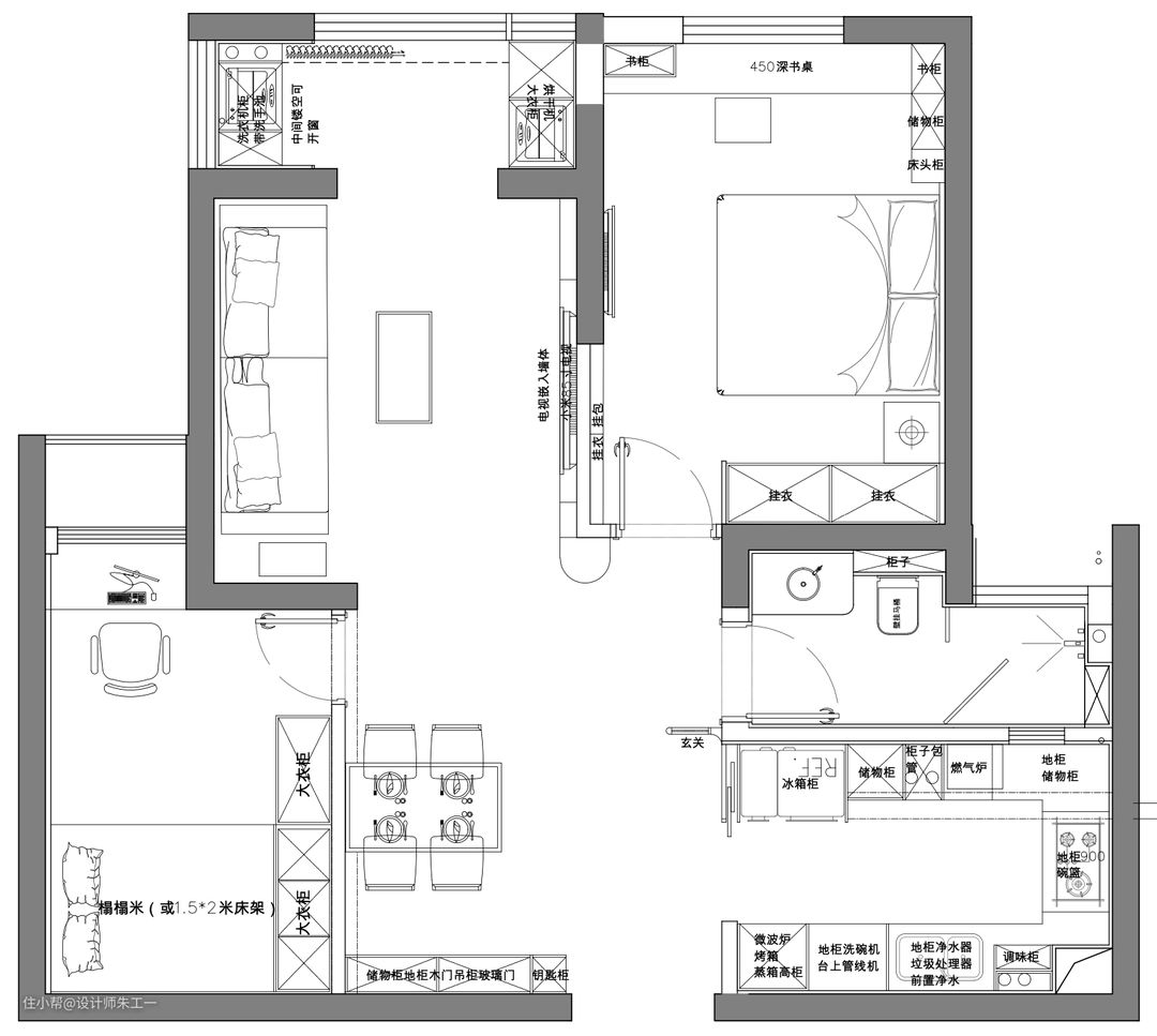
这是来自武汉绿地名邸公馆的一套94平两房小户型,正儿八经的小两房,整体没有大毛病但小问题众多,且在后期施工上需要非常细致的衔接。

入户大门正对主卧大门,需要打”破“

厨房、卫生间采光差,缺乏加大的储物空间。

3:餐厅面积较小,占用入户门厅位置。 4:客厅纵深面积较窄,影响行走路径。 5:阳台空调机位占用过多的室内空间。

房屋整体功能划分明确不会浪费过多的使用空间。 但开发商赠送的小阳台面积打破了原有稳定的户型布局。让整个室内布局有了较大的改变,直接影响客厅、餐厅的观感。

设计思路: 从整体结构和咨询物业的最终结果来看,赠送的阳台面积,和次卧飘窗位置可以拆除利用。 第一:赠送阳台的面积给了卫生间使用。这样可以解决厨房弯弯绕绕的问题,同时解决卫生间面积过小,通风不畅、厨房采光以及厨房收纳的问题。 第二:腾挪出的冰箱位可以做成玄关,增加餐厅面积,从而增加客厅面积以及储物能力。

第三:客厅与主卧的共墙可以后移做圆弧墙弱化两个空间之间的割裂感。

第四:合理使用下水管包管的厚度制作能储物的壁龛,做合理分区,增加卫生间储物能力。

如今的客厅以“名存实亡”,更多的功能就是“躺平”怎么舒服怎么来。 空间上要开阔,能做薄就不要厚,能做浅就不要深,能做简单就不要复杂。

功能上要实用,能隐藏就不要开放,能嵌入就不要明装,能纯平就不要凹凸。

设备上要先进,能预埋就不要裸露,能节约就不要浪费,能智能就不要手动。



关于客厅最大的设备——空调,是选择柜机、挂机、风管机甚至是全屋使用中央空调,我们也是犹豫不决,争论不休。

对于中部城市90平小户型来说 客餐厅使用风管机,主卧选择挂机或风管机,次卧选择挂机。 从使用体验、投入预约到后期使用成本和维修更换成本来说,这套组合的性价比是最高的。 客厅选用风管机美观好预埋,风量大,制冷效果好,这家选用了美的星光科技版风管机,一台机器能够满足客餐厅的制冷、制热需求,纤薄的机身隐藏式安装,不像挂机和柜机一样,一个裸露在外不好看,一个占用室内使用空间不实用。

而对于想做无主灯设计的业主来说,风管机纤薄的机身尤为重要。经过多年设计案例落地经验总结,对于大平顶吊高保持在13厘米较为合适,能保证足够的层高的同时,也便于安装合适的筒射灯,但这样的高度对于空调设备尺寸要求比较高,普通的风管机内机厚度在25厘米左右,加上顶面不平和吊顶厚度一般成型高度在30厘米,但美的星光科技版风管机机器厚度只有20厘米,吊顶成型高度25厘米。虽然只有5厘米的差别但是在捉襟见肘的层高里,5厘米的高度都会让你“豁然开朗”。

再配上加长的出风口,让整个吊顶美观大气,这样的吊顶设计是每一个有品质的家庭都想拥有的。


关键是这样的加长风口是免费的,包含在一价全包套餐里的,除了包含免费加长出回面板费用还包含送货上楼费,免费远程服务费,免费上门勘测费,免费提供设计方案,最关键是几乎每个家庭都会用得上的,高空安装费和打孔费用,全部免费,真的还蛮省心的。

对于一台省心省事低能耗的空调来说,一级能效是最基本的门槛,能搭配ECO节能模式,有电量查询功能,能让你省电都看得见,才是用心之处。

在四大火炉的武汉,空调是装修必备设备,美的星光科技版风管机具有WIFI智联的空调设备,能在下班的路上通过APP远程开启空调,回家就能享受到凉爽,寒冷的冬季能躲在被子里通过智能语音调控空调温度。主打的就是一个懒人福音。而对于主卧来说很多人会选择挂机的主要原因还是因为安静。

美的星光科技版风管机,可提前设置好睡眠时间段的温度,避免温度过热或过冷。而且它运行声音几乎听不见。 并且美的星光科技版风管机可以直接安装在柜头上方,做到不占用室内空间,美观实用。

那么奶油风小户型如何装出大空间还省钱? 第一:储物柜通顶不做或少做开放格。 第二:墙、地、顶、柜门同色做到无分割感。 第三:灯具、空调设备等,不做明装改暗装。 第四:提前预留好家电尺寸,做到严丝合缝无死角。 #美的中央空调#美的风管机#美的星光#美好生活 为家而定
