

装修前
本案的位于东莞市卓越维港,之前没装过别墅,经朋友推荐我们,一经接触沟通很愉快,就选择了我们 设计师和业主深入沟通,确定了欧式风格。本设计以“豪华、舒适、大气”为理念,大量运用了金镶边的设计手法,搭配孔雀蓝、翡翠绿等色彩展现了欧式的豪华大气,体现了都市新贵的生活方式
装修后
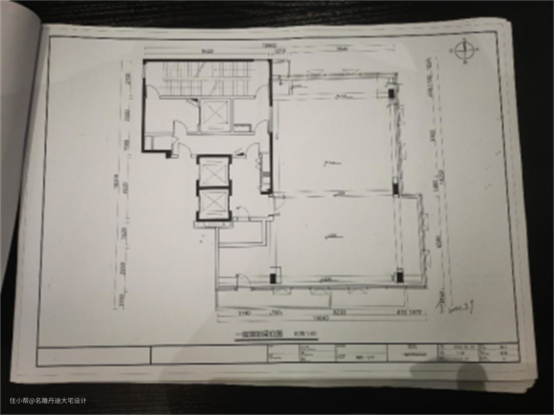
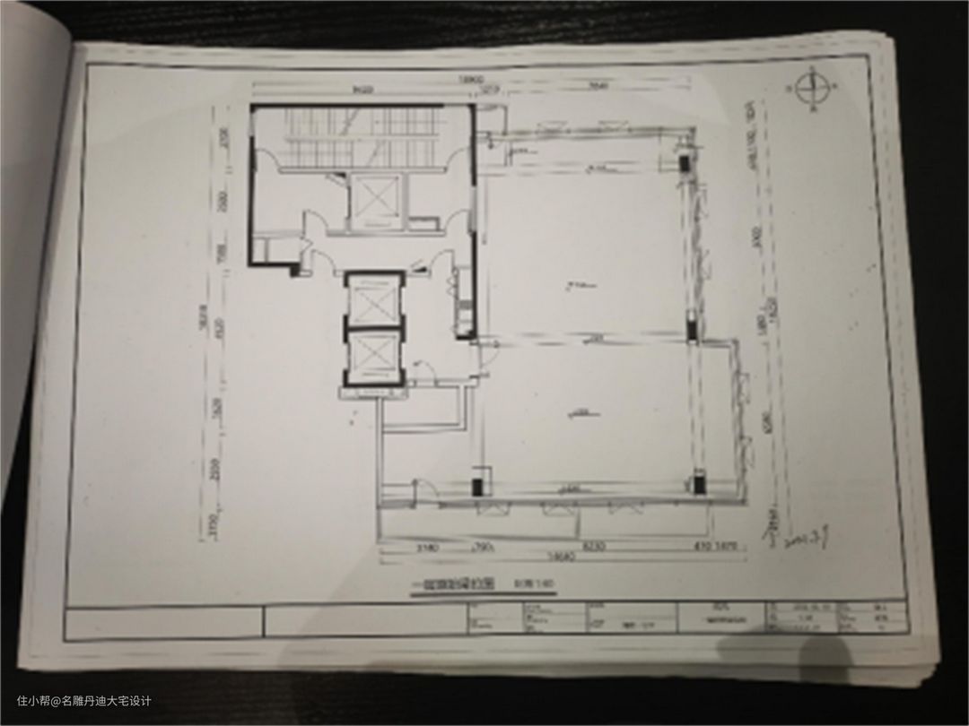
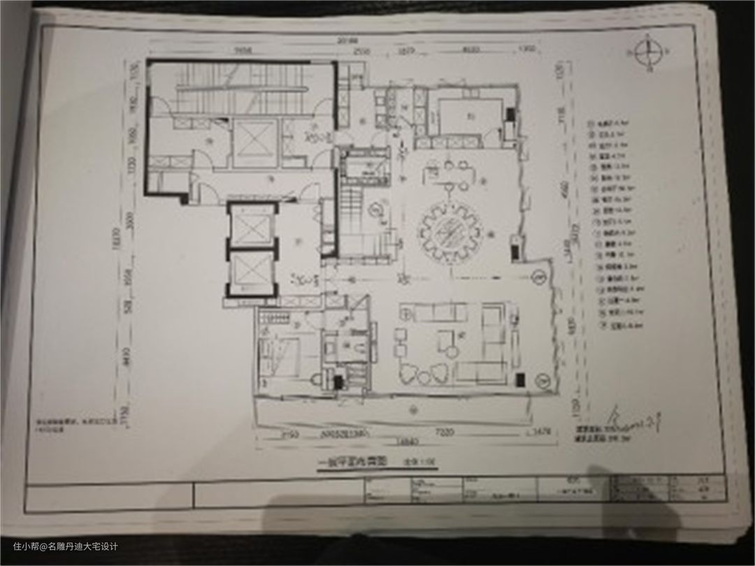
户型说明: 1.入户玄关过道位置,增加鞋柜空间,加大储物量。 2.次卧进行“适老化”改造,紧邻卫浴,满足日常起居需求。 3.把餐厨区,阳台重新规划分区,让三个区域的空间以及动线更舒服合理




设计亮点
欧式客厅设计整体非常简约,气质主要体现在家具的质感上面。皮革沙发采用孔雀蓝作为主色调,搭配金边装饰,奢华高贵的气质已经溢出来了! 客厅在设计方面无不出处体现细节,黄金水晶吊灯点亮奢华气质,贵不可言的气质铺面而来,客厅的优雅眼帘,让整体的空间多了几分的秀气,双眼皮吊顶设计,简约时尚富有活力,置身其中宛如融身欧式贵族般,精致优雅。
软装搭配
拱形背景墙彰显欧式经典,氛围烘托下恰到好处的优雅张扬开来,辅以花瓶灯饰,为空间增添了几分复古韵味,置身其中,举止投足间也会浸染几分优雅和高贵,复古茶几兼具年代感和尊贵的象征,瓷砖波导线,让地面富有肌理,增强了美感。




设计亮点
除了客厅,餐厅的设计也是让人眼前一亮!翡翠绿餐椅搭配金镶木餐桌优雅奢华,妥妥的欧式皇家典范。
软装搭配
尤其是餐桌的设计,金属的光泽紧紧蜿蜒木头的轮廓,将其修饰得利落而有质感,桌边一大圈黄金色泽晃动人移不开眼睛,桌面的金黄装饰纹路给黑色的厚重增添了璀璨的光华。


设计亮点
设计师在厨房设计上大量运用了装饰线作为柜体的切割和装饰,让厨房显得更为干净利落。 大型家电内嵌让视觉简洁、使用也方便便捷,半透明拉帘,既透光也保护生活中隐私。
软装搭配
在这里可以大显身手,給家人做一桌丰盛的晚宴,一家人其乐融融。厨房运用整齐的排列方式,将主要动线区分水槽、操作台、灶台、操作台几大部分。方便几人一起分工烹调,既分工合作出一桌饭菜,能又让房屋增添一丝温馨的气息。




设计亮点
走进主卧,仿佛置身宫廷贵妇的居所,是闺蜜口中妥妥的梦中情房了! 橡木拼花铺满整个房间,红艳艳的复古气息扑向每一个闯入者,和房间金色的主调搭配相得益彰
软装搭配
主卧衣帽间取用较为便利的空间、隐私空间十足,1米8纯木大床,畅享睡眠,满满的安全感,简直温馨舒适!鎏金梳妆柜,清晨起来舒点妆容,生活互不打扰,双层窗帘兼具透光、隐私、氛围多功能,两侧壁灯提供局部光源但不占位置。 人生不过短短数十载,喜怒哀乐毫无规律地充斥着每个人的生活。但我想说的是,生活一定要活在当下,想做什么就去做,想装豪宅就去装,别犹豫,快乐才是生活的意义!



设计亮点
本案设计师一直倡导的空间的视觉延伸感和材质的延伸,空间中通过结构的改造来实现,使得卫生间的空间雅奢兼备。 卫生间虽然空间不大,单任然可以设计为干湿分离,洗漱台下方设计了为收纳柜,既方便收纳而且美观,墙上挂着高级感满满的防雾镜,让业主每天清晨可以梳妆打扮好自己的心情,带着期待出门。
软装搭配
以大理石浅色地砖与黑灰整屋整屋主体形成对比协调,打造素雅的私人空间。
