
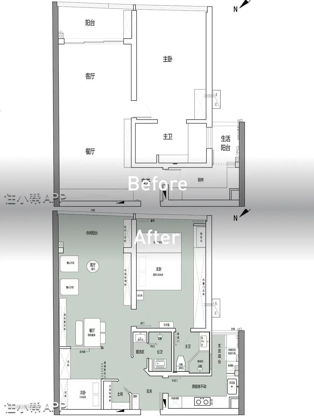
装修前
设计需求: 增加一个卧室,为儿童房做准备 增加一个洗手间 玄关增加收纳空间 原厨房保留布局与橱柜,不变动 希望保留旧家具融入新设计中
装修后
设计改造后: 在原餐厅位置增加了一个卧室 在玄关位置增加了土间 原洗手间划分成两个洗手间 封窗扩充室内空间









设计亮点
△ 窝在超级舒服的沙发,一个弹唱一个听曲,简单的日常充满了甜蜜。哈哈哈,艺术生的快乐大家都能懂吗? △满墙电视柜,当你把物品塞塞塞的时候你才知道有多爽,巨能装。哑光白的柜门一关,杂物通通消失。白色与整个空间都是相融的,没有一丝丝违和感,存在感弱弱的,压抑感那不存在的。 △ 看图就知道我们屋主是颜控,也是实用派。窗户没有做整面大块的落地窗,而是结合了实用性在原阳台玻璃栏杆上做的分隔。 △ 沙发背景留白是留一些空间给未来,也是一种减压方式,在这个快节奏的城市,外面华丽丽的喧嚣,空白能让心很快安静下来。 △休闲阳台没有窗帘,没有任何遮挡,无论昼与夜,窗外的风景是随着光与天气而变的一幅画。
软装搭配
△ 客厅是现代简约与原木风的结合,融入了屋主保留的餐桌椅,餐边柜。二人平时的兴趣爱好是唱歌跳舞做手工,没有用传统的大沙发,两张舒适轻便的毛毛虫懒人沙发足以满足日常的需求。




设计亮点
△ 增加了一个卧室之后,餐厅并不会因为缩小了尺寸而变的局促,宽敞的过道,留白的墙面,还有次卧的小窗都让餐厅充满了呼吸感,让人在这个看着有条理,又温馨的空间非常的放松。 餐边柜是保留下来的旧家具,还非常新,洒脱的黑色边框与黑玻镜面柜门和新增的小卧室窗框相呼应,整体感100%。 △拍摄当天的空余时间团队小伙伴与屋主玩起了“干瞪眼”,她说平时除了吃饭还会在餐桌做手工,朋友来了有时候也会玩一玩扑克~休闲时刻,宅家也可以很快乐。 △很有幸听到音乐老师(屋主)现场给我们唱歌,真好听!哈哈哈,如果她不累我们可以一直听下去,羡慕她先生,在家就可以点歌。家里的氛围好,手机咔咔一拍就是美图。 屋主说,有了餐桌后面的珐琅板,每个到家里来的朋友都可以签上名字,小小的举动,让生活又多了一种仪式感。她还说,平时出去玩的票根,演唱会门票,旅行解锁一个新的地方买的冰箱贴,都会收集贴在这面珐琅板上面,慢慢的填满它。 我觉得这种仪式很好,每一个物品都是美好回忆的启动键,看一眼就会想起去过的地方,让心情都愉悦了。
软装搭配
△餐桌后面的白墙可不止是白墙哦,还贴了珐琅板,可擦写,可磁吸。 △ 暖黄色的可伸缩吊灯太值得夸夸了,款式很适合餐厅,可伸缩功能更实用,她说做手工的时候往下一拉,可以照的很清楚,用完往上一推就行,灯光是三色可调的按需开就好。

设计亮点
△ 玄关增加了一个异形杂物间,直角布局行不通(过道尺寸的局限),舍弃一角做成了一个钻石形小空间,可以放行李箱,放换季的鞋子,以及刚拿回来没来得及拆包装的快递。 小空间,大利用。


设计亮点
△ 主卧保留了床与拼接的小床,整个布局没有大变,床尾做了一整面墙的衣柜,把梳妆台隐藏在里面。 主要变动是主卫,原本家里就一个洗手间,洗手间进门位居然在主卧,就是说客人来了去洗手间必须先进来主卧,这是不合理的。我们把主卫改成了两个空间,一个主卫,一个公卫。


设计亮点
△ 未来的儿童房,床垫直接放地上,这种高度对小朋友超级友好,灵活可调整,以后需要放床架随时可以安排,衣柜也已安排,小空间大面积用了白色,视觉更宽敞。 未来再把成品书桌安排上,妥妥的满分配置儿童房。 △卧室窗户和门都做了竖百叶,私密性安全感都不用担心。


设计亮点
△ 公卫做了干湿分离,利用镜面的反射原理,走进这个区域前会先经过小圆拱门,镜子里的角度一直反射着这个拱门,让小空间视觉变大,65cm的洗手台用着看着都舒服,镜面用对了就是空间放大术。



设计亮点
重点区域改造对比图+客厅改造前后对比图
