

装修前
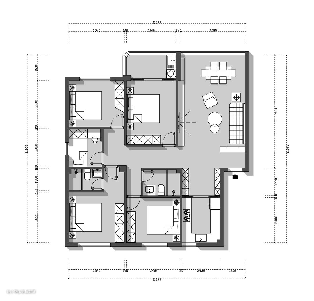
原始户型缺点 Original house type disadvantage 1、原户型一进门就能看到客厅全貌,欠缺私密性 2、4米长客厅大阳台没有任何功能,空间过于浪费 3、餐厨拥挤,餐边柜没地方安置,厨房放置冰箱后操作台局促 业主需求 The owner needs 1、三代人居住,四房改五房重新规划可利用空间 2、厨房空间作为每天的劳作处,一定要功能齐全,并且尺寸相对宽裕,减少日常的“手忙脚乱”“磕磕碰碰” 3、大大增加储物空间,完善的收纳功能让家时刻保持整洁 4、希望空间之间需要有些隐私性,也希望空间能多层次感,增加美观度
装修后
户型改动 Family changes 1、客餐厅、阳台一体布局,将公共区域全部打通,让整体空间通透显大 2、扩大厨房区域,打造高效实用的厨房空间,可容纳2-3人同时作业 3、借用原有公卫及部分次卧空间设计了单独的儿童房,满足屋主五室的需求

设计亮点
入户正对面用长虹玻璃+悬浮式的置物架,作为软性隔断,增加入户区域的私密性。避免了进门被一眼看到底,同时还不影响空间光线的贯通,通透感十足。



设计亮点
极简现代风的家里,运用上水波纹板,大波纹的银色,波光粼粼,搭配白色墙板,让空间的张力越发迷人。客厅通过采用白色和灰色的家具搭配,增强整体空间的明亮感。同时,在室内布局中添加暖咖和黑色的点缀,能够创造一种高贵而稳重的氛围。 电视背景墙融入弧形设计元素,顺势延伸至阳台,在视觉上让空间更显大。下方用地台代替厚重的电视柜,整体视觉简洁利落。极简的现代风设计,辅以黑白的色彩搭配,营造层次感和高级感。


设计亮点
客餐厅一体化设计,让光线与空气相互交织流通,视觉效果上更加开阔。随着场景动线变化,逐渐过渡不同生活场景,既承载家一日三餐,柔和进记忆里的亲密情绪。简约大气的白色岩板餐桌,深灰色皮质餐椅,搭配个性飞碟玻璃水滴螺纹极简吊顶,流畅的线条感,让就餐的氛围感十足。


设计亮点
在厨房入口两侧采用非对称的双排柜设计,形成流畅自由的行走动线,将原本浪费的过道空间合理利用。即便是左右两侧都做满柜体,整个过道的宽度还有1.6米宽,不管是采光、通风还是场域氛围感都特别好,也不会觉得有压迫感。 U型的厨房设计,空间布局包括灶台、洗菜区、备菜区、冰箱、消毒柜、橱柜收纳等。橱柜的柜门没有明装拉手,简约大气。台面用的纯白色石英石台面,耐看还便于打理。地面做的哑光瓷砖,与客厅通铺视觉效果更好,颜值真的太高啦!

设计亮点
黑白灰配色,奠定高度理性的空间基调。空间动线采用一字型干湿分离的设计,行走的动线很流畅,增加了通透和开阔感,打扫起来也很便捷。地面和墙面都是暖色调的瓷砖,台盆和浴室柜黑白拼接,质感直接拉满!


设计亮点
与传统的卧室背景墙不同,以造型设计增加整个空间的层次感,采用木隔板打造卧室背景墙,两侧的圆弧造型嵌入式灯带,设计感十足。用半墙软包代替床头靠背,为整个空间营造高质感睡眠空间,让卧室成为舒适放松的私密空间。

设计亮点
人造石材质的立柱一体式台盆,造型新颖独特,与整个空间搭配,营造出高级的艺术格调。立柱式的设计,减少占地面积,还方便日常洗漱,防止沾污更加容易清洁。卫生间中没有多余的色彩,显得高级又耐看。



设计亮点
衣柜+床头柜一体式布局,底部悬空,不仅可以摆放平时的小物件,视觉上更加协调统一。以白色为主,无主灯设计,提升温馨氛围。全屋柜子都采用无把手隐形设计,收纳空间绝绝子!和床头背景融为一体,不显突兀哦~


设计亮点
白色的格栅板用在卧室,甜而不腻的环境,谁看了不心动!立体的格栅板直接一板到顶,增加空间的层次感,视觉上更显得高一些。前方还叠加了一些浅灰色的护墙板,和白色的格栅搭配,视觉上的色彩不显得单一。


设计亮点
背景墙的配色上以棕色和白色来左右拼色以增加趣味感,为孩子打造童真童趣的居住环境。装饰画、床头灯,没有一件软装是多余的。像一杯微甜的燕麦奶茶,柔和、包容、治愈人心。



设计亮点
儿童房的“猫耳”床让趣味融入生活,给孩子打造属于自己的童话世界。衣柜设计成一门到顶,安装反弹器开关+右侧做弧形开放格设计,好看又实用。衣柜书桌一体设计更加利用空间,给孩子打造一个学习的地方。书桌上方也设置两个隔板置物架,方便孩子拿取学习用品和书籍~
